Dreizimmerwohnung neu, zweite Etage, Podstrana

€ 270.760
3
1
2
Ja
Terrasse

Notiz

Anzeige aktualisiert am: 20.02.2026
Beschreibung

This description has been translated automatically and may not be accurate

Referenz: RE905792

Podstrana - 1-Zimmer-Wohnung mit Garten

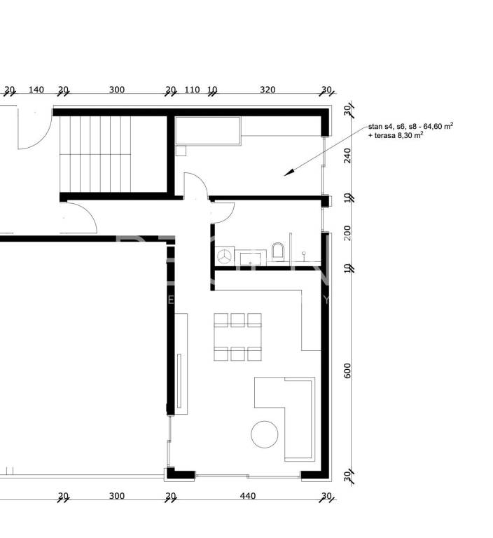
Im Erdgeschoss eines modernen Neubaus in Podstrana befindet sich die Wohnung S1 in Gebäude A (östliches Gebäude), die in unserem exklusiven Verkauf angeboten wird. Es handelt sich um eine Wohneinheit, die Privatsphäre, einen eigenen Außenbereich und die unmittelbare Nähe zum Meer vereint. Aufgrund der Aufteilung und des zusätzlichen Außenbereichs eignet sich die Wohnung für Paare, kleinere Familien, aber auch für Käufer, die eine hochwertige Immobilie zum Wohnen oder als langfristige Investition an einem attraktiven Standort suchen. Die Gesamtnettofläche der Wohnung beträgt 41,86 m². Die Wohnung besteht aus einem Eingangsbereich, einem Schlafzimmer, einem Badezimmer und einem Wohnbereich, der Küche, Esszimmer und Wohnzimmer mit einer Fläche von 19,81 m² vereint. Vom Wohnbereich aus gelangt man auf die Loggia von 4,46 m², und einen besonderen Wert erhält die Wohnung durch den Privatgarten von 26,80 m², der zusätzlichen Platz für den Aufenthalt im Freien, für geselliges Beisammensein und für die Gestaltung nach eigenen Wünschen bietet. Die Wohnung ist mit einer Klimaanlage, PVC-Tischlerei und Einbruchschutztüren ausgestattet, was Komfort und Sicherheit im täglichen Gebrauch gewährleistet. Das Projekt wurde als moderner Wohnkomplex konzipiert, der den Schwerpunkt auf Funktionalität, Privatsphäre und Wohnqualität legt. Die Architektur folgt dem modernen mediterranen Stil mit klaren Linien, während die Aufteilung der Wohnungen mit dem Schwerpunkt auf Funktionalität, Offenheit der Räume und natürlicher Beleuchtung geplant wurde. Das gesamte Konzept des Projekts ist auf eine ruhige familiäre Umgebung, aber auch auf den langfristigen Marktwert der Immobilien innerhalb des Komplexes ausgerichtet. Das Projekt befindet sich etwa 150 Meter vom Meer entfernt, in einem ruhigen Teil von Podstrana mit guter Verkehrsanbindung und der Nähe zu allen wichtigen Einrichtungen, die für das tägliche Leben benötigt werden. In der Nähe befinden sich Geschäfte, Schulen, Restaurants, Promenaden am Meer und öffentliche Verkehrsmittel, was den Standort sowohl für das ganzjährige Wohnen als auch für die touristische Vermietung geeignet macht. Das Projekt befindet sich in der Zagorska-Straße, in einer Zone, die ein Gleichgewicht zwischen ruhigem Wohnen und der täglichen Verfügbarkeit von Inhalten bietet. Der Baubeginn von Gebäude A ist für September 2026 vorgesehen, während die Fertigstellung des Projekts bis Ende 2027 geplant ist. Die Zahlung ist nach Bauphasen möglich. Es besteht die Möglichkeit, einen Garagenstellplatz zum Preis von 22.000 bis 25.000 EUR, einen Außenparkplatz zum Preis von 15.000 EUR sowie einen zusätzlichen Abstellraum zu erwerben, je nach Verfügbarkeit. Die Wohnung S1 ist im exklusiven Verkauf erhältlich und stellt eine hervorragende Gelegenheit zum Kauf einer Wohnung in einem Neubau mit Garten und Meerblick in Podstrana dar. Für weitere Informationen und zur Vereinbarung einer Besichtigung kontaktieren Sie uns bitte.
Merkmale
Art
Wohnung
Vertrag
Verkauf
Etage
2 etage
Stockwerke im Gebäude
3
Aufzug
Ja
Zimmer
3
Schlafzimmer
2
Badezimmer
1
Terrasse
Ja
Heizung
Zentralheizung, fußbodenheizung, wärmepumpe betrieben
Klimaanlage
Eigenständig, kalt / warm
Aussicht
Meer
Preisinformationen
Preis
€ 270.760
Energieeffizienz
  • Zustand

    Neu / Im Bau
  • Heizung

    Zentralheizung, fußbodenheizung, wärmepumpe betrieben
  • Klimatisierung

    Eigenständig, kalt / warm
  • Energieausweis

    Befreit
Grundriss
Entdecken Sie jeden Winkel des Anwesens
+4
Zusätzliche Optionen

Inserenten kontaktieren

Oder