Vierzimmerwohnung neu, zweite Etage, Petrčane - Kožino, Zadar

€ 595.000
4
124 m²
3
2
Terrasse

Notiz

Anzeige aktualisiert am: 23.02.2026
Beschreibung

This description has been translated automatically and may not be accurate

Referenz: 5272

ZADAR-KOŽINO-NEU LUX-Wohnung mit 3 Schlafzimmern-50 m vom Meer und Strand entfernt!

Eine luxuriöse Wohnung in einem Neubau mit insgesamt vier Wohneinheiten steht zum Verkauf. Die Lage ist außergewöhnlich: nur 50 Meter vom Meer und Strand entfernt, in dritter Reihe zum Meer. Die Wohnung erstreckt sich über Erdgeschoss, ersten und zweiten Stock und verfügt über eine großzügige Terrasse mit herrlichem Panoramablick auf das Meer und die vorgelagerten Inseln.Die Fertigstellung der Bauarbeiten und der Einzug sind für Sommer 2026 geplant.
 
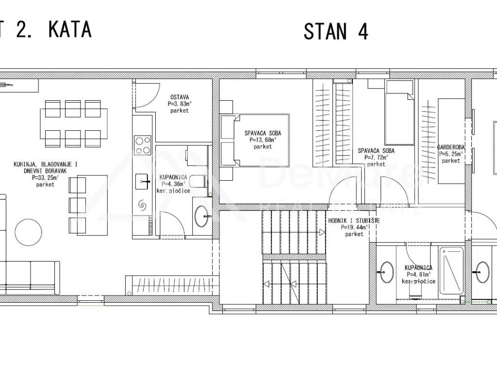
2. OG – S4 LUXUS-APARTMENT:
- Flur mit Treppenhaus / 19,44 m²
- Wohnzimmer mit Küche und Essbereich / 33,25 m²
- Drei Schlafzimmer / 13,68 m², 13,43 m², 7,72 m²
- Ankleidezimmer / 5,25 m²
- Drei Badezimmer / 4,35 m², 4,61 m², 4,27 m²
- Abstellraum / 3,83 m²
- Überdachte Terrasse / 7,74 m²
Die Wohnung erstreckt sich über das gesamte zweite Obergeschoss des Gebäudes. Große Glaswände trennen Wohn- und Esszimmer von der überdachten Terrasse mit Meerblick. Die Treppe verbindet das Wohnzimmer mit dem Zwischengeschoss, auf dem sich drei Schlafzimmer, ein Ankleidezimmer, zwei Badezimmer und eine wunderschöne, geräumige Terrasse mit Panoramablick auf das Meer und die Inseln befinden.
Zur Wohnung gehören zwei Parkplätze im Innenhof des Gebäudes.
Die Wohnfläche beträgt 109,83 m², die gesamte Nutzfläche der Wohnung inklusive aller Ausstattungsmerkmale 124,68 m².
 
Für eine Präsentation und eine Besichtigung der Wohnung kontaktieren Sie uns gerne!
De Mare d.o.o.
+385 23 300 400
info@demare.hr
 
LAGE:
Die Immobilie befindet sich in einer schönen, ruhigen Lage mit Meerblick und ist nur 50 m vom Strand entfernt (dritte Reihe zum Meer).Der Ort Kožino liegt ca. Kožino liegt 7 km von Zadar, 10 km von Nin mit seinem wunderschönen, bekannten Sandstrand und 19 km von der Insel Vir entfernt und ist verkehrstechnisch hervorragend angebunden. Der Ort ist ideal für einen ruhigen Familienurlaub. Die sanften Sand- und Kieselstrände mit klarem Wasser erstrecken sich über 4 km Küstenlinie und sind besonders attraktiv und sicher für Kinder.
Kožino bietet seinen Besuchern eine große Auswahl an modernen, exklusiven Villen, Apartments und Zimmern. Geschäfte, eine Apotheke, Restaurants und Cafés befinden sich direkt im Ort. Kožino ist ein beliebtes Reiseziel, denn es ist eine wahre Oase der Ruhe inmitten einer wunderschönen mediterranen Landschaft.
Der Flughafen Zadar, der Fährhafen und die Autobahnauffahrt sind etwa 19 km entfernt und in ca. 20 Minuten mit dem Auto von Kožino aus zu erreichen.
Wenn Sie mehr wissen möchten, können Sie mit Marija Strenja. sprechen
Merkmale
Art
Wohnung
Vertrag
Verkauf
Etage
2
Stockwerke im Gebäude
2
Fläche
124 m²
Zimmer
4
Schlafzimmer
3
Badezimmer
3
Terrasse
Ja
Garage, parkplätze (auto)
1 parkplatz(e)
Heizung
Unabhängige heizung, heißluft heizung, stromversorgung
Klimaanlage
Eigenständig, kalt / warm
Aussicht
Meer
Andere Merkmale
  • Fensterrahmen mit Einfachverglasung / Metall
  • Türöffner mit Videoüberwachung
  • Gepanzerte Tür
Oberflächendetail

Wohnung

Etage
2
Fläche
124,7 m²
Koeffizient
100%
Flächenart
Hauptsächlich
Verkaufsfläche
124,7 m²
Preisinformationen
Preis
€ 595.000
Preis pro m²
4.798 €/m²
Kostendetails
Eigentumswohnungskosten
Keine Umlagen
Energieeffizienz
  • Baujahr

    2026
  • Zustand

    Neu / Im Bau
  • Heizung

    Unabhängige heizung, heißluft heizung, stromversorgung
  • Klimatisierung

    Eigenständig, kalt / warm
Entdecken Sie jeden Winkel des Anwesens
+16
Zusätzliche Optionen

Inserenten kontaktieren

Oder