Vierzimmerwohnung neu, zweite Etage, Petrčane - Kožino, Zadar

€ 336.000
4
104 m²
3
2

Notiz

Anzeige aktualisiert am: 11.03.2026
Beschreibung

This description has been translated automatically and may not be accurate

Referenz: 5285

ZADAR-PETRČANE-NEUBAU-LUXUS-Apartment 105 m2-Terrasse-2xParkplatz!

Ein modernes, hochwertiges Projekt steht zum Verkauf und bietet Luxus und Komfort für Urlaub und Wohnen in einzigartiger, ruhiger Lage, nur 650 m vom Meer und einem wunderschönen Strand in Petrčane, unweit von Zadar.
Es handelt sich um eine neue, moderne Wohnanlage in begehrter Lage in Petrčane – bestehend aus fünf dreigeschossigen Wohngebäuden (Erdgeschoss + 2. Obergeschoss) mit Dachterrasse und jeweils vier Wohneinheiten. Im Innenhof befinden sich ein Garten und ein Außenstellplatz; jeder Wohnung sind zwei Parkplätze zugeordnet.
Der Bau ist im Gange und die Fertigstellung wird für Sommer 2026 erwartet.
 
AUSSTATTUNG DES GEBÄUDES:
≈ Wärmedämmfassade / 10 cm Styropor
≈ Fußbodenheizung
≈ Multi-Split-Klimaanlage für Heizung und Kühlung in allen Räumen
≈ Einbruch- und feuerfeste Eingangstür mit Schalldämmung und geräuschloser Verriegelung
≈ Hochwertige PVC-Fenster und -Türen mit dreifach verglastem IZO-Glas
≈ Elektrische Jalousien und integrierte Moskitonetze
≈ Hochwertige Keramikfliesen
≈ Sanitäranlagen namhafter Hersteller
≈ Erstklassiges Parkett und großformatige Keramikfliesen
≈ Video-Gegensprechanlage
 
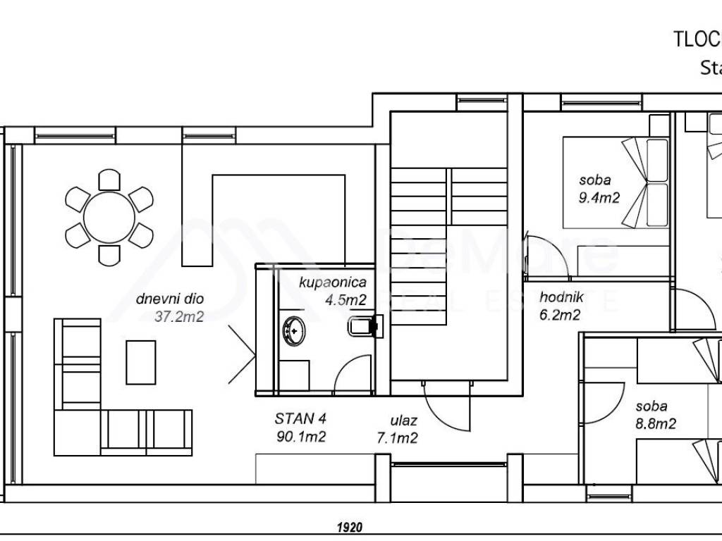
≅ S4-WOHNUNG – im 2. Obergeschoss mit drei Schlafzimmern und überdachter Terrasse
Eine wunderschöne Wohnung in attraktiver Lage, die das gesamte zweite Obergeschoss einnimmt. Das komfortable Wohnzimmer und die Küche mit Essbereich sind nur durch Glasschiebewände von der geräumigen, überdachten Terrasse getrennt.
Die Wohnung besteht aus:
- Flur / 8,70 m²,
- Wohnzimmer mit Küche und Essbereich / 34,80 m²,
- Badezimmer / 5,60 m²,
- Badezimmer / 2,90 m²,
- Schlafzimmer / 12,70 m²,
- Schlafzimmer / 9,10 m²,
- Schlafzimmer / 11,60 m²,
- WC / 1,70 m²,
- Abstellraum / 1,70 m²,
- Überdachte Terrasse / 12,40 m²,
- Überdachte Terrasse / 8,60 m²,
- Terrasse / 5,70 m²
Die Wohnfläche beträgt 88,80 m².
Zur Wohnung gehören außerdem zwei Stellplätze im Innenhof des Gebäudes (2 x 13,75 m²).
Der berechnete Gesamtwert der nutzbaren Fläche der Wohnung einschließlich ihrer Ausstattung beträgt 104,80 m².
 
!! VORTEIL beim Kauf dieser Immobilie ⇒Der Investor ist ein zuverlässiges Unternehmen mit langjähriger Erfahrung im Bauwesen und ist umsatzsteuerpflichtig. Daher fällt für den Käufer keine Grunderwerbsteuer an.
Für weitere Informationen und Beratung kontaktieren Sie uns bitte!
De Mare d.o.o.
Tel.: +385 23 300 400E-Mail: info@demare.hr
 
LAGE:
Die Immobilie befindet sich in außergewöhnlicher Lage in Petrčane, nur 600 m vom Meer und einem gepflegten Strand entfernt. In der Nähe finden Sie zahlreiche Restaurants, Cafés und Geschäfte.
Petrčane ist ein kleiner Touristenort in der Gespanschaft Zadar in Kroatien. Er liegt etwa 10 km nördlich von Zadar und ist von langen Kiesstränden und einem dichten Pinienwald umgeben, was ihm sein unverwechselbares Aussehen verleiht. Petrčane grenzt an die beiden Halbinseln Punta Radman und Punta Skala und hat etwa 600 Einwohner. Der Ort verströmt dank seines 2 Kilometer langen Strandes mit vielfältigen Unterhaltungs- und Freizeitmöglichkeiten, kristallklarem Wasser und einem dichten Pinienwald, der im Sommer angenehmen Schatten spendet, eine familiäre Atmosphäre.
Der Flughafen Zadar-Zemunik ist nur 18,5 km entfernt und bietet hervorragende Verbindungen zu vielen europäischen Städten und Reisezielen. Der Fährhafen Gaženica/Zadar ist 13 km entfernt und bietet Verbindungen zu den meisten Inseln. In der Sommersaison ist er ein beliebter Anlaufpunkt für zahlreiche Kreuzfahrtschiffe.
Wenn Sie mehr wissen möchten, können Sie mit Marija Strenja. sprechen
Merkmale
Art
Wohnung
Vertrag
Verkauf
Etage
2
Stockwerke im Gebäude
2
Fläche
104 m²
Zimmer
4
Schlafzimmer
3
Badezimmer
3
Garage, parkplätze (auto)
2 parkplatz(e)
Heizung
Unabhängige heizung, heißluft heizung, stromversorgung
Klimaanlage
Eigenständig, kalt / warm
Entfernung vom Meer
1 m
Andere Merkmale
  • Fensterrahmen mit Einfachverglasung / PVC
  • Gepanzerte Tür
Oberflächendetail

Wohnung

Etage
2
Fläche
104,8 m²
Koeffizient
100%
Flächenart
Hauptsächlich
Verkaufsfläche
104,8 m²
Preisinformationen
Preis
€ 336.000
Preis pro m²
3.231 €/m²
Kostendetails
Eigentumswohnungskosten
Keine Umlagen
Energieeffizienz
  • Baujahr

    2026
  • Zustand

    Neu / Im Bau
  • Heizung

    Unabhängige heizung, heißluft heizung, stromversorgung
  • Klimatisierung

    Eigenständig, kalt / warm
Entdecken Sie jeden Winkel des Anwesens
+20
Zusätzliche Optionen

Inserenten kontaktieren

Oder