Wohnung neu, Erdgeschoss, Privlaka

€ 358.000
5
90 m²
1
0

Notiz

Anzeige aktualisiert am: 28.04.2026
Beschreibung

Referenz: 2239-1

Novi projekt apartmani u izgradnji, predprodaja
Smješteni na izvrsnoj lokaciji, udaljeni od mora i plaže svega 100 metara s blagim padom terena prema moru.
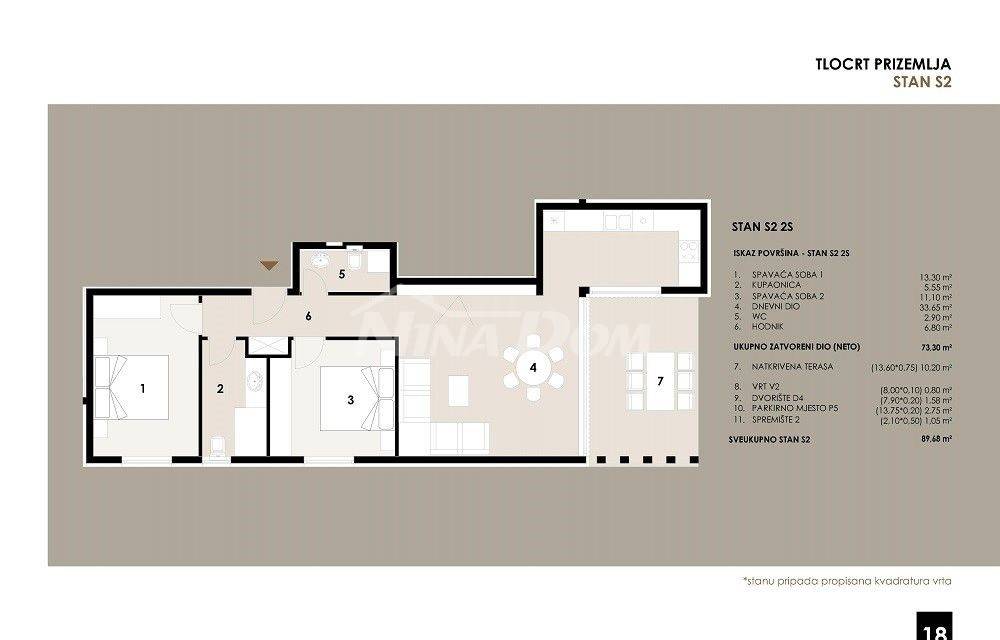
Apartman S2 smješten je u prizemlju i sastoji se od hodnika, dvije kupaone, dvije spavaće sobe, kuhinje s dnevnim boravkom, wc, natkrivenom terasom, ostava (spremište br,1) 2.20 m2.
Apartmanu pripada dio vrta s zelenilom i dio dvorišta, parkirno mjesto
planirani rok završnih radova početak 2026 godine.
Cijena apartmana s pripadcima iznosi 358.000
Wenn Sie mehr wissen möchten, können Sie mit Gordana Ivanika. sprechen
Merkmale
Art
Wohnung
Vertrag
Verkauf
Etage
Erdgeschoss
Fläche
90 m²
Zimmer
5
Schlafzimmer
2
Badezimmer
1
Preisinformationen
Preis
€ 358.000
Preis pro m²
3.978 €/m²
Energieeffizienz
  • Baujahr

    2025
  • Zustand

    Neu / Im Bau
  • Energieausweis

    Nicht klassifizierbar
Entdecken Sie jeden Winkel des Anwesens
+4
Zusätzliche Optionen

Inserenten kontaktieren

Oder