map icon

Einfamilienvilla 421 m², neu, Zadar

Zadar
€ 2.500.000
5+
421 m²
3+

Notiz

Anzeige aktualisiert am: 28.04.2026
Beschreibung

Referenz: 1890-1

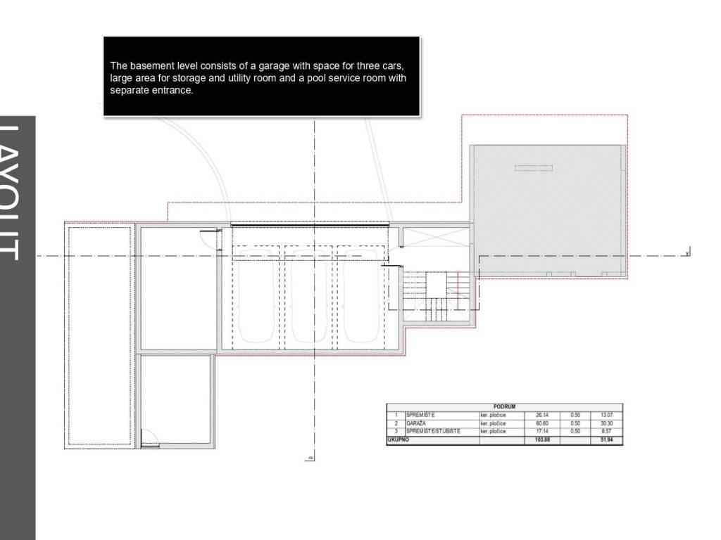
Ova luksuzna vila prostire se na tri etaže, smještena je u mirnom predjelu Zadra 500m od mora.Na 1.katu kuće nalaze se četri spavaće sobe sa kupaonicama,ured,kotlovnica i dvije terase.Prizemlje kuće sastoji se od prostranog dnevnog boravka,blagavaonice, kuhinje,wc, sauna,wellnes,praonica,terasa i bazen.U suterenu kuće nalazi se garaža za tri automobila,spremište i strojarnica za bazen.Ova villa opremljena je HVAC sistemom koji je povezan sa vrhunskom toplinskom Altherma pumpom u kombinaciji sa solarnim panelima, za kompletno grijanje i hlađenje cijele kuće, punjačima za električni automobil, pročišćavaćom vode......
Wenn Sie mehr wissen möchten, können Sie mit Linda Jokić. sprechen
Merkmale
Art
Einfamilienvilla
Vertrag
Verkauf
Etage
1
Fläche
421 m² | gewerblich 1.350 m²
Zimmer
5+
Schlafzimmer
4
Badezimmer
3+
Oberflächendetail

Wohnung

Etage
1
Fläche
421,0 m²
Koeffizient
100%
Flächenart
Hauptsächlich
Verkaufsfläche
421,0 m²

Grundstück

Etage
Erdgeschoss
Fläche
929,0 m²
Koeffizient
100%
Flächenart
zusätzlich
Verkaufsfläche
929,0 m²
Preisinformationen
Preis
€ 2.500.000
Preis pro m²
1.852 €/m²
Energieeffizienz
  • Baujahr

    2026
  • Zustand

    Neu / Im Bau
  • Energieausweis

    Nicht klassifizierbar
Entdecken Sie jeden Winkel des Anwesens
+7
Zusätzliche Optionen

Inserenten kontaktieren

Oder