1/25


Τριάρι νέο, ισόγειο, Tar-Vabriga
€ 500.000
3
80 m²
2
1
Βεράντα
Επιπλωμένο
Τελευταία ενημέρωση: 04/05/2026
Περιγραφή
κωδικός: 43629
ID CODE: 43629
DUX Poreč
Mob: +385 99 340 4702
Tel: +385 91 480 8808
E-mail: info@dux-istra.com
www.dux-istra.com
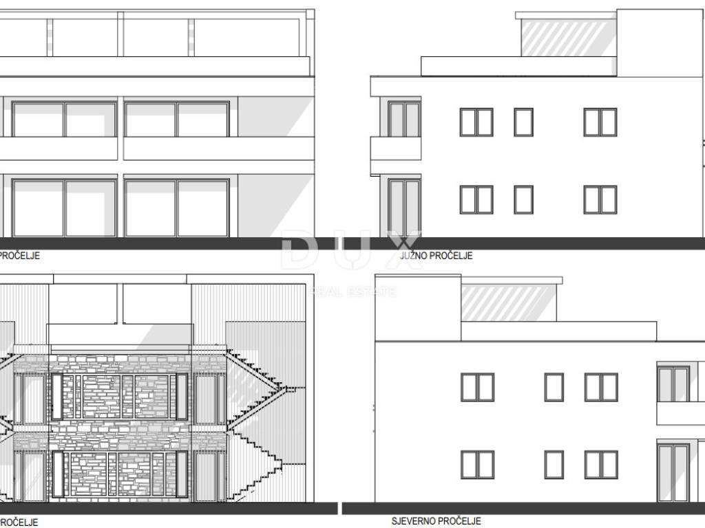
Χαρακτηριστικά
- Τύπος
- Διαμέρισμα
- Συμβόλαιο
- Πώληση
- Όροφος
- 1
- Εμβαδόν
- 80 m² | επαγγελματικό 230 m²
- Δωμάτια
- 3
- Υπνοδωμάτια
- 2
- Μπάνια
- 2
- Επιπλωμένο
- Ναι
- Μπαλκόνι
- Όχι
- Βεράντα
- Ναι
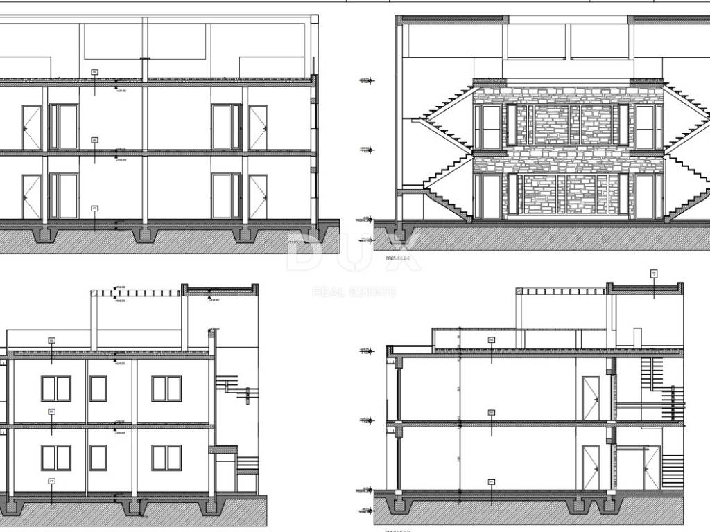
Λεπτομέρεια επιφάνειας
Κατοικία
- Όροφος
- 1
- Εμβαδόν
- 80,0 m²
- Συντελεστής
- 100%
- Τύπος επιφάνειας
- Κύρια
- Συνολική επιφάνεια
- 80,0 m²
Γη
- Όροφος
- Ισόγειο
- Εμβαδόν
- 150,0 m²
- Συντελεστής
- 100%
- Τύπος επιφάνειας
- Δευτερεύουσα
- Συνολική επιφάνεια
- 150,0 m²
Πληροφορίες τιμής
- Τιμή
- € 500.000
- Τιμή ανά m²
- 2.174 €/m²
Ενεργειακή απόδοση
Έτος κατασκευής
2026Κατάσταση
Νεόδμητο / Υπό κατασκευήΕνεργειακή πιστοποίηση
Δεν υπόκειται
Ανακαλύψτε κάθε γωνιά του ακινήτου
Πρόσθετες επιλογές