map icon

Διαμέρισμα δεύτερος όροφος, Medulin

Medulin
€ 410.000
82 m²
2
2

Σημείωση

Τελευταία ενημέρωση: 22/12/2025
Περιγραφή

This description has been translated automatically and may not be accurate

κωδικός: 2396


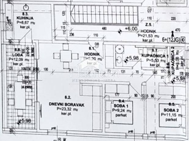
Banjole, an apartment for sale on the second floor of 78.24 m2, consisting of a hallway, two bedrooms, two bathrooms, a living room with a separate kitchen and a loggia. The apartment also has a garage. The building is under construction, and the expected completion is in 2024. If you want to invest money in a quality property for rent or your own residence, this is the opportunity for you. There is no real estate transfer tax of 3%. contact 00385951987708
Χαρακτηριστικά
Τύπος
Διαμέρισμα
Συμβόλαιο
Πώληση
Όροφος
2 όροφος
Εμβαδόν
82 m²
Μπάνια
2
Γκαράζ, χώροι στάθμευσης
1 εξωτερικό
Πληροφορίες τιμής
Τιμή
€ 410.000
Τιμή ανά m²
5.000 €/m²
Ενεργειακή απόδοση
  • Ενεργειακή πιστοποίηση

    Χωρίς ταξινόμηση
Ανακαλύψτε κάθε γωνιά του ακινήτου
+17
Πρόσθετες επιλογές

Επικοινώνησε με τον αγγελιοδότη

Ή