map icon

Διαμέρισμα 163 τμ, Rovinj

Rovinj
€ 880.000
163 m²
2

Σημείωση

Τελευταία ενημέρωση: 22/12/2025
Περιγραφή

This description has been translated automatically and may not be accurate

κωδικός: 3089


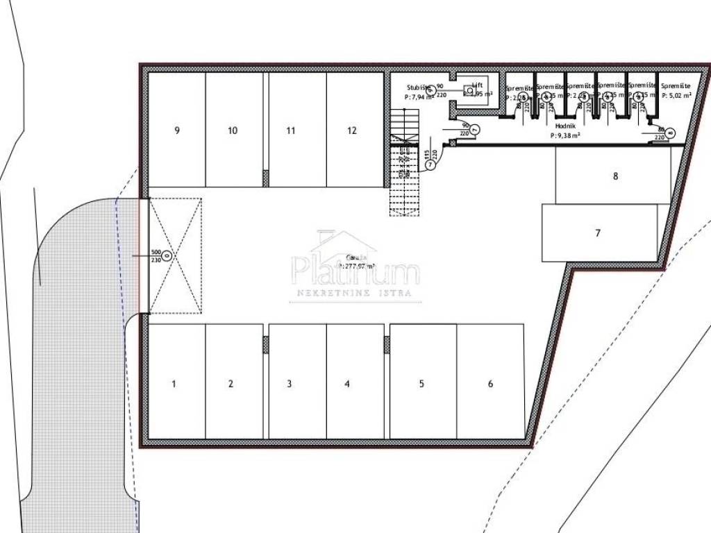
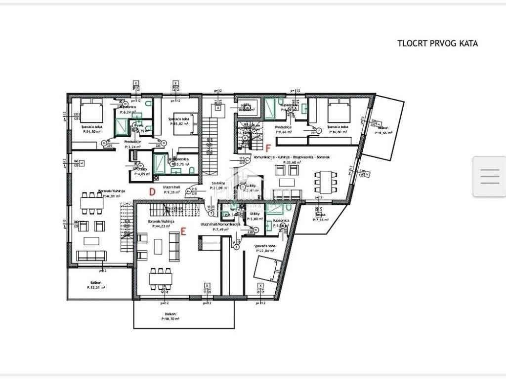
Apartments for sale on the ground floor in a beautiful romantic tourist castle. Currently in the phase of receiving reservations. The apartment is located 300 m from the sea and consists of: First floor and attic Floor: living room with kitchen and dining room, pantry, entrance hall, bedroom, bathroom, storage room, two balconies Attic: Three bedrooms, bathroom, hallway, terrace, hallway Store in the basement Two parking spaces in the garage with elevator Air conditioning, gas underfloor heating, ceramic parquet floors, burglar-proof entrance door, complete interior walls - Knauf, aluminum carpentry with electric shutters and mosquito nets, video intercom, stone wool facade (10 cm), glass balcony railings, elevator from garage to first floor, The planned completion of the works is expected in July 2026 Info on 00385 91 924 9486
Χαρακτηριστικά
Τύπος
Διαμέρισμα
Συμβόλαιο
Πώληση
Εμβαδόν
163 m²
Μπάνια
2
Γκαράζ, χώροι στάθμευσης
1 σε πάρκινγκ/κλειστό πάρκινγκ, 1 εξωτερικό
Πληροφορίες τιμής
Τιμή
€ 880.000
Τιμή ανά m²
5.399 €/m²
Ενεργειακή απόδοση
  • Ενεργειακή πιστοποίηση

    Χωρίς ταξινόμηση
Ανακαλύψτε κάθε γωνιά του ακινήτου
+5
Πρόσθετες επιλογές

Επικοινώνησε με τον αγγελιοδότη

Ή