Οικοδομήσιμο οικόπεδο προς Πώληση

€ 109.000
964 m²

Σημείωση

Τελευταία ενημέρωση: 04/05/2026
Περιγραφή

κωδικός: IS1519269

Izvrsno građevinsko zemljište s građevinskom dozvolom u okolici Svetog Lovreča idealno za izgradnju autohtone istarske vile

Nudimo na prodaju građevinsko zemljište veličine 964 m, smješteno na izuzetno atraktivnoj i mirnoj lokaciji u okolici Svetog Lovreča. Zemljište se nalazi na kraju naselja, unutar građevinske zone, što ga čini posljednjom parcelom dostupnom za gradnju u tom dijelu. Parcela je okružena netaknutom prirodom i nudi privatnost, tišinu i sigurnost, idealno za one koji žele pobjeći od gradske vreve, a opet biti u blizini svih važnih sadržaja.

Pristup zemljištu je osiguran novom asfaltiranom cestom, što dodatno povećava komfor i pristupačnost. Uz parcelu su dostupne sve komunalne infrastrukture struja i voda, a za ovu parcelu je već ishođena građevinska dozvola, što omogućuje trenutak početak gradnje bez dodatnih komplikacija.

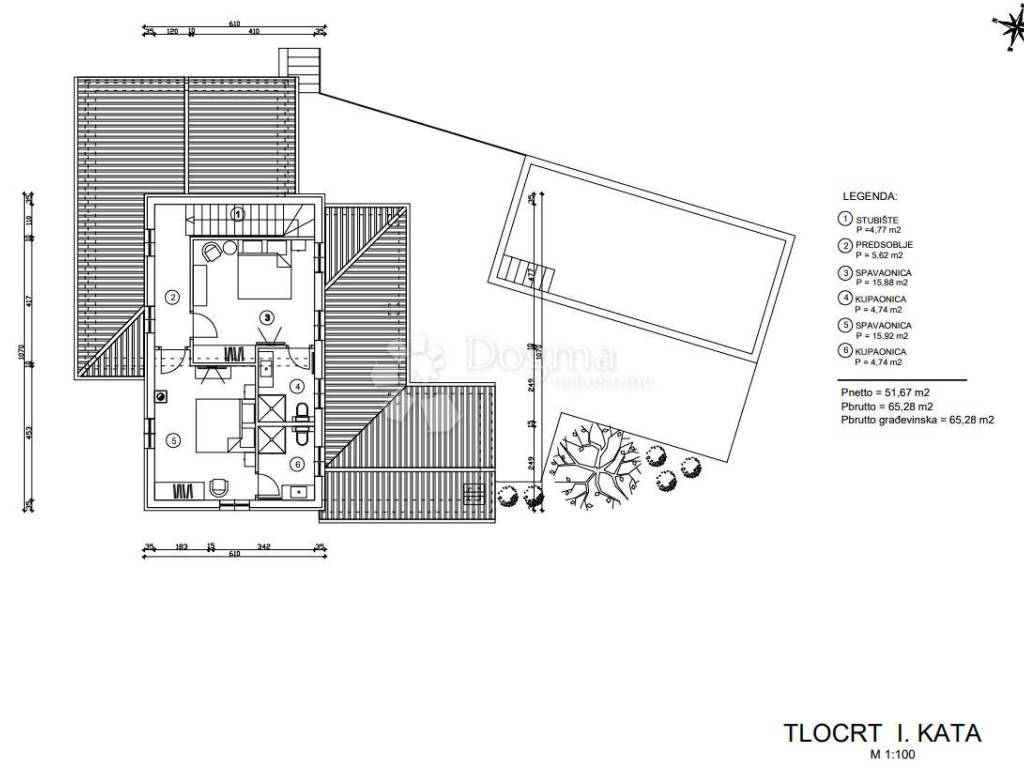
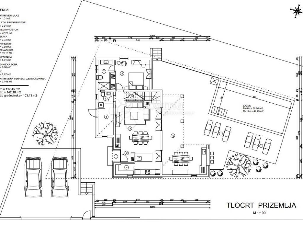
Posebna vrijednost ove nekretnine je projekt renomiranog arhitekta koji predviđa izgradnju autohtone istarske vile s neto površinom od 169 m. Vila je dizajnirana s posebnom pažnjom na autentičnost i sklad s okolinom, s bazenom za uživanje tijekom toplih ljetnih dana, prostranim dvorištem za opuštanje i druženje te prekrasnim pogledom na more u daljini, koji dodatno doprinosi ekskluzivnosti ove ponude.

Ovo građevinsko zemljište je savršen izbor za one koji traže kombinaciju prirodnog okruženja, tišine i moderne udobnosti, ali i za investitore zainteresirane za jedinstveni projekt izgradnje luksuzne vile u jednom od najpoželjnijih dijelova Istre.

Za sve dodatne informacije i dogovor oko razgledavanja, slobodno nas kontaktirajte. Iskoristite priliku da postanete vlasnik ekskluzivnog zemljišta i ostvarite svoj san o kući u Istri!

ID KOD AGENCIJE: IS1519269

Dogma Poreč
Mob: 091/361-1922
Tel: +385 52 771 458
E-mail: info@dogma-nekretnine.com
www.dogma-nekretnine.com
Χαρακτηριστικά
Συμβόλαιο
Πώληση
Τύπος
Οικοδομήσιμο οικόπεδο
Εμβαδόν
964 m²
Άλλα χαρακτηριστικά
  • Σύνδεση υπονόμου
Πληροφορίες τιμής
Τιμή
€ 109.000
Τιμή ανά m²
113 €/m²
Ανακαλύψτε κάθε γωνιά του ακινήτου
+15
Πρόσθετες επιλογές

Επικοινώνησε με τον αγγελιοδότη

Ή