Δυάρι νέο, δεύτερος όροφος, Povljana

€ 220.000
2
60 m²
1
2
Όχι
Μπαλκόνι

Σημείωση

Τελευταία ενημέρωση: 12/03/2026
Περιγραφή

This description has been translated automatically and may not be accurate

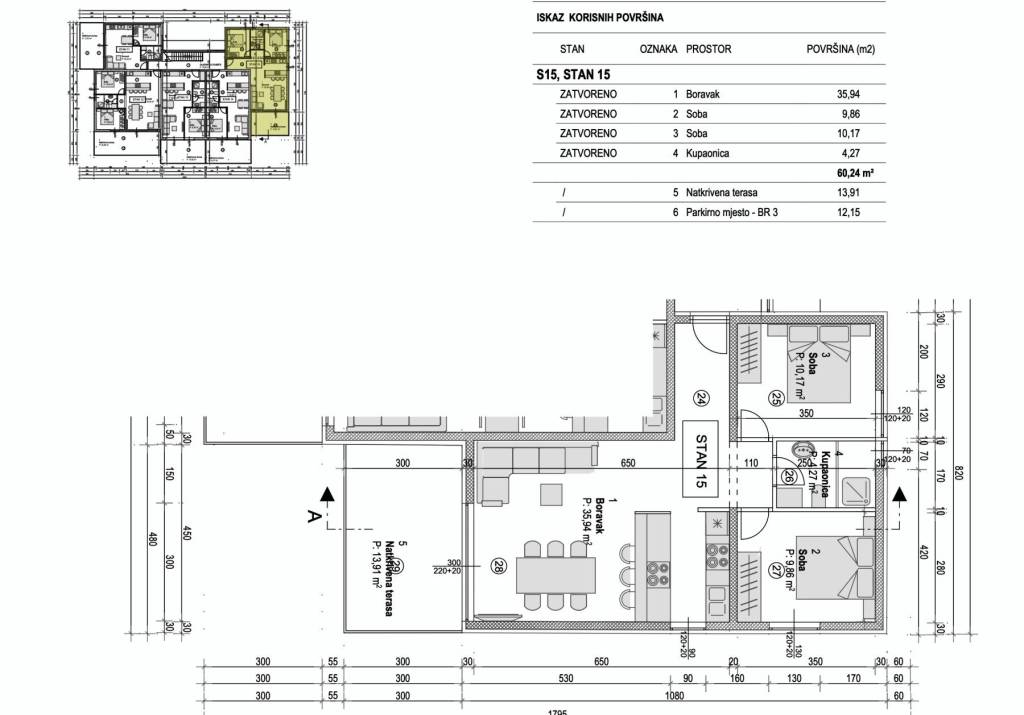
κωδικός: S15

On the island of Pag, in the peaceful and charming town of Povljana, there is a modern residential apartment building with a total of 15 apartments. The location is ideal for enjoying the Mediterranean lifestyle. The building is situated in an excellent location, just 300 meters from the sea and 500 meters from a maintained beach, providing a perfect balance between comfort, elegance, and natural beauty.



Quality construction and materials

The property is built with an emphasis on quality, durability, and living comfort. The structure is reinforced concrete, with exceptional static stability, while the interior partition walls are made of block brick. The facade is thermally and waterproof insulated with 10 cm of Styrofoam, ensuring high energy efficiency.

Heating and cooling are provided by Bosch brand air conditioning units in every room. The apartments are equipped with burglar-proof and fire-resistant entrance doors, double-glazed PVC joinery, and ceramic floors. The planned energy rating is A.



Attractive location

The apartment is located in an extremely favorable and quiet location, just a few minutes’ walk from the sea and the center of Povljana. The apartment offers views of the sea, the island of Vir, and the wider part of the town. Povljana is a pleasant and family-oriented place that offers everything needed for a quality stay and everyday life, including a post office, clinic, school, shops, bakeries, confectioneries, and a marina for small vessels.

Povljana as a blend of Mediterranean charm and modern comfort

Povljana is a picturesque coastal town on the island of Pag, known for its crystal-clear sea and beautiful pebble and sandy beaches. The town captivates with a combination of traditional Dalmatian architecture and a contemporary lifestyle.

Along with a rich gastronomic offer, highlighted by Pag cheese and premium lamb, Povljana offers numerous amenities for relaxation and recreation. Nature lovers can explore hidden coves and untouched beaches, ideal for escaping crowds and enjoying complete tranquility.

The island of Pag is excellently connected to the mainland. Ferry lines operate throughout the day, while the Pag Bridge allows access by car without a ferry. Zemunik Airport in Zadar is approximately a 1-hour drive away, and fast boat lines connect Novalja with Rijeka, Rab, and Lošinj.

Ownership is clear and free of encumbrances. This property represents an excellent opportunity for comfortable living, vacation, or long-term investment, thanks to quality construction, an attractive location, and proximity to the sea.



APARTMENT DESCRIPTION:

Apartment S15 - 2nd floor - living area 60.24 m2 (2 bedrooms + bathroom) + covered terrace (13.91 m2 - SE) + outdoor parking space PM03, total net area 69.63 m2 = 220,000 EUR



Move-in date: 06/2026
Buyer DOES NOT pay agency fee

For additional information and to arrange a viewing, feel free to contact us.



SAN PATRIK PREMIUM STANDARD
The property is represented by the boutique agency San Patrik, which provides expert advice and an individual approach to each buyer. Our role is to ensure verified documentation, complete legal security, and a transparent sales process with access to all key information before making a purchase decision.
Εάν θέλετε να μάθετε περισσότερα, μπορείτε να μιλήσετε με Ivan Varat.
Χαρακτηριστικά
Τύπος
Διαμέρισμα | Ακίνητο μεσαίας κατηγορίας
Συμβόλαιο
Πώληση
Όροφος
2 όροφος
Σύνολο ορόφων
2
Ανελκυστήρας
Όχι
Εμβαδόν
60 m²
Δωμάτια
2
Υπνοδωμάτια
2
Μπάνια
1
Μπαλκόνι
Ναι
Βεράντα
Όχι
Θέρμανση
Αυτόνομη, θέρμανση αέρος
Κλιματισμός
Αυτόνομη
Πληροφορίες τιμής
Τιμή
€ 220.000
Τιμή ανά m²
3.667 €/m²
Ενεργειακή απόδοση

Κατανάλωση ενέργειας

Α

Σχέδιο ακινήτου
Ανακαλύψτε κάθε γωνιά του ακινήτου
+4
Πρόσθετες επιλογές

Επικοινώνησε με τον αγγελιοδότη

Ή