Δυάρι νέο, Sveti Filip i Jakov

€ 278.000
2
86 m²
2
Όχι
Βεράντα

Σημείωση

Τελευταία ενημέρωση: 29/01/2026
Περιγραφή

κωδικός: 2027

NOVOGRADNJA – Apartman u prizemlju s terasom i parkirnim mjestom | Sveti Filip i Jakov

Prodaje se moderan apartman u prizemlju manje stambene zgrade s ukupno 9 stanova i liftom, smješten u mirnom i atraktivnom dijelu mjesta Sveti Filip i Jakov.

Apartman je orijentiran na sjeverozapad, ima prekrasan pogled te prostranu terasu, idealnu za uživanje tijekom cijele godine.
Neto površina apartmana iznosi 86,80 m2.

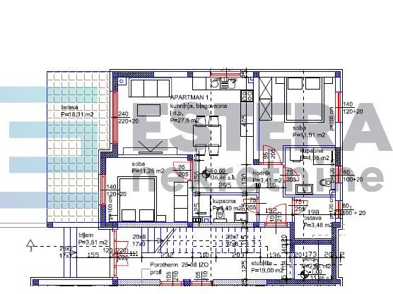
Raspored prostorija:

- hodnik – 3,41 m2


- ostava – 3,46 m2


- kupaonica – 4,98 m2


- kupaonica – 3,49 m2


- spavaća soba – 11,25 m2


- spavaća soba – 11,40 m2


- kuhinja s blagovaonicom i dnevnim boravkom – 27,60 m2


- terasa – 17,33 m2


- vrt - cca100 m2


- 1 parkirno mjesto uključeno u cijenu



Kvaliteta gradnje i oprema:

Zgrada se gradi prema najvišim standardima, uz korištenje visoko kvalitetnih materijala:

- lift


- gradnja ciglenim termo blokom


- termo fasada (10 cm stiropor)


- podne obloge: pločice i parketi


- PVC i ALU stolarija s električnim roletama i komarnicima


- 3 klima uređaja (dnevni boravak + spavaće sobe)


- podno grijanje u cijelom stanu


- protupožarna i protuprovalna ulazna vrata


- očekivani energetski certifikat A+



Dodatne pogodnosti:

- Kupac ne plaća porez na promet nekretnina


- idealno za investiciju u turistički najam


- investitori nude vlastitu agenciju za vođenje apartmana


- planirano useljenje: 01.07.2026.



Lokacija:

Sveti Filip i Jakov nalazi se između Zadra i Biograda, uz uređenu šetnicu koja povezuje rivijeru Sv. Filip i Jakov – Turanj.
Mjesto nudi sve potrebno za ugodan život i odmor – plaže, restorani, kafići i trgovine dostupni pješice, a u neposrednoj blizini su Biograd, Fun Park Mirnovec, Zadar te Nacionalni park Krka.

Izvrsna prilika za miran život, odmor ili sigurnu investiciju!

Za sve dodatne informacije i dogovor oko razgleda:

Vedran Knežević
+385 91 938 1007
(dostupan na WhatsAppu i Viberu)
Εάν θέλετε να μάθετε περισσότερα, μπορείτε να μιλήσετε με Gordan Mikac.
Χαρακτηριστικά
Τύπος
Διαμέρισμα | Ακίνητο μεσαίας κατηγορίας
Συμβόλαιο
Πώληση
Σύνολο ορόφων
2
Ανελκυστήρας
Όχι
Εμβαδόν
86 m²
Δωμάτια
2
Υπνοδωμάτια
2
Μπάνια
2
Μπαλκόνι
Όχι
Βεράντα
Ναι
Πληροφορίες τιμής
Τιμή
€ 278.000
Τιμή ανά m²
3.233 €/m²
Ενεργειακή απόδοση
  • Έτος κατασκευής

    2026
  • Κατάσταση

    Νεόδμητο / Υπό κατασκευή
  • Ενεργειακή πιστοποίηση

    Εκκρεμεί πιστοποίηση
Ανακαλύψτε κάθε γωνιά του ακινήτου
+3
Πρόσθετες επιλογές

Επικοινώνησε με τον αγγελιοδότη

Ή