Κατάστημα - Εμπορικός χώρος προς Πώληση

€ 267.000
1
85 m²
1

Σημείωση

Τελευταία ενημέρωση: 24/02/2026
Περιγραφή

κωδικός: 5577

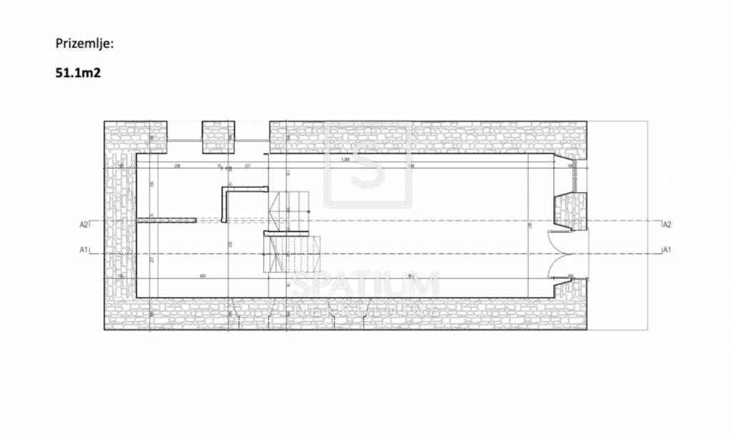
VOLOSKO, u ponudi je poslovni prostor u prizemlju povijesne zgrade na odličnoj lokaciji blizu mora. Prostor je adaptiran do razine visokog roh-bau. Provedene su nove elektroinstalacije, voda i odvodnja. Dodana je stropna zvučna izolacija. Zamijenjena je vanjska aluminijska stolarija. Zidovi su obloženi gips pločama. Poslovnom prostoru pripada prizemlje i međukat koji se mogu koristiti za različite djelatnosti od uredskih, uslužnih ili ugostiteljskih. Na raspolaganju je ulaz iz zajedničkog hodnika zgrade i ulaz direktno s ulice što nudi mogućnost uređenja dva apartmana. Dosad odrađeni radovi ostavljaju dobar dojam jer je prostor suh, prozračan te nudi različite opcije novom vlasniku za završno uređenje i korištenje. Dodatna prednost je upravo i odlična lokacija blizu mora, strogog centra mjesta i povijesne jezgre.

Volosko, poznato po svojoj bogatoj povijesti i jedinstvenoj mediteranskoj arhitekturi, odabran je među najljepšim "skrivenim draguljima" Europe prema izboru organizacije European Best Destinations.
Na samo nekoliko koraka nalazi se šetnica Lungomare, jedna od najpoznatijih jadranskih obalnih šetnica koja povezuje Opatiju i Volosko, dok plaža Črnikovica nudi oazu mira u ljetnim mjesecima i pruža uživanje u kristalno čistom moru. U neposrednoj blizini nalaze se i trgovački centar Tramontana, lokalna tržnica s dnevno svježim namirnicama, restorani i kafići te sportski centri i rekreativne zone. Osim toga, Volosko je strateški smješteno u neposrednoj blizini Opatije, jednog od najpopularnijih turističkih centara na Jadranu, ali i u blizini Rijeke i svih njezinih sadržaja.

Za ostale informacije obratite se s povjerenjem.

Goran Božić
Agent s licencom
+385 98 186 5413
goran@spatium.hr

Spatium nekretnine
+ 385 51 272 903
info@spatium.hr

ID CODE: 5577

Goran Božić
Agent s licencom
Mob: +385 98 186 5413
Tel: +385 51 272 903
E-mail: goran@spatium.hr
www.spatium.hr
Χαρακτηριστικά
Συμβόλαιο
Πώληση
Εμβαδόν
85 m²
Δωμάτια
1 δωμάτιο, 1 μπάνιο
Σύνολο ορόφων
2
Πληροφορίες τιμής
Τιμή
€ 267.000
Τιμή ανά m²
3.141 €/m²
Ενεργειακή απόδοση
  • Ενεργειακή πιστοποίηση

    Χωρίς ταξινόμηση
Σχέδιο ακινήτου
Ανακαλύψτε κάθε γωνιά του ακινήτου
+8
Πρόσθετες επιλογές

Επικοινώνησε με τον αγγελιοδότη

Ή