Τεσσάρι Pulac, Rijeka, Pulac - Skurinska Draga, Ριέκα

€ 671.000
4
167 m²
2
2
Όχι
Βεράντα

Σημείωση

Τελευταία ενημέρωση: 14/04/2026
Περιγραφή

This description has been translated automatically and may not be accurate

κωδικός: 2869

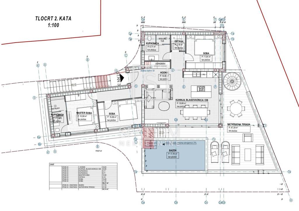
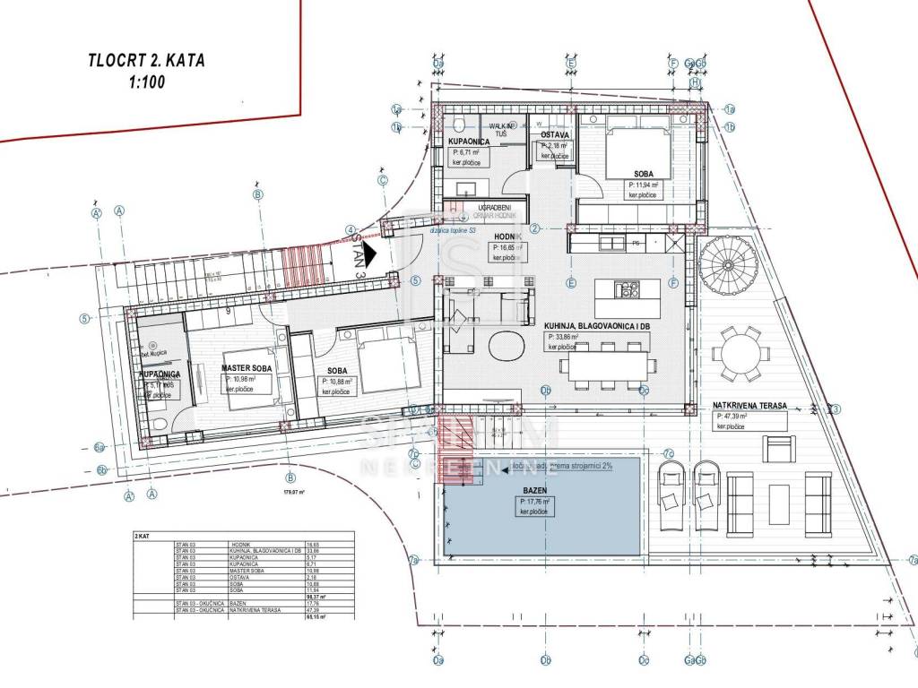
PULAC, we have received a luxurious spacious apartment on the second floor of a new building with an area of 98.37 m2 of well-designed interior space. Located in a quiet location surrounded by a green belt and only 2 km drive from the city center and all other important facilities.
It consists of a kitchen, dining room and living room, utility room, bathroom and three spacious bedrooms, including a master bedroom with an en suite bathroom. With 98.37 m2 of interior space, 65.15 m2 of exterior space and an impressive roof terrace of 79.96 m2, this apartment offers exclusive space and an unforgettable living experience at a high level.
In addition to a heated pool of 17.76 m2, apartment 3 also has 3 parking spaces and a charger for electric cars.
With a thermal facade and underfloor heating from the manufacturer Daikin, a warm home is guaranteed. The heat pump with a hot water tank produces enough hot water for consumption in a very efficient way. Cooling is A+++ thanks to the most modern technology from the supplier Daikin. 4 indoor units are connected to 1 external unit of 8 kW. Heating and cooling are automatically regulated in each room separately. Protection from external influences and heat losses with quality joinery from renowned suppliers.
It should be noted that there is a possibility of individual design and interior decoration of future tenants.

Move-in deadline: June 2025.

The Brašćine - Pulac local committee is located in an extremely attractive location in the northwestern part of Rijeka.
The hills on which the local committee is located have always been strategic places for the rulers of the city on the Rječina River. They were also inhabited by the Illyrians who built a fortress and their settlements here, since ancient times this area has been of exceptional importance for the entire region. Brašćine - Pulac is a local committee of the city of Rijeka.
For all other information, please contact us with confidence.

Rok Lulić
licensed agent
+385 91 2206 204
rok@spatium.hr

Spatium nekretnine
+385 51 272 903
info@spatium.hr

ID CODE: 2869

Rok Lulić
Agent s licencom
Mob: +385 91 220 6204
Tel: +385 51 272 903
E-mail: rok@spatium.hr
www.spatium.hr
Χαρακτηριστικά
Τύπος
Διαμέρισμα
Συμβόλαιο
Πώληση
Όροφος
2 όροφος
Σύνολο ορόφων
2
Ανελκυστήρας
Όχι
Εμβαδόν
167 m²
Δωμάτια
4
Υπνοδωμάτια
3
Μπάνια
2
Μπαλκόνι
Όχι
Βεράντα
Ναι
Γκαράζ, χώροι στάθμευσης
3 εξωτερικό
Θέρμανση
Αυτόνομη, θέρμανση αέρος
Κλιματισμός
Αυτόνομη, κρύο/ζέστη
Πληροφορίες τιμής
Τιμή
€ 671.000
Τιμή ανά m²
4.018 €/m²
Ενεργειακή απόδοση

Κατανάλωση ενέργειας

A+

Σχέδιο ακινήτου
Ανακαλύψτε κάθε γωνιά του ακινήτου
+15
Πρόσθετες επιλογές

Επικοινώνησε με τον αγγελιοδότη

Ή