Τριάρι Privlaka, Privlaka

€ 257.004
3
77 m²
1
1
Όχι

Σημείωση

Τελευταία ενημέρωση: 22/01/2026
Περιγραφή

This description has been translated automatically and may not be accurate

κωδικός: 741

A two-bedroom apartment in a new building is for sale in Privlaka, Zadar County.

The apartment is located on the first floor of a three-story building with a total of six apartments. The building is located in a quiet part of Privlaka and meets high aesthetic and functional standards.

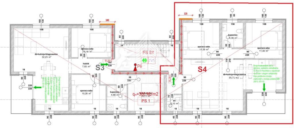
The apartment marked S4 with a total living area of 69.45 m2 consists of a living area with a kitchen, dining room and living room, two bedrooms, a bathroom with a toilet and a small toilet/laundry room. The living area leads to a covered terrace of 6.85 m2. The apartment also has two outdoor parking spaces.

The building is built of brick thermal blocks. Energy efficiency is contributed by a 10 cm thick polystyrene facade and PVC joinery with ALU shutters and mosquito nets. Heating and cooling are provided by air conditioning units located in the living area and bedrooms. For additional heating, underfloor heating has been installed in the bathroom and toilet/laundry room. The floor coverings are a combination of high-quality ceramic tiles and laminate. Security and fire doors contribute to the safety of future tenants.

The building is surrounded by other modern villas and buildings, only 300 m from the beach. It represents an ideal opportunity for a family vacation, an escape from everyday life.

Documentation and ownership are in order.

ID CODE: 741

Antonio Gabre
Agent s licencom
Mob: +385 91 344 7899
E-mail: antonio@lavicci-nekretnine.hr
www.lavicci-nekretnine.hr

Lavicci Nekretnine
Voditelj ureda
Mob: +385 91 344 7899
E-mail: info@lavicci-nekretnine.hr
www.lavicci-nekretnine.hr
Χαρακτηριστικά
Τύπος
Διαμέρισμα
Συμβόλαιο
Πώληση
Όροφος
1 όροφος
Σύνολο ορόφων
2
Ανελκυστήρας
Όχι
Εμβαδόν
77 m²
Δωμάτια
3
Υπνοδωμάτια
2
Μπάνια
1
Μπαλκόνι
Όχι
Βεράντα
Όχι
Γκαράζ, χώροι στάθμευσης
2 εξωτερικό
Θέρμανση
Αυτόνομη, θέρμανση αέρος
Κλιματισμός
Αυτόνομη, κρύο/ζέστη
Άλλα χαρακτηριστικά
  • Πόρτα ασφαλείας
Πληροφορίες τιμής
Τιμή
€ 257.004
Τιμή ανά m²
3.338 €/m²
Ενεργειακή απόδοση

Κατανάλωση ενέργειας

Α

Σχέδιο ακινήτου
Ανακαλύψτε κάθε γωνιά του ακινήτου
+20
Πρόσθετες επιλογές

Επικοινώνησε με τον αγγελιοδότη

Ή