Τριάρι Poreč, Červar-Porat - Veli Maj, Πόρετς

€ 505.000
3
125 m²
3+
ΙΣ
Όχι
Μπαλκόνι
Βεράντα

Σημείωση

Τελευταία ενημέρωση: 28/04/2026
Περιγραφή

This description has been translated automatically and may not be accurate

κωδικός: 2049

ISTRA – POREČ: New Construction with Sea View, 900 m from the Beach

Sale of new real estate in a desirable part of Poreč. In a modern, well-kept area just 900 m from the sea, there is a high-quality new residential development with five housing units. The project is carefully designed to blend functional urban living with privacy and luxury. The old town of Poreč is just 2.5 km away, reachable via a well-maintained seaside promenade ideal for leisurely walks or cycling.

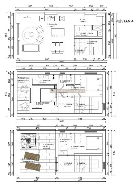
For Sale – Left-side Unit, 125 m²
Living area: 125 m²
Plot: 230 m²
Price: €505,000
Parking spaces: 2

This spacious housing unit is located on the left side of the building and features a private entrance, paved terrace, and landscaped garden. It offers the advantages of a small building with the privacy and comfort of a family house.

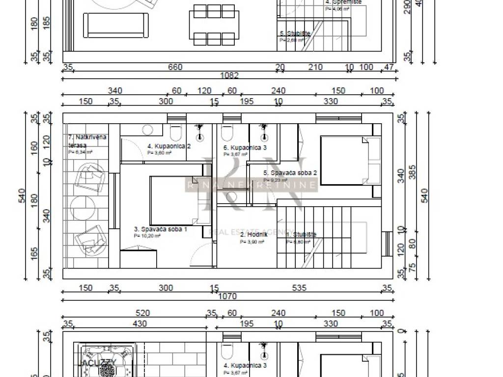
Layout by floor:
Ground floor: entrance hall, open-plan living room with kitchen and dining area, WC and utility room. From the living room, there is access to the paved terrace and garden.
First floor: two spacious bedrooms, each with its en-suite bathroom. One room leads to a terrace.
Second floor: master bedroom with private bathroom and space for built-in wardrobes. Access to a large terrace with panoramic sea view, complete with a jacuzzi.

Technical features:

Completed in 2025

High-quality materials and modern design

Underfloor heating via heat pump

Mitsubishi inverter air conditioners for heating and cooling

Two private parking spaces

Fully legal documentation, ready for ownership transfer

Contact
Višnja
091 2848 310 (Croatia)

+385 91 2848 310 (International)

Available via WhatsApp and Viber

e-mail: info@rina-nekretnine.hr

Contact us with confidence and book a viewing of your future property in Poreč.
Move-in ready – an opportunity for quality living in a prestigious location.

ID CODE: 2049

Višnja Broqi
Agent s licencom
Mob: +385 91 284 8310
Tel: +385 1 638 2643
E-mail: info@rina-nekretnine.hr
www.rina-nekretnine.hr
Χαρακτηριστικά
Τύπος
Διαμέρισμα
Συμβόλαιο
Πώληση
Όροφος
Ισόγειο
Σύνολο ορόφων
3
Ανελκυστήρας
Όχι
Εμβαδόν
125 m²
Δωμάτια
3
Υπνοδωμάτια
3
Μπάνια
3+
Μπαλκόνι
Ναι
Βεράντα
Ναι
Γκαράζ, χώροι στάθμευσης
2 εξωτερικό
Κλιματισμός
Αυτόνομη, κρύο/ζέστη
Άλλα χαρακτηριστικά
  • Πόρτα ασφαλείας
Πληροφορίες τιμής
Τιμή
€ 505.000
Τιμή ανά m²
4.040 €/m²
Ενεργειακή απόδοση

Κατανάλωση ενέργειας

A+

Σχέδιο ακινήτου
Ανακαλύψτε κάθε γωνιά του ακινήτου
+26
Πρόσθετες επιλογές

Επικοινώνησε με τον αγγελιοδότη

Ή