Τεσσάρι Kurilovec, Velika Gorica, Velika Gorica

€ 413.825
4
121 m²
2
2
Όχι

Σημείωση

Τελευταία ενημέρωση: 18/04/2026
Περιγραφή

This description has been translated automatically and may not be accurate

κωδικός: 522

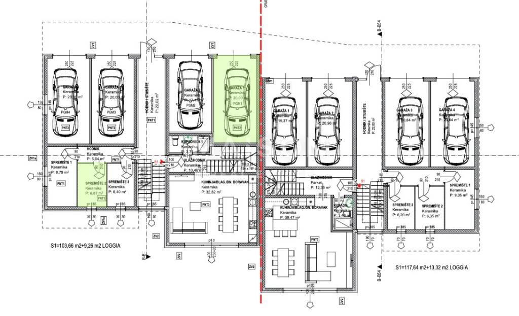
Apartment S4 A– 3 bedrooms, 2 bathrooms and a spacious loggia

Within this high-quality new development in Kurilovec, we present Apartment S4 a well-designed three-bedroom unit located on the second floor, ideal for family living or anyone seeking comfort, space and functionality.
The apartment consists of three bedrooms, including a generous master bedroom, two bathrooms, and a large open-plan living room with kitchen and dining area. A standout feature is the covered loggia of almost 21 m² an ideal outdoor extension of the living space, perfect for relaxing or entertaining for most of the year.
The project is built to the highest construction standards, featuring a reinforced concrete structure, excellent thermal insulation, PVC bluEvolution joinery with triple-glazed windows and motorised shutters, heat pump system with underfloor heating throughout, air-conditioned rooms, video intercom and security entrance door.

The apartment includes:
– one garage parking space 20,00m2
– one outdoor parking space 12,50 m2
– a ground-floor storage unit 6,87 m2

Apartment S4 offers an excellent layout, high comfort, and a modern lifestyle in a peaceful neighbourhood, with quick access to all essential amenities in Velika Gorica and Zagreb.

For more information or to schedule a private presentation of the project, feel free to contact us.

Maison – where property becomes home.

ID CODE: 522

Dario Oriović
CEO
Mob: +385 91 474 0205
Tel: +385 51 640 777
E-mail: dario@maison-nekretnine.com
www.maison-nekretnine.com
Χαρακτηριστικά
Τύπος
Διαμέρισμα
Συμβόλαιο
Πώληση
Όροφος
2 όροφος
Σύνολο ορόφων
2
Ανελκυστήρας
Όχι
Εμβαδόν
121 m²
Δωμάτια
4
Υπνοδωμάτια
3
Μπάνια
2
Μπαλκόνι
Όχι
Βεράντα
Όχι
Θέρμανση
Αυτόνομη, θέρμανση αέρος
Πληροφορίες τιμής
Τιμή
€ 413.825
Τιμή ανά m²
3.420 €/m²
Ενεργειακή απόδοση

Κατανάλωση ενέργειας

A+

Σχέδιο ακινήτου
Ανακαλύψτε κάθε γωνιά του ακινήτου
+4
Πρόσθετες επιλογές

Επικοινώνησε με τον αγγελιοδότη

Ή