Τριάρι Cres, Cres

€ 385.000
3
92 m²
1
ΙΣ
Όχι
Βεράντα

Σημείωση

Τελευταία ενημέρωση: 18/04/2026
Περιγραφή

This description has been translated automatically and may not be accurate

κωδικός: 611

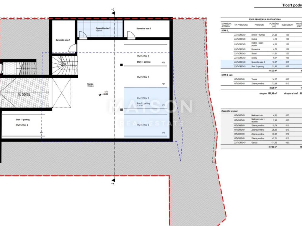
In an attractive location in the town of Cres, we are selling apartment S2 on the ground floor of a modern new building, ideal for peaceful family living or as a tourism investment.

The apartment has a total area of 92.91 m² and consists of two bedrooms, a living room with kitchen and dining area, a hallway, and a bathroom. The living room opens onto a spacious terrace of 14.57 m², and the apartment is further enhanced by a yard of 73.68 m², offering privacy and outdoor enjoyment.

The apartment features underfloor heating in the bathroom and air conditioning units for heating and cooling in other rooms, ensuring year-round comfort.

The apartment also includes two private garage parking spaces and a storage room, further increasing functionality and comfort.

The planned completion of construction is in 2026, and the building will be constructed in accordance with modern energy efficiency and quality standards.

This property is an excellent opportunity for those seeking a new and high-quality apartment in one of the most desirable locations on the island of Cres.

For more information and a detailed presentation, feel free to contact us.

Maison – because a home is not just a place, but a way of life.

ID CODE: 611

Jelena Mavrović
Asistent u prodaji
Mob: +385 98 199 2021
Tel: +385 51 640 777
E-mail: jelena@maison-nekretnine.com
www.maison-nekretnine.com
Χαρακτηριστικά
Τύπος
Διαμέρισμα
Συμβόλαιο
Πώληση
Όροφος
Ισόγειο
Σύνολο ορόφων
1
Ανελκυστήρας
Όχι
Εμβαδόν
92 m²
Δωμάτια
3
Υπνοδωμάτια
2
Μπάνια
1
Μπαλκόνι
Όχι
Βεράντα
Ναι
Γκαράζ, χώροι στάθμευσης
1 σε πάρκινγκ/κλειστό πάρκινγκ, 2 εξωτερικό
Θέρμανση
Αυτόνομη, θέρμανση αέρος
Κλιματισμός
Αυτόνομη, κρύο/ζέστη
Πληροφορίες τιμής
Τιμή
€ 385.000
Τιμή ανά m²
4.185 €/m²
Ενεργειακή απόδοση
  • Έτος κατασκευής

    2026
  • Θέρμανση

    Αυτόνομη, θέρμανση αέρος
  • Κλιματιστικό μηχάνημα

    Αυτόνομη, κρύο/ζέστη
  • Ενεργειακή πιστοποίηση

    Χωρίς ταξινόμηση
Ανακαλύψτε κάθε γωνιά του ακινήτου
+3
Πρόσθετες επιλογές

Επικοινώνησε με τον αγγελιοδότη

Ή