Τεσσάρι Poreč, Luka, Πόρετς

€ 395.000
4
127 m²
3
2
Όχι

Σημείωση

Τελευταία ενημέρωση: 22/01/2026
Περιγραφή

This description has been translated automatically and may not be accurate

κωδικός: 379

In a peaceful location near the town, 5 residential units are for sale.
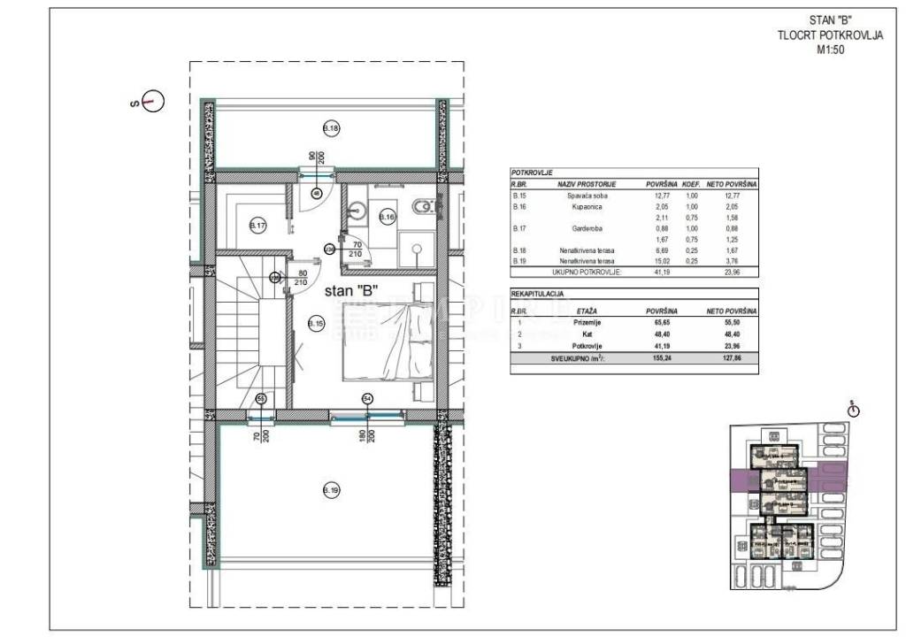
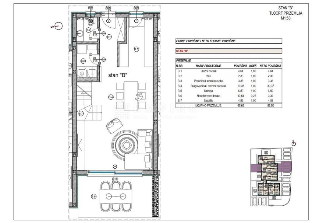
Apartment B consists of the ground floor, first floor, and attic.
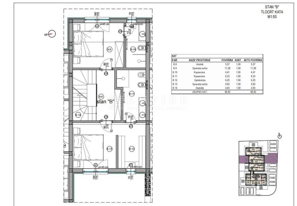
On the ground floor, there is a laundry and technical room, a WC, kitchen and dining room, living room, and a covered terrace. The first floor has two bedrooms with bathrooms, while the attic has a bedroom, bathroom, and two uncovered terraces.
The yard is 96 m² in size.
The apartment comes with two parking spaces!
There is an option to purchase the apartment in the Rohbau phase for a price of 337,500 EUR.
Top location!

EMPIRE Real Estate Agency offers a wide range of properties in Istria, including luxury villas, seaside apartments, and traditional houses. Our expertise in buying and selling real estate ensures you legal security and support from local experts at every step. Contact us today to find your perfect property or to learn more about our services. With EMPIRE, your search for the ideal home becomes a pleasant experience!

ID CODE: 379

Vilijam Mendiković mag. oec.
Agent s licencom
Mob: 00385 98 549 156
E-mail: info@empire.hr
www.empire.hr
Χαρακτηριστικά
Τύπος
Διαμέρισμα
Συμβόλαιο
Πώληση
Όροφος
2 όροφος
Σύνολο ορόφων
2
Ανελκυστήρας
Όχι
Εμβαδόν
127 m²
Δωμάτια
4
Υπνοδωμάτια
3
Μπάνια
3
Μπαλκόνι
Όχι
Βεράντα
Όχι
Γκαράζ, χώροι στάθμευσης
2 εξωτερικό
Θέρμανση
Αυτόνομη, θέρμανση αέρος
Πληροφορίες τιμής
Τιμή
€ 395.000
Τιμή ανά m²
3.110 €/m²
Ενεργειακή απόδοση
  • Θέρμανση

    Αυτόνομη, θέρμανση αέρος
  • Ενεργειακή πιστοποίηση

    Χωρίς ταξινόμηση
Σχέδιο ακινήτου
Ανακαλύψτε κάθε γωνιά του ακινήτου
+8
Πρόσθετες επιλογές

Επικοινώνησε με τον αγγελιοδότη

Ή