Μονοκατοικία Ozalj, Ozalj

€ 177.000
3
102 m²
1
Όχι
Βεράντα

Σημείωση

Τελευταία ενημέρωση: 22/01/2026
Περιγραφή

This description has been translated automatically and may not be accurate

κωδικός: 361

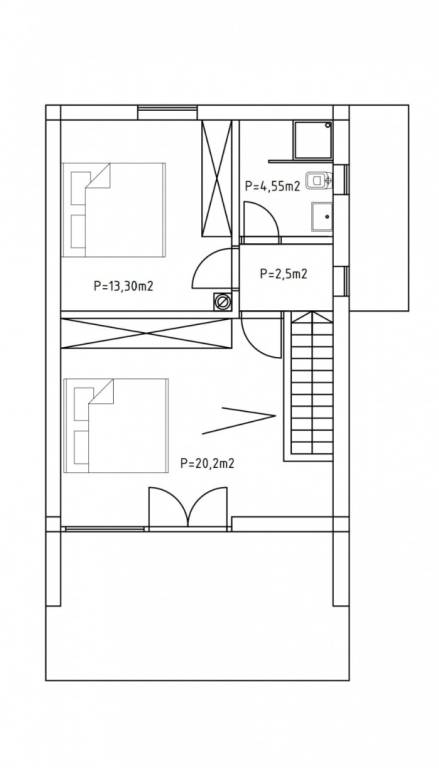
In a quiet location, not far from the town of Ozalj, there is a unique project that combines modern design and functionality, now available for sale! This elegant property impresses with its minimalist style, straight lines and large glass surfaces that create a perfect harmony between the interior and the natural environment. The house extends over two floors - ground floor and first floor. On the ground floor there is an entrance area, a spacious living room with a kitchen and dining room, and a toilet, while the first floor includes two bedrooms and a modern bathroom. The yard, arranged with special care, provides a pleasant environment for relaxation and socializing, while secured parking spaces add to the practicality. Quality construction and the use of top-quality materials, including a ventilated facade covered with sheet metal, ensure durability and top-notch energy efficiency. It is important to emphasize that the house is made of masonry, not prefabricated, which additionally guarantees durability and stability. Modern architecture and carefully chosen details make it the perfect choice for those looking for a high quality contemporary home. Building a house starts with a down payment, and the price listed in the ad is for a turnkey model, giving you a worry-free move into your new home.

Dear clients, the agency commission is charged in accordance with the General Terms and Conditions:
www.myadriatic.hr/opci-uvjeti-poslovanja

ID CODE: 361

Igor Popović
Mob: +385 91 500 8728
Tel: +385 91 500 8728
E-mail: info@myadriatic.hr
www.myadriatic.hr
Χαρακτηριστικά
Τύπος
Μονοκατοικία
Συμβόλαιο
Πώληση
Ανελκυστήρας
Όχι
Εμβαδόν
102 m²
Δωμάτια
3
Υπνοδωμάτια
2
Μπάνια
1
Μπαλκόνι
Όχι
Βεράντα
Ναι
Πληροφορίες τιμής
Τιμή
€ 177.000
Τιμή ανά m²
1.735 €/m²
Ενεργειακή απόδοση
  • Ενεργειακή πιστοποίηση

    Χωρίς ταξινόμηση
Σχέδιο ακινήτου
Ανακαλύψτε κάθε γωνιά του ακινήτου
+9
Πρόσθετες επιλογές

Επικοινώνησε με τον αγγελιοδότη

Ή