Τριάρι Privlaka, Privlaka

€ 362.000
3
168 m²
1
2
Όχι
Μπαλκόνι
Βεράντα

Σημείωση

Τελευταία ενημέρωση: 22/01/2026
Περιγραφή

This description has been translated automatically and may not be accurate

κωδικός: 56

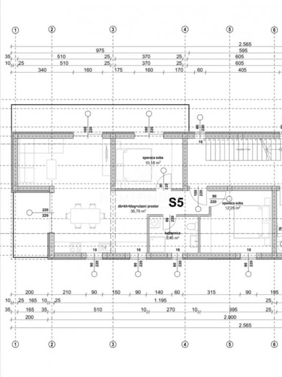
Apartment S5 – Modern apartment under construction with a swimming pool on the terrace, 200m from the beach, with a sea view For sale is an apartment in a new building, located just 200 meters from the arranged beach, with a beautiful sea view. The apartment consists of a spacious living room, two bedrooms, a bathroom, an additional toilet, a hallway, a covered terrace and a roof uncovered terrace with a swimming pool. The price also includes two parking spaces. The building is built with thermal insulation brick blocks, and the apartment is equipped with electric underfloor heating and four air conditioners for optimal temperature throughout the year. PVC joinery with triple-layer glass, roller shutters and mosquito nets ensure high energy efficiency, while the facade is insulated with 10 cm of polystyrene. The floor coverings combine high-quality ceramics and laminate. The drainage is solved with a bio-purifier. S5 area m2: Bathroom 5.40m2 Kitchen, dining room, living room 35.79m2 Bedroom 12.59m2 Bedroom 10.18m2 Covered terrace 6.85m2 Uncovered terrace 72.44m2 2 parking spaces 25.00m2 Total S5: 168.25m2 Energy certificate: A Floor plan and use: 1.10.2025 Move-in: summer 2025. For more information and an agreement, please feel free to contact us! Contact: Kristian Mikec (training associate) E-mail: info@homefinder.hr Mob: 095 299 9996 www.homefinder.hr

ID CODE: 56

Centralno
Mob: +385 95 299 9996
E-mail: info@homefinder.hr
www.homefinder.hr
Χαρακτηριστικά
Τύπος
Διαμέρισμα
Συμβόλαιο
Πώληση
Όροφος
2 όροφος
Σύνολο ορόφων
2
Ανελκυστήρας
Όχι
Εμβαδόν
168 m²
Δωμάτια
3
Υπνοδωμάτια
3
Μπάνια
1
Μπαλκόνι
Ναι
Βεράντα
Ναι
Γκαράζ, χώροι στάθμευσης
2 εξωτερικό
Θέρμανση
Αυτόνομη, θέρμανση αέρος
Κλιματισμός
Αυτόνομη, κρύο/ζέστη
Πληροφορίες τιμής
Τιμή
€ 362.000
Τιμή ανά m²
2.155 €/m²
Ενεργειακή απόδοση

Κατανάλωση ενέργειας

Α

Σχέδιο ακινήτου
Ανακαλύψτε κάθε γωνιά του ακινήτου
+37
Πρόσθετες επιλογές

Επικοινώνησε με τον αγγελιοδότη

Ή