Τεσσάρι Omišalj, Centar, Omišalj

€ 336.000
4
92 m²
2
1
Όχι
Μπαλκόνι
Βεράντα

Σημείωση

Τελευταία ενημέρωση: 22/01/2026
Περιγραφή

This description has been translated automatically and may not be accurate

κωδικός: 2668

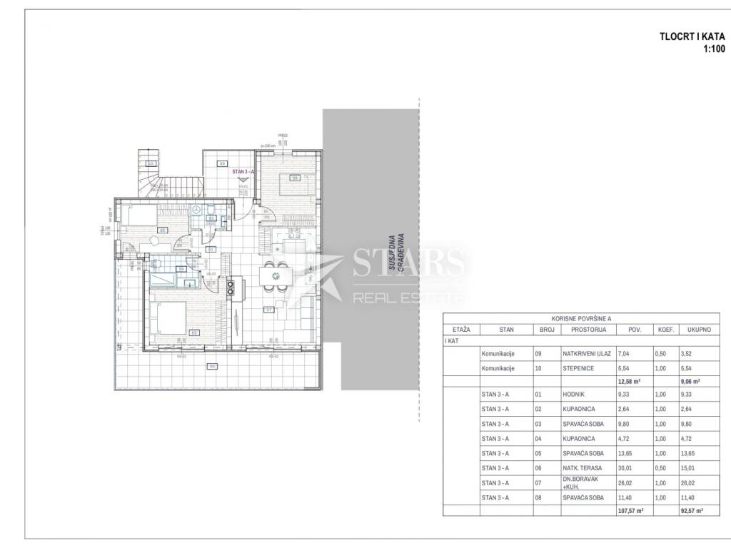
A modern 3-bedroom apartment with a living room (3BR + LR), total area of 92.57 m², is for sale in Omišalj on the island of Krk. The apartment is under construction and located in a residential building with a total of four units.

The building is situated at the end of a cul-de-sac, providing complete privacy and peace. The plot borders a green zone where further construction is not allowed, guaranteeing an unobstructed view and preserved surroundings.

The apartment features:
Three bedrooms (the master bedroom has its own private bathroom)
Living room with kitchen and dining area
Two bathrooms
Spacious covered terrace (15.01 m²) with sea view

Total gross floor area with additional spaces: 107.57 m²
Net usable area (with coefficients): 92.57 m²

The apartment comes with two parking spaces, included in the price.

The apartment will be equipped with heat pumps, underfloor heating in the bathrooms, and PVC joinery, ensuring high energy efficiency and extra comfort.

Expected completion of construction: mid-2027.

This apartment is an ideal opportunity for a peaceful family life, a holiday retreat, or as an investment in one of the most sought-after locations on the Adriatic coast.

For more information or to arrange a viewing, feel free to contact us!

Apartment 3-A

ID CODE: 2668

Mirjana Vadlja
Prodajni predstavnik
Mob: + 385 99 302 5010
Tel: +385 51 302 501
E-mail: mirjana.vadlja@starsrealestate.hr
https://starsrealestate.hr
Χαρακτηριστικά
Τύπος
Διαμέρισμα
Συμβόλαιο
Πώληση
Όροφος
1 όροφος
Σύνολο ορόφων
1
Ανελκυστήρας
Όχι
Εμβαδόν
92 m²
Δωμάτια
4
Υπνοδωμάτια
3
Μπάνια
2
Μπαλκόνι
Ναι
Βεράντα
Ναι
Γκαράζ, χώροι στάθμευσης
2 εξωτερικό
Πληροφορίες τιμής
Τιμή
€ 336.000
Τιμή ανά m²
3.652 €/m²
Ενεργειακή απόδοση
  • Ενεργειακή πιστοποίηση

    Χωρίς ταξινόμηση
Ανακαλύψτε κάθε γωνιά του ακινήτου
+10
Πρόσθετες επιλογές

Επικοινώνησε με τον αγγελιοδότη

Ή