1/8


Τριάρι Povljana, Povljana
€ 322.800
Τελευταία ενημέρωση: 02/02/2026
Περιγραφή
κωδικός: 156
ID CODE: 156
Martina Jurjević
Agent s licencom
Mob: 091 640 1476
E-mail: martina@navia.hr
www.navia.hr
Χαρακτηριστικά
- Τύπος
- Διαμέρισμα
- Συμβόλαιο
- Πώληση
- Όροφος
- Ισόγειο
- Σύνολο ορόφων
- 3
- Ανελκυστήρας
- Όχι
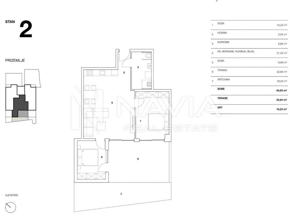
- Εμβαδόν
- 87 m²
- Δωμάτια
- 3
- Υπνοδωμάτια
- 2
- Μπάνια
- 1
- Μπαλκόνι
- Όχι
- Βεράντα
- Ναι
- Θέρμανση
- Αυτόνομη, θέρμανση αέρος
- Κλιματισμός
- Αυτόνομη, κρύο/ζέστη
Πληροφορίες τιμής
- Τιμή
- € 322.800
- Τιμή ανά m²
- 3.710 €/m²
Ενεργειακή απόδοση
Ανακαλύψτε κάθε γωνιά του ακινήτου
Πρόσθετες επιλογές