1/17


Τριάρι Povljana, Povljana
€ 320.400
3
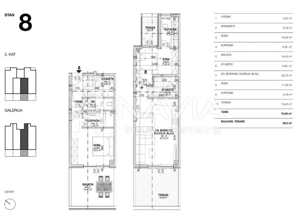
85 m²
2
2
Ναι
Μπαλκόνι
Βεράντα
Τελευταία ενημέρωση: 09/02/2026
Περιγραφή
κωδικός: 160
ID CODE: 160
Martina Jurjević
Agent s licencom
Mob: 091 640 1476
E-mail: martina@navia.hr
www.navia.hr
Χαρακτηριστικά
- Τύπος
- Διαμέρισμα
- Συμβόλαιο
- Πώληση
- Όροφος
- 2 όροφος
- Σύνολο ορόφων
- 3
- Ανελκυστήρας
- Ναι
- Εμβαδόν
- 85 m²
- Δωμάτια
- 3
- Υπνοδωμάτια
- 2
- Μπάνια
- 2
- Μπαλκόνι
- Ναι
- Βεράντα
- Ναι
- Θέρμανση
- Αυτόνομη, θέρμανση αέρος
- Κλιματισμός
- Αυτόνομη, κρύο/ζέστη
Πληροφορίες τιμής
- Τιμή
- € 320.400
- Τιμή ανά m²
- 3.769 €/m²
Ενεργειακή απόδοση
Ανακαλύψτε κάθε γωνιά του ακινήτου
Πρόσθετες επιλογές