Μονοκατοικία πολλαπλών οικογενειών Vodice, Vodice

€ 485.000
4
162 m²
2
Όχι
Βεράντα

Σημείωση

Τελευταία ενημέρωση: 22/01/2026
Περιγραφή

This description has been translated automatically and may not be accurate

κωδικός: 1031

Vodice – Modern, Newly Built Family Home – Move-in Ready!
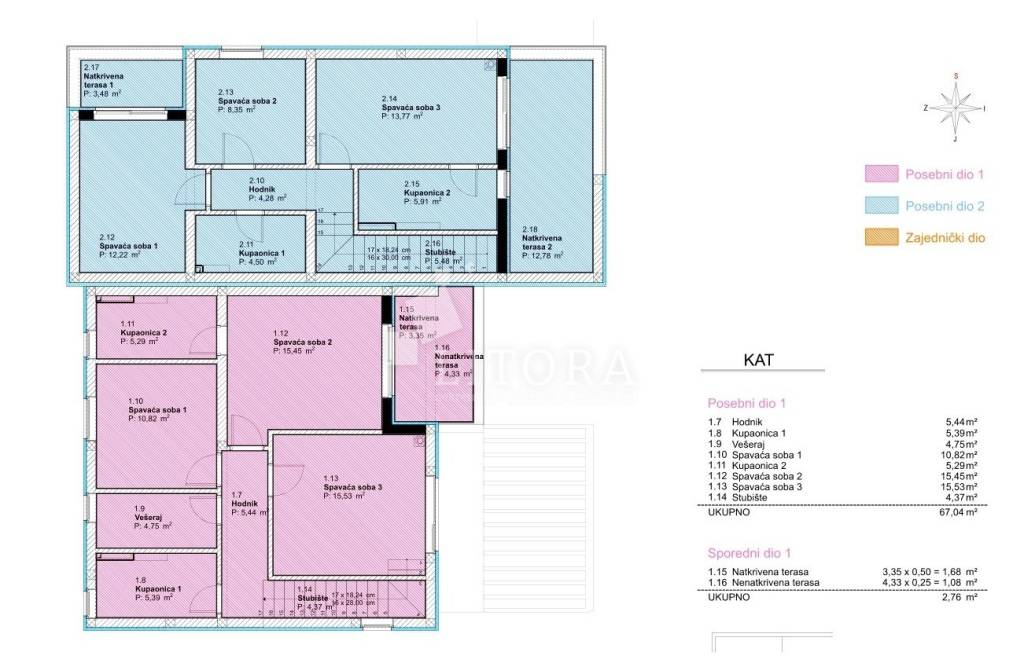
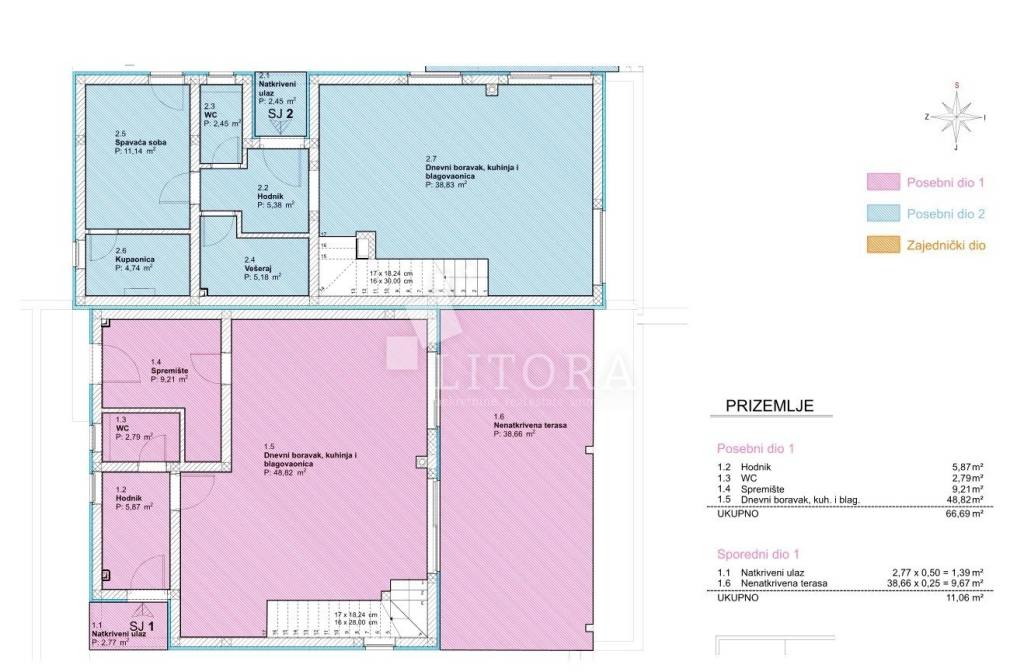
This family home is fully completed and ready for immediate occupancy. It is one half of a semi-detached property, spread over two floors – ground floor and first floor – with a total usable area of 162m². The house features high-quality construction, contemporary design, and a functional layout, ideal for comfortable family living. It also includes a landscaped green yard of 105 m² and a spacious parking area for three vehicles. The ground floor consists of an entrance hall, guest toilet, storage room, and a large open-plan living area connected to the kitchen and dining room, with access to a covered terrace of 38.66 m² – a perfect space for relaxing and entertaining. An internal staircase leads to the first floor, where you'll find a hallway and three cozy bedrooms. The master bedroom has its own en-suite bathroom and access to a partially covered terrace (7.68 m²), while the other two bedrooms share an additional bathroom. The house is equipped to a high standard, including: Security entrance door, PVC windows with electric shutters and mosquito screens, High-quality ceramic floors, Underfloor heating in all bathrooms and the living room, Air conditioning units in the living room and all bedrooms, Installations for telephone, internet, and satellite TV.
Located just 900 m from the center of Vodice and 1,300 m from a well-maintained beach.

ID CODE: 1031

Dijana Banović
Agent s licencom
Mob: +385 98 192 6220
E-mail: dijana@litora-nekretnine.hr
www.litora-nekretnine.hr

Milica Štrkalj
Agent s licencom
Mob: +385 95 342 5722
E-mail: milica@litora-nekretnine.hr
www.litora-nekretnine.hr

Divna Bulat
Agent s licencom
Mob: +385 91 6367 574
E-mail: divna@litora-nekretnine.hr
www.litora-nekretnine.hr
Χαρακτηριστικά
Τύπος
Μονοκατοικία πολλαπλών οικογενειών
Συμβόλαιο
Πώληση
Σύνολο ορόφων
1
Ανελκυστήρας
Όχι
Εμβαδόν
162 m²
Δωμάτια
4
Υπνοδωμάτια
3
Μπάνια
2
Μπαλκόνι
Όχι
Βεράντα
Ναι
Γκαράζ, χώροι στάθμευσης
3 εξωτερικό
Θέρμανση
Αυτόνομη, θέρμανση αέρος
Κλιματισμός
Αυτόνομη, κρύο/ζέστη
Πληροφορίες τιμής
Τιμή
€ 485.000
Τιμή ανά m²
2.994 €/m²
Ενεργειακή απόδοση

Κατανάλωση ενέργειας

A+

Σχέδιο ακινήτου
Ανακαλύψτε κάθε γωνιά του ακινήτου
+18
Πρόσθετες επιλογές

Επικοινώνησε με τον αγγελιοδότη

Ή