Τριάρι Gračani, Podsljeme, Gračani, Ζάγκρεμπ

€ 390.000
3
111 m²
1
ΙΣ
Όχι
Βεράντα

Σημείωση

Τελευταία ενημέρωση: 12/02/2026
Περιγραφή

This description has been translated automatically and may not be accurate

κωδικός: 2792

FOR SALE | Zagreb – Gračani | 2‑Bedroom Apartment with Large Garden | 111.89 m² Net Area

Location: Gračani, Zagreb – quiet street in the foothill zone
Floor: Ground floor in a multi‑unit house (condominium)
Orientation: North, East, South

Living area: 88.15 m²
Total net usable area (incl. terrace, garden, external stairs, parking): 111.89 m²

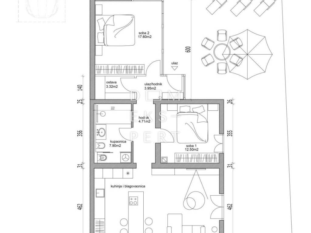
Layout:
- Entrance hall
- Open‑plan living room with kitchen
- 2 bedrooms
- Bathroom with walk‑in shower
- Terrace
- Private garden
- External access staircase
- 1 outdoor parking space

Features:
- Air conditioning
- Triple‑glazed PVC windows
- Bosch condensing boiler
- Geberit sanitary ware
- Gas central heating (radiators)
- High‑quality parquet and ceramic finishes

About the location:
Set in the peaceful foothill area, surrounded by greenery yet close to all urban amenities.
Approx. 550 m to shopping center Meridijan 16 (Super Konzum, pharmacy, post office, ATM, shops).
Nearby: kindergarten, primary school, sports center, Remete park‑forest, Tunel Sljeme and Bikčević hiking trail.
Bus stop only a few minutes on foot; just 6.1 km to Zagreb city center.

CONTACT:
Marina Jurkić
Landline: +385 1 6278 237
Cell: +385 97 698 2207
Mail: marina.jurkic@domekspert.hr

ID CODE: 2792
Χαρακτηριστικά
Τύπος
Διαμέρισμα
Συμβόλαιο
Πώληση
Όροφος
Ισόγειο
Σύνολο ορόφων
1
Ανελκυστήρας
Όχι
Εμβαδόν
111 m²
Δωμάτια
3
Υπνοδωμάτια
2
Μπάνια
1
Μπαλκόνι
Όχι
Βεράντα
Ναι
Θέρμανση
Κεντρική, ενδοδαπέδια θέρμανση
Κλιματισμός
Αυτόνομη, κρύο/ζέστη
Άλλα χαρακτηριστικά
  • Πόρτα ασφαλείας
Πληροφορίες τιμής
Τιμή
€ 390.000
Τιμή ανά m²
3.514 €/m²
Ενεργειακή απόδοση

Κατανάλωση ενέργειας

C

Σχέδιο ακινήτου
Ανακαλύψτε κάθε γωνιά του ακινήτου
+9
Πρόσθετες επιλογές

Επικοινώνησε με τον αγγελιοδότη

Ή