Τεσσάρι Krk, Centar, Krk

€ 639.000
4
150 m²
2
2
Όχι

Σημείωση

Τελευταία ενημέρωση: 22/01/2026
Περιγραφή

This description has been translated automatically and may not be accurate

κωδικός: 102925

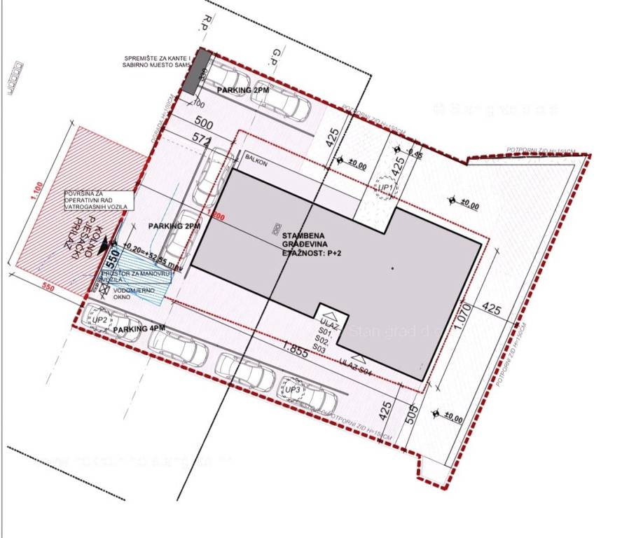
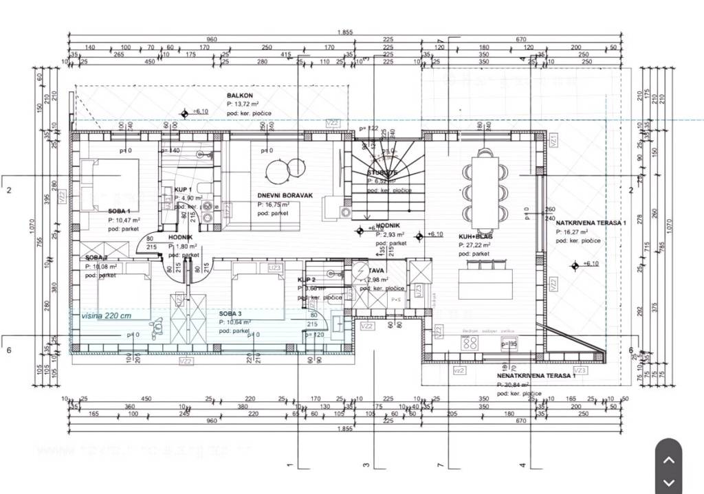
In the real estate offer of the Stan Grad Immobilien agency, on the island of Krk, there is a very attractive apartment perfect for a tourist stay and vacation on the Adriatic. The available property is located in a very attractive location in the immediate vicinity of the city center of Krk and provides an easy walking distance to the beach. Considering the property by type, this is a spacious one-story apartment. Within a very beautiful building, the apartment is located on the 2nd floor. The apartment covers a total area of ​​approximately 150 m2 with a terrace (100 m2 of net living space). This area is occupied by the living room and kitchen, 3 bedrooms, 2 bathrooms, toilet and storage room. This apartment is owned by a parking space for parking two cars. In addition to the mentioned features, this apartment is very well oriented and offers a beautiful view of the sea and the coast. This apartment is subject to VAT. The real estate seller guarantees a quick transfer of ownership rights and proper ownership and technical documentation. Visit us on the island of Krk and make sure that your satisfaction is our priority. In addition to a professional tour and presentation of the property and its legal status, the friendly staff of our agency will be happy to help the buyer of the property in the transfer of ownership rights and the transfer of utility bills to their name.

ID CODE: 102925

Ivan Radman
Direktor, agent
Mob: +385 91 605 1497
Tel: +385 51 677 809
Fax: +385 51 677 809
E-mail: ivan.radman@stangrad.hr
www.stangrad.hr
Χαρακτηριστικά
Τύπος
Διαμέρισμα
Συμβόλαιο
Πώληση
Όροφος
2 όροφος
Ανελκυστήρας
Όχι
Εμβαδόν
150 m²
Δωμάτια
4
Υπνοδωμάτια
3
Μπάνια
2
Μπαλκόνι
Όχι
Βεράντα
Όχι
Γκαράζ, χώροι στάθμευσης
2 εξωτερικό
Πληροφορίες τιμής
Τιμή
€ 639.000
Τιμή ανά m²
4.260 €/m²
Ενεργειακή απόδοση

Κατανάλωση ενέργειας

Α

Σχέδιο ακινήτου
Ανακαλύψτε κάθε γωνιά του ακινήτου
+9
Πρόσθετες επιλογές

Επικοινώνησε με τον αγγελιοδότη

Ή