Τριάρι Barbariga, Vodnjan, Vodnjan

€ 252.200
3
66 m²
1
ΙΣ
Όχι
Μπαλκόνι
Βεράντα

Σημείωση

Τελευταία ενημέρωση: 22/01/2026
Περιγραφή

This description has been translated automatically and may not be accurate

κωδικός: 3911

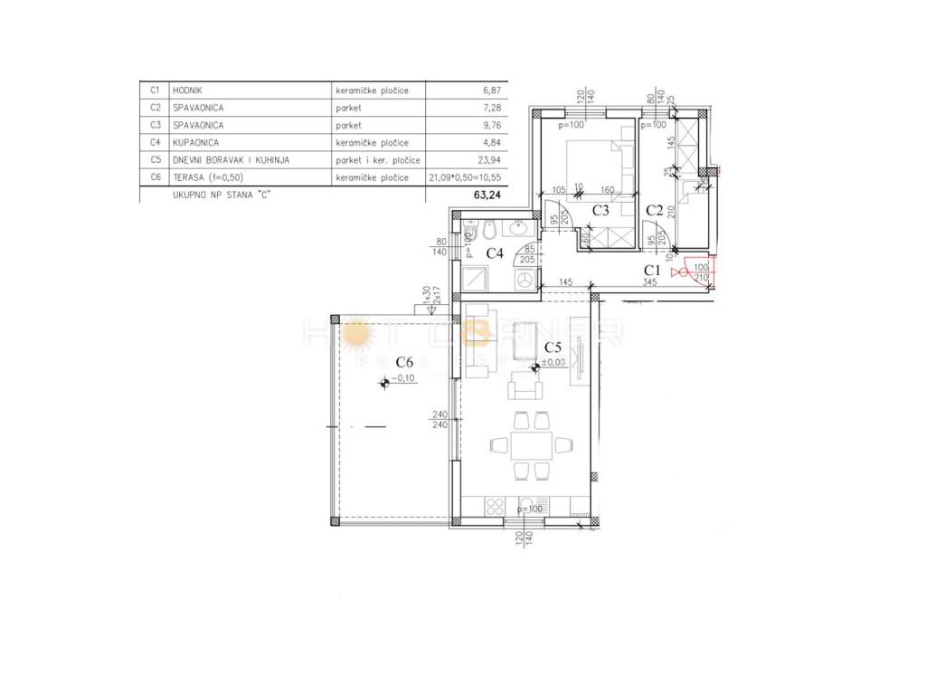
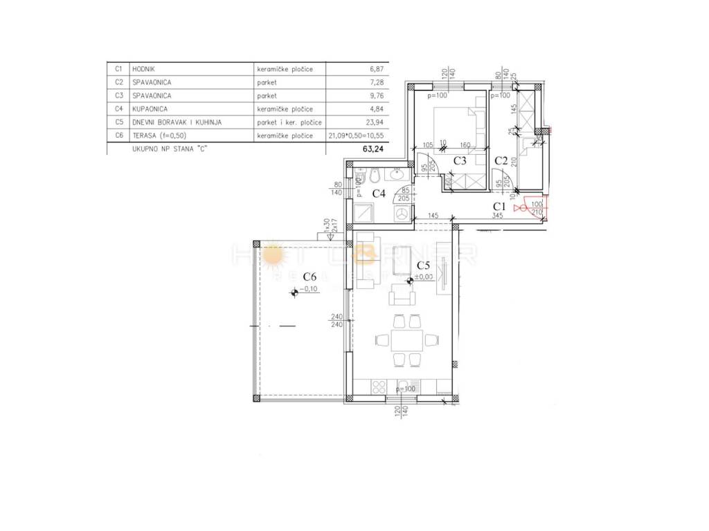
For sale is a beautiful modern apartment in a new building in Barbariga, Vodnjan, measuring 63.52m2 on the ground floor of a small residential building of only 6 apartments. The building is located only 300 m from the sea and the beach. The apartment is located on the ground floor and consists of an entrance hall (5.79m2), a storage room under the stairs (4.64m2, net reduced area 2.32m2), 2 bedrooms (10.88m2 and 11.11m2), a living room with kitchen and dining area (24.80m2), a bathroom (5.57m2), and a terrace (6.10m2, net reduced area 3.05m2). A total of 63.52 m2,

High-quality construction and modern design will enable a pleasant family life but will certainly impress tourists looking for a vacation. Top location, close to the sea and beaches and all amenities and attractions.

The apartment will be equipped with burglar-proof entrance doors, external PVC carpentry with blinds, inverter air conditioners, laminate in the bedrooms and living room, and high-quality ceramic tiles in the other rooms of the apartment. Intercom, sockets and switches, antenna, sanitary facilities, boiler, shower. The exits to the terraces will be made with sliding walls. Demit facade on the building.

The apartment also has 1 outdoor parking space.

All apartments on offer:

GROUND FLOOR:
Apartment A on the ground floor = 63.52 m2 + outdoor parking space = 66.50 m2 = 266,600.00 eur
Apartment B on the ground floor = 67.88 m2 + outdoor parking space = 71.01 m2 = 284,040.00 eur
Apartment C on the ground floor = 63.24 m2 + outdoor parking space = 66.37 m2 = 265,480.00 eur

1ST FLOOR:
Apartment D on the 1st floor = 59.79 m2 + outdoor parking space = 62.92 m2 = 251,680.00 eur
Apartment E on the 1st floor = 67.88 m2 + outdoor parking space = 71.01 m2 = 284,040.00 eur
Apartment F on 1st floor = 71.81 m2 + outdoor parking space = 74.94 m2 = 299,760.00 eur

Ownership is 1/1, no encumbrances.

On the agreed purchase price, the buyer pays the agreed agency commission in accordance with the terms of business and company fees.

Contact:
Dean
+385 99 369 9053

ID CODE: 3911

Dean Ostović
Ovlašteni agent
Mob: +385 99 369 9053
Tel: +385 52 212 841
Fax: +385 52 212 841
E-mail: dean@hotcorner.hr
www.hotcorner.hr
Χαρακτηριστικά
Τύπος
Διαμέρισμα
Συμβόλαιο
Πώληση
Όροφος
Ισόγειο
Ανελκυστήρας
Όχι
Εμβαδόν
66 m²
Δωμάτια
3
Υπνοδωμάτια
2
Μπάνια
1
Μπαλκόνι
Ναι
Βεράντα
Ναι
Γκαράζ, χώροι στάθμευσης
1 εξωτερικό
Κλιματισμός
Αυτόνομη, κρύο/ζέστη
Πληροφορίες τιμής
Τιμή
€ 252.200
Τιμή ανά m²
3.821 €/m²
Ενεργειακή απόδοση
  • Έτος κατασκευής

    2025
  • Κλιματιστικό μηχάνημα

    Αυτόνομη, κρύο/ζέστη
  • Ενεργειακή πιστοποίηση

    Χωρίς ταξινόμηση
Σχέδιο ακινήτου
Ανακαλύψτε κάθε γωνιά του ακινήτου
+8
Πρόσθετες επιλογές

Επικοινώνησε με τον αγγελιοδότη

Ή