Τεσσάρι Srima, Vodice, Vodice

€ 751.452
4
192 m²
2
2
Όχι
Βεράντα

Σημείωση

Τελευταία ενημέρωση: 28/01/2026
Περιγραφή

This description has been translated automatically and may not be accurate

κωδικός: 6965-S7

Srima, 2nd row to the beach, new project, luxury apartments with open sea views, only 650m from the center. The residential building has three floors, a total of 8 residential units. The apartments are equipped with quality windows and doors with electric shutters and mosquito nets, security and fire doors at the entrance to the apartment, electric underfloor heating in the bathrooms, each room and living room are equipped with air conditioning and TV connection, modern sanitary facilities.

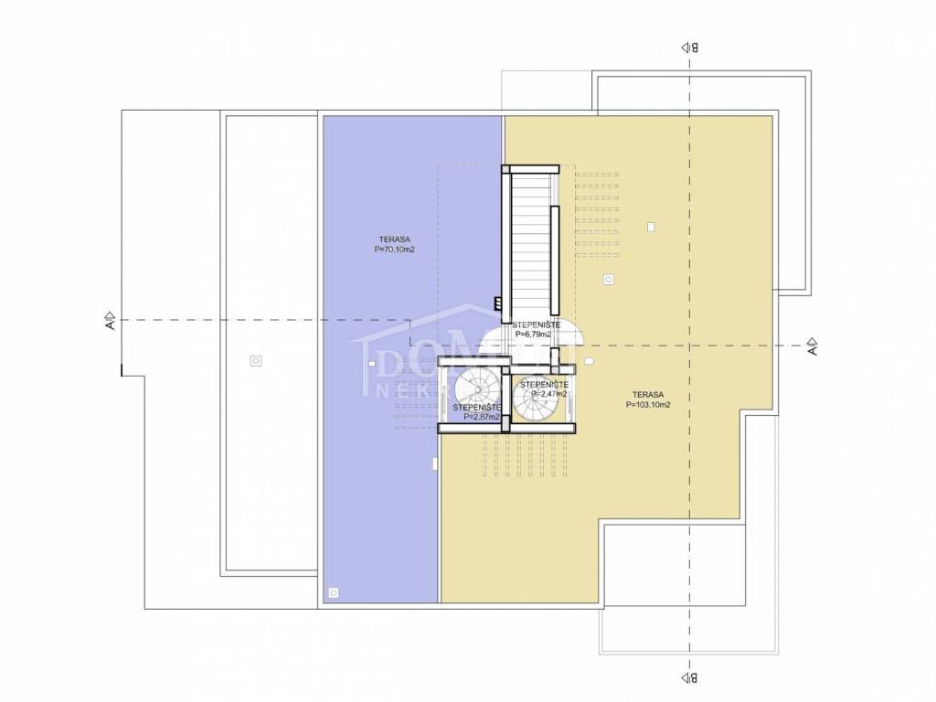
APARTMENT S7, located on the 2nd floor of the building, oriented to the south side, has a usable area of 192,68m2, consists of entrance hall/hallway, two bathrooms, guest toilet, bedroom 1, bedroom 2, bedroom 3, kitchen with dining room and living room, large terrace of 42,64m2, staircase leading to the roof terrace of 70,10m2, 1 parking space; Price: 751.452 €

ID CODE: 6965-S7

Diana Knežević
Mob: 00 385 95 289 4518
Tel: +385 22 444 620
Fax: +385 22 444 621
E-mail: knezevic@domus-nekretnine.hr
http://domus-nekretnine.hr

Martina Silov
Mob: 00385 95 587 8860
Tel: +385 22 444 620
Fax: +385 22 444 621
E-mail: martina@domus-nekretnine.hr
http://domus-nekretnine.hr

Katarina Marasović
Mob: 00 385 98 392 954
Tel: +385 22 444 620
Fax: +385 22 444 621
E-mail: catherine@domus-nekretnine.hr
http://domus-nekretnine.hr
Χαρακτηριστικά
Τύπος
Διαμέρισμα
Συμβόλαιο
Πώληση
Όροφος
2 όροφος
Σύνολο ορόφων
2
Ανελκυστήρας
Όχι
Εμβαδόν
192 m²
Δωμάτια
4
Υπνοδωμάτια
3
Μπάνια
2
Μπαλκόνι
Όχι
Βεράντα
Ναι
Γκαράζ, χώροι στάθμευσης
1 εξωτερικό
Θέρμανση
Αυτόνομη, θέρμανση αέρος
Κλιματισμός
Αυτόνομη, κρύο/ζέστη
Άλλα χαρακτηριστικά
  • Πόρτα ασφαλείας
Πληροφορίες τιμής
Τιμή
€ 751.452
Τιμή ανά m²
3.914 €/m²
Ενεργειακή απόδοση
  • Θέρμανση

    Αυτόνομη, θέρμανση αέρος
  • Κλιματιστικό μηχάνημα

    Αυτόνομη, κρύο/ζέστη
  • Ενεργειακή πιστοποίηση

    Χωρίς ταξινόμηση
Ανακαλύψτε κάθε γωνιά του ακινήτου
+31
Πρόσθετες επιλογές

Επικοινώνησε με τον αγγελιοδότη

Ή