Μονοκατοικία Vodice, Vodice

€ 640.000
5
278 m²
3+
Όχι
Βεράντα

Σημείωση

Τελευταία ενημέρωση: 18/02/2026
Περιγραφή

This description has been translated automatically and may not be accurate

κωδικός: 2783

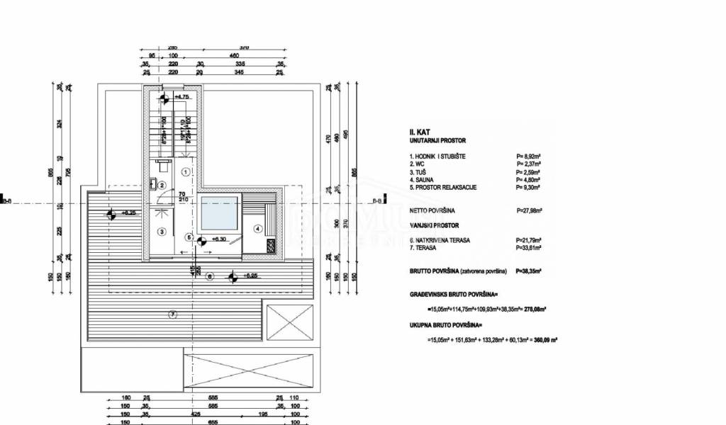
Newly Built – Beautiful Family House with Modern Architecture, Functional Layout, Pool, and Panoramic Sea View. The house is situated on a 760 m² plot and has three floors (ground floor + 1st floor + 2nd floor), with a total usable area of 278.08 m². The ground floor consists of an entrance area, bathroom, one bedroom, storage room, and a spacious living room with kitchen and dining area, with access to a large covered terrace, garden, and 47 m² pool. Internal stairs lead to the 1st floor, where there is a hallway and three bedrooms, each with its own bathroom, and two terraces. The second floor is designed as a relaxation area, with a sauna, shower, WC, installation for a jacuzzi, and a spacious rooftop terrace offering a stunning sea view. The yard is fenced, with a garden and parking space. The house is located 900 m from a maintained beach and 1,400 m from the town center.
The property is sold in its current state, i.e., unfinished.

ID CODE: 2783

Katarina Marasović
Mob: 00 385 98 392 954
Tel: +385 22 444 620
Fax: +385 22 444 621
E-mail: catherine@domus-nekretnine.hr
http://domus-nekretnine.hr

Diana Knežević
Mob: 00 385 95 289 4518
Tel: +385 22 444 620
Fax: +385 22 444 621
E-mail: knezevic@domus-nekretnine.hr
http://domus-nekretnine.hr

Martina Silov
Mob: 00385 95 587 8860
Tel: +385 22 444 620
Fax: +385 22 444 621
E-mail: martina@domus-nekretnine.hr
http://domus-nekretnine.hr
Χαρακτηριστικά
Τύπος
Μονοκατοικία
Συμβόλαιο
Πώληση
Ανελκυστήρας
Όχι
Εμβαδόν
278 m²
Δωμάτια
5
Υπνοδωμάτια
4
Μπάνια
3+
Μπαλκόνι
Όχι
Βεράντα
Ναι
Γκαράζ, χώροι στάθμευσης
3 εξωτερικό
Πληροφορίες τιμής
Τιμή
€ 640.000
Τιμή ανά m²
2.302 €/m²
Ενεργειακή απόδοση
  • Ενεργειακή πιστοποίηση

    Χωρίς ταξινόμηση
Σχέδιο ακινήτου
Ανακαλύψτε κάθε γωνιά του ακινήτου
+19
Πρόσθετες επιλογές

Επικοινώνησε με τον αγγελιοδότη

Ή