Τεσσάρι Privlaka, Privlaka

€ 385.668
4
107 m²
2
1
Όχι
Βεράντα

Σημείωση

Τελευταία ενημέρωση: 24/02/2026
Περιγραφή

This description has been translated automatically and may not be accurate

κωδικός: A-3138

PRIVLAKA, for sale a comfortable two-bedroom apartment S6 just 100 m2 from the sea!!

In a modern new building project with 10 luxury apartments that will be designed as two-bedroom, three-bedroom apartments and two-bedroom duplexes.
The apartments will be from 87 m2- 140 m2 with an excellent layout, and will have a parking space, the apartments on the ground floor will have a landscaped garden and the apartments on the first floor will have a roof terrace.
This modern new building extends over three floors.
On the ground floor there are 4 two-bedroom apartments.
Each apartment on the first floor will have a garden in front of the apartment and one parking space.
On the first floor there are 4 apartments, 2 of which are three-bedroom and the apartments extend over the entire 2 floors, while the other two apartments are two-bedroom duplexes and on 2 floors there is the living area of the apartment: a living room with a kitchen and dining room, a toilet and a loggia, and on the 3rd floor there is the sleeping area of the apartment with two bedrooms with bathrooms, a laundry room and a loggia, with the two-story apartments also having a roof terrace.
Each apartment has one parking space.
On the second floor there are two comfortable three-bedroom apartments with a roof terrace and one parking space each.

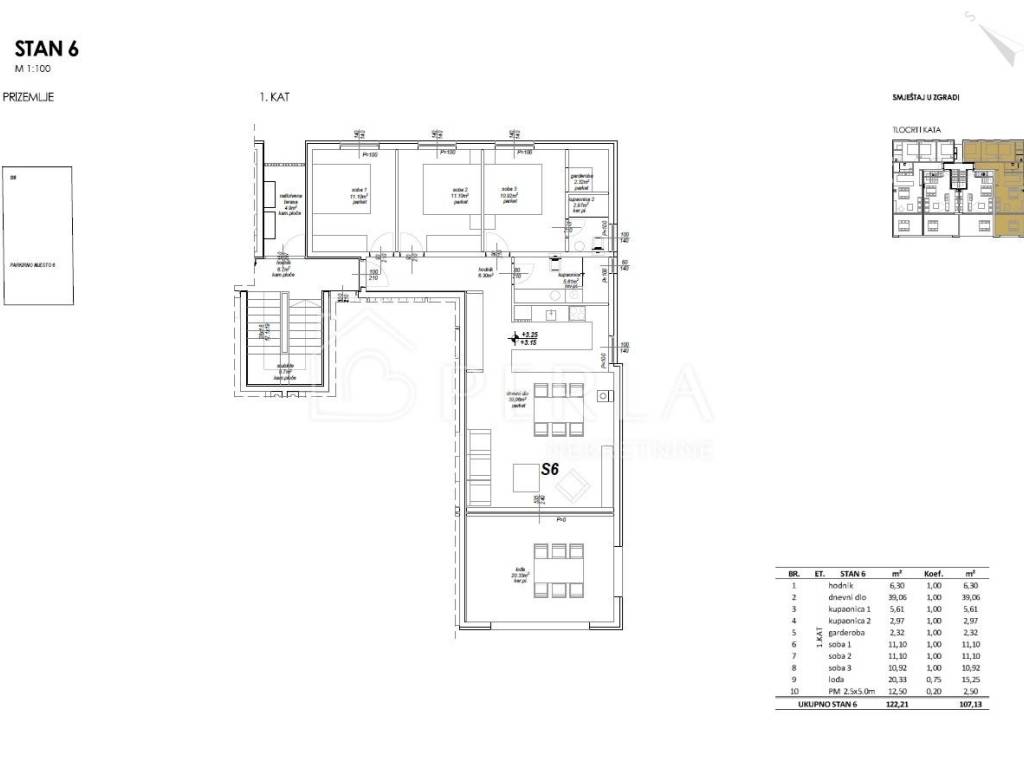
APARTMENT S6 consists of:
- hallway (6.30 m2)
- living room with kitchen and dining room (39.06 m2)
- bathroom 1 (5.61 m2)
- bathroom 2 (2.97 m2)
- wardrobe (2.32 m2)
- bedroom 1 (11.10 m2)
- bedroom 2 (11.10 m2)
- bedroom 3 (10.92 m2)
- loggia (20.33 m2 x 0.75=15.25 m2)
- outdoor parking space 6 (12.50 m2 x 0.20 =2.50 m2)
Total living space: 122.21 m2.
Total net usable area of the apartment: 107.13 m2.

The following apartments are for sale in the building:
Apartment S1 of 100.09 m2 = €360,324.00
Apartment S2 of 88.41 m2 = €318,276.00
Apartment S3 of 87.86 m2 = €316,296.00
Apartment S4 of 88.43 m2 = €318,348.00
Apartment S5 of 105.60 m2 = €380,160.00
Apartment S6 of 107.13 m2 = €385,668.00
Apartment S7 of 129.99 m2 = €467,964.00
Apartment S8 of 131.06 m2 = €471,816.00
Apartment S9 of 135.68 m2 = €488,448.00
Apartment S10 of 139.44 m2 = €501,984.00

This project will be built using the latest high-rise construction technology, where attention will be paid to the aesthetic and functional design of the terraces, which offer a wonderful view of the sea and the beach, which is located only 100 m from the building.
Both the exterior and interior decoration of the building and apartments will meet high construction quality criteria, as well as the high energy certificate A+.
The plan is to install a 10 cm thermo-facade system, a multi-level heating and cooling system with inverter air conditioners in all rooms, with electric underfloor heating installed as a heating option, first-class premium ceramics, PVC/ALU carpentry with glazed double IZO glass filled with argon with electric blinds and mosquito nets.
This new building will be surrounded by a beautiful, landscaped garden where Mediterranean plants and trees are planned to be planted, which will raise the entire project to a higher level of Mediterranean horticultural design.

This is an opportunity to live in luxury and comfort, close to the sea and all important amenities!
Privlaka is a small fishing and tourist town located on a spacious sandy peninsula, near Zadar and the royal city of Nin.
The clean and clear sea and shallow sandy bays make it ideal for family tourism.
The mild Mediterranean climate also contributes to this, making the summers warm, with a pleasant breeze from the maestral wind.
Ownership is in order!

The building is under construction and is planned to be completed by the end of 2025.

**THE BUYER DOES NOT PAY THE AGENCY COMMISSION!

ID CODE: A-3138

Iva Prtenjača
Mob: +385 (0)91 400 1414
Tel: +385 (0)99 284 1984
E-mail: iva@perlanekretnine.hr
www.perlanekretnine.hr

Alma Cipurković
Mob: +385 (0)91 400 1616
Tel: +385 (0)99 284 1984
E-mail: alma@perlanekretnine.hr
www.perlanekretnine.hr
Χαρακτηριστικά
Τύπος
Διαμέρισμα
Συμβόλαιο
Πώληση
Όροφος
1 όροφος
Σύνολο ορόφων
2
Ανελκυστήρας
Όχι
Εμβαδόν
107 m²
Δωμάτια
4
Υπνοδωμάτια
3
Μπάνια
2
Μπαλκόνι
Όχι
Βεράντα
Ναι
Γκαράζ, χώροι στάθμευσης
1 εξωτερικό
Θέρμανση
Αυτόνομη, θέρμανση αέρος
Κλιματισμός
Αυτόνομη, κρύο/ζέστη
Πληροφορίες τιμής
Τιμή
€ 385.668
Τιμή ανά m²
3.604 €/m²
Ενεργειακή απόδοση
  • Έτος κατασκευής

    2025
  • Θέρμανση

    Αυτόνομη, θέρμανση αέρος
  • Κλιματιστικό μηχάνημα

    Αυτόνομη, κρύο/ζέστη
  • Ενεργειακή πιστοποίηση

    Χωρίς ταξινόμηση
Ανακαλύψτε κάθε γωνιά του ακινήτου
+30
Πρόσθετες επιλογές

Επικοινώνησε με τον αγγελιοδότη

Ή