Τριάρι Privlaka, Privlaka

€ 225.000
3
62 m²
1
ΙΣ
Όχι
Βεράντα

Σημείωση

Τελευταία ενημέρωση: 16/04/2026
Περιγραφή

This description has been translated automatically and may not be accurate

κωδικός: A-3344-S

PRIVLAKA - two-room apartment S2 on the ground floor of 62 m2 for sale, near the sea!!!

This new construction project with 6 residential units is located in an excellent location, only 300 m from the sea and sandy beaches.
This residential building consists of ground floor, 1st and 2nd floor.
Each apartment is provided with one parking space.

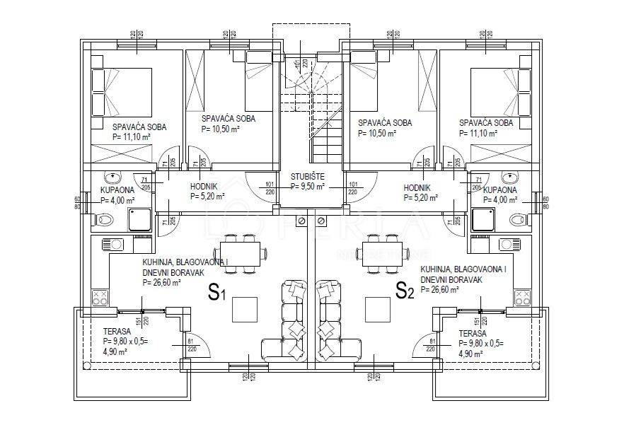
The two-room apartment S2 is located on the ground floor and consists of:
- Hallway (5.20 m²)
- Kitchen, dining room and living room (26.60 m²)
- Bathroom (4.00 m²)
- Bedroom 1 (11.10 m²)
- Bedrooms 2 (10.50 m²)
- Terraces (9.80 - net 4.90 m²)
- 1 parking space
- Garden (14.7 m2)
The total net area of the apartment is 62.30 m2.
The total net area of the apartment with accessories is 77.00 m2

Equipment of the apartment:
- Brick construction with excellent thermal and sound insulation.
- PVC carpentry with electric blinds and mosquito nets.
- Burglary and fire doors.
- Underfloor heating in the bathroom and living room.
- Inverter air conditioner (multi-split system).
- High-quality ceramic tiles, parquet floors and sanitary ware.
- Arranged environment and private parking lot.

The following apartments are for sale in the building:
S1 - ground floor, two-room apartment with garden 62.23 m2 - €225,000.00
S2 - ground floor, two-room apartment with garden 62.30 m2 - €225,000.00
S3 - 1st floor, two-room apartment 61.25 m2 - €195,000.00
S4 - 1st floor, two-room apartment 61.25 m2 - SOLD!
S5 - 2nd floor, two-room apartment with roof terrace 77 m2 - €245,000.00
S6 - 2nd floor, two-room apartment with roof terrace, 77 m2 - €245,000.00

Privlaka is a small fishing and tourist town near Zadar and the royal city of Nin.
Clean, clear sea and shallow sandy coves make it an ideal destination for family tourism.
Additional charm is provided by the mild Mediterranean climate, refreshed by the pleasant mistral.

*THE BUYER DOES NOT PAY THE AGENCY COMMISSION!
**BUYER DOES NOT PAY REAL ESTATE TRANSFER TAX!

ID CODE: A-3344-S

Iva Prtenjača
Mob: +385 (0)91 400 1414
Tel: +385 (0)99 284 1984
E-mail: iva@perlanekretnine.hr
www.perlanekretnine.hr

Alma Cipurković
Mob: +385 (0)91 400 1616
Tel: +385 (0)99 284 1984
E-mail: alma@perlanekretnine.hr
www.perlanekretnine.hr
Χαρακτηριστικά
Τύπος
Διαμέρισμα
Συμβόλαιο
Πώληση
Όροφος
Ισόγειο
Σύνολο ορόφων
2
Ανελκυστήρας
Όχι
Εμβαδόν
62 m²
Δωμάτια
3
Υπνοδωμάτια
2
Μπάνια
1
Μπαλκόνι
Όχι
Βεράντα
Ναι
Γκαράζ, χώροι στάθμευσης
1 εξωτερικό
Θέρμανση
Αυτόνομη, θέρμανση αέρος
Κλιματισμός
Αυτόνομη, κρύο/ζέστη
Πληροφορίες τιμής
Τιμή
€ 225.000
Τιμή ανά m²
3.629 €/m²
Ενεργειακή απόδοση
  • Έτος κατασκευής

    2026
  • Θέρμανση

    Αυτόνομη, θέρμανση αέρος
  • Κλιματιστικό μηχάνημα

    Αυτόνομη, κρύο/ζέστη
  • Ενεργειακή πιστοποίηση

    Χωρίς ταξινόμηση
Ανακαλύψτε κάθε γωνιά του ακινήτου
+5
Πρόσθετες επιλογές

Επικοινώνησε με τον αγγελιοδότη

Ή