Τεσσάρι Srima, Vodice, Vodice

€ 297.000
4
85 m²
2
1
Όχι

Σημείωση

Τελευταία ενημέρωση: 22/01/2026
Περιγραφή

This description has been translated automatically and may not be accurate

κωδικός: 209

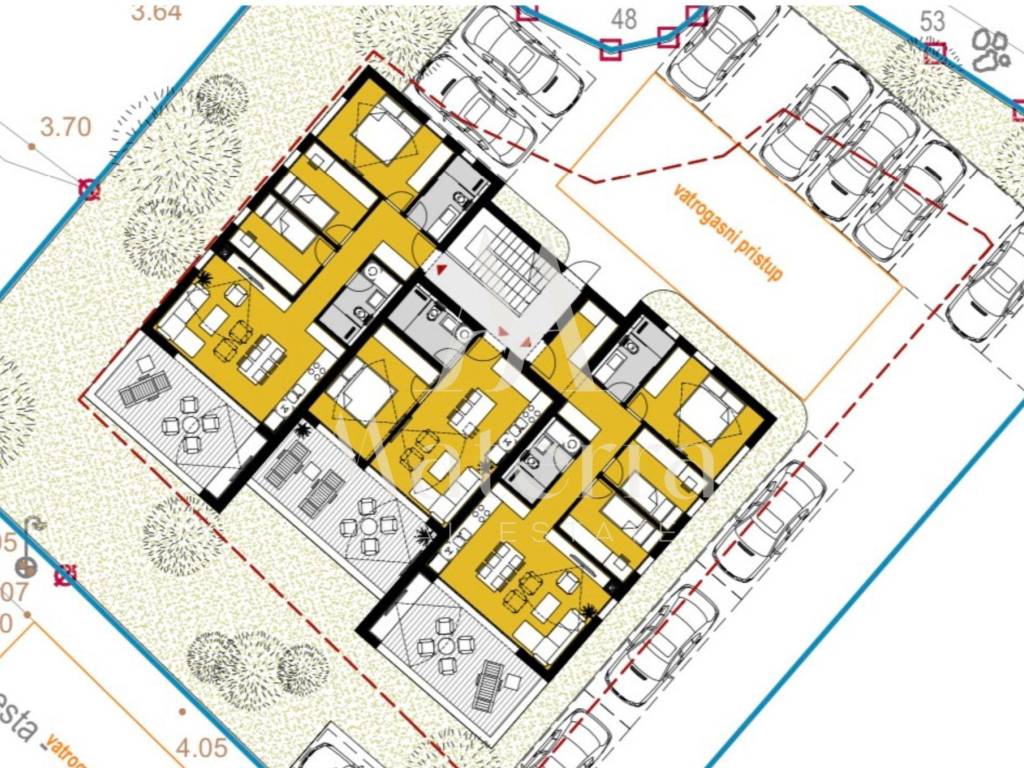
Apartment S3 is for sale on the first floor of a newly built residential building located in the settlement of Srima, near Vodice. The total area of the apartment is 85.06 m² and it consists of a kitchen connected to the dining and living area, a hallway, three bedrooms, two bathrooms, and a covered terrace of 17.10 m² that offers a pleasant outdoor space. The apartment also includes one designated parking space – P4. The building will be constructed according to the latest construction standards, with particular attention to high-quality materials and finishing. It will be equipped with premium windows and doors, modern ceramics, and top-quality sanitary ware. The location is ideal for both permanent living and vacation, as the beach is only 350 meters away. Completion of the building is planned for 2026, and the buyer is exempt from paying real estate transfer tax.

ID CODE: 209

Andro Jakoliš
Mob: +385 99 347 3562
E-mail: andro@materra.estate
www.materra.estate
Χαρακτηριστικά
Τύπος
Διαμέρισμα
Συμβόλαιο
Πώληση
Όροφος
1 όροφος
Σύνολο ορόφων
2
Ανελκυστήρας
Όχι
Εμβαδόν
85 m²
Δωμάτια
4
Υπνοδωμάτια
3
Μπάνια
2
Μπαλκόνι
Όχι
Βεράντα
Όχι
Πληροφορίες τιμής
Τιμή
€ 297.000
Τιμή ανά m²
3.494 €/m²
Ενεργειακή απόδοση
  • Ενεργειακή πιστοποίηση

    Χωρίς ταξινόμηση
Ανακαλύψτε κάθε γωνιά του ακινήτου
+4
Πρόσθετες επιλογές

Επικοινώνησε με τον αγγελιοδότη

Ή