Μονοκατοικία πολλαπλών οικογενειών Kanfanar, Kanfanar

€ 1.300.000
5+
353 m²
3+
Όχι

Σημείωση

Τελευταία ενημέρωση: 22/01/2026
Περιγραφή

This description has been translated automatically and may not be accurate

κωδικός: 1029-463

Istria, Kanfanar, surroundings

Near the municipality of Kanfanar, which is proud of its exceptional wealth of cultural and historical heritage, natural beauty and preservation of the traditional customs of the region, there is a small village that provides peace and relaxation in an Istrian environment. The house that is looking for its new owner is located on the very edge of the village, and there is a conceptual project for renovation, and thus restored, it is handed over to the new owner on a turnkey basis. It is only a few minutes' drive from Kanfanar and Žminj with its numerous city amenities.

The property is located on a plot of 2,467 m2 and is separated during the renovation, from which the plot with the renovated house and garden would have 1,542 m2, while the remaining 925 m2 would be turned into an additional building plot with its own access road.
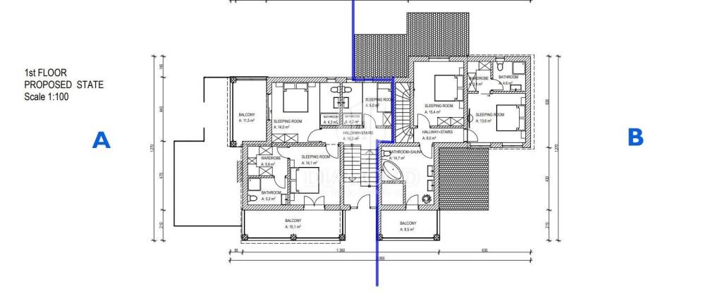
The renovated building consists of two residential units that extend through the ground floor and first floor. Unit A with its 160 m2 on the ground floor has an entrance hall, a spacious living room with a kitchen and dining room, and one bathroom. There is an exit to the terrace with a lounge area and a landscaped garden. The internal staircase leads to the first floor where there are three bedrooms with their own bathrooms, one of which is the main one with a walk-in wardrobe and a spacious terrace with a view of the green surroundings.
Unit B has a little more than 140m2, and on the ground floor there is a kitchen, living room, dining room and one bathroom. On the first floor there is a corridor leading to two bedrooms, one of which has a wardrobe and a bathroom. There is also a bathroom with a sauna on the first floor.
Each unit has its own beautifully landscaped garden with 40m2 swimming pools, sunbathing areas, lounge areas and two parking spaces per apartment.

This is an opportunity to buy a property that has it all! It can be used for living, where you will create new memories, and also for tourist rental, given the excellent connection with the rest of Istria and the increasing demand for such facilities. A combination of both is also great, while there is also an additional building plot.
A great property is waiting for you, so don't miss the opportunity!

ID CODE: 1029-463
Χαρακτηριστικά
Τύπος
Μονοκατοικία πολλαπλών οικογενειών
Συμβόλαιο
Πώληση
Σύνολο ορόφων
1
Ανελκυστήρας
Όχι
Εμβαδόν
353 m²
Δωμάτια
5+
Υπνοδωμάτια
5
Μπάνια
3+
Μπαλκόνι
Όχι
Βεράντα
Όχι
Κλιματισμός
Αυτόνομη, κρύο/ζέστη
Πληροφορίες τιμής
Τιμή
€ 1.300.000
Τιμή ανά m²
3.683 €/m²
Ενεργειακή απόδοση
  • Έτος κατασκευής

    2024
  • Κλιματιστικό μηχάνημα

    Αυτόνομη, κρύο/ζέστη
  • Ενεργειακή πιστοποίηση

    Χωρίς ταξινόμηση
Σχέδιο ακινήτου
Ανακαλύψτε κάθε γωνιά του ακινήτου
+5
Πρόσθετες επιλογές

Επικοινώνησε με τον αγγελιοδότη

Ή