Δυάρι νέο, Plovanija - Vidikovac, Ζάδαρ

€ 206.000
2
47 m²
1
ΙΣ
Βεράντα

Σημείωση

Τελευταία ενημέρωση: 24/04/2026
Περιγραφή

This description has been translated automatically and may not be accurate

κωδικός: 5199

A new building project is for sale in an excellent, quiet location in the city of Zadar, in the Plovanija area.
This is a multi-apartment building project consisting of a ground floor and 2 floors with a total of 8 residential units.
The ground floor has three covered parking spaces and two residential units, and two outdoor parking spaces per residential unit are provided in the landscaped courtyard of the building. Each floor (first and second floor) accommodates 3 apartments.
A new recreational park will soon be built near the property on Plovanija, which will include a football and children's playground, as well as various other sports and recreational facilities.
The expected completion of construction works and occupancy of the apartments is by the end of 2026.
 
PROPERTY FEATURES AND EQUIPMENT:
= Building construction / thermoblock
= Thermal facade / 10 cm polystyrene
= Exterior PVC joinery with ALU shutters
= Entrance door / burglar-proof - fire-proof
= Multi split inverter / Air conditioning in the living room and bedroom
= Underfloor heating in the bathrooms
 
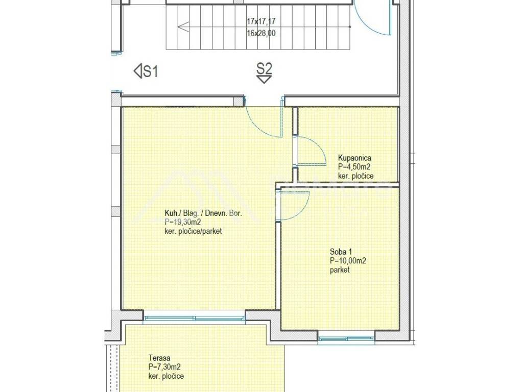
GROUND FLOOR apartment marked S2
The apartment is located on the ground floor of the building and consists of:
- living room with kitchen and dining room (19.30 m2),
- bedroom (10.00 m2),
- bathroom (4.50 m2), and
- terrace (7.30 m2).
The internal usable area of ​​the apartment is 33.80 m2.
The apartment has two outdoor parking spaces (2 x 13.75 m2) in the building's yard.
The total calculated usable area of ​​the apartment is 47.95 m2.
 
There is a possibility to choose parquet and ceramics from three offered options, depending on the construction phases and according to the agreement with the investor.
ADVANTAGE when purchasing this property:
The buyer DOES NOT PAY real estate tax, because the investor is a reliable legal entity with many years of experience in construction, which is in the VAT system.
 
LOCATION:
The property is located in a quiet location 1.9 km from the sea and beach, and 2.1 km from the center of Zadar - the peninsula.
Zadar airport is only 11 km away and is well connected to many European cities and destinations.
Zadar ferry port, which is 6 km from the property, has lines with most islands, and during the summer season is a stop for numerous tourist cruisers.
Εάν θέλετε να μάθετε περισσότερα, μπορείτε να μιλήσετε με Ivo Strenja.
Χαρακτηριστικά
Τύπος
Διαμέρισμα
Συμβόλαιο
Πώληση
Όροφος
Ισόγειο
Σύνολο ορόφων
2
Εμβαδόν
47 m²
Δωμάτια
2
Υπνοδωμάτια
1
Μπάνια
1
Βεράντα
Ναι
Γκαράζ, χώροι στάθμευσης
2 εξωτερικό
Θέρμανση
Αυτόνομη, θέρμανση αέρος, ρεύμα
Κλιματισμός
Αυτόνομη, κρύο/ζέστη
Απόσταση από τη θάλασσα
2 m
Άλλα χαρακτηριστικά
  • Μονός υαλοπίνακας/ Συνθετικά κουφώματα
  • Πόρτα ασφαλείας
Λεπτομέρεια επιφάνειας

Κατοικία

Όροφος
Ισόγειο
Εμβαδόν
48,0 m²
Συντελεστής
100%
Τύπος επιφάνειας
Κύρια
Συνολική επιφάνεια
48,0 m²
Πληροφορίες τιμής
Τιμή
€ 206.000
Τιμή ανά m²
4.383 €/m²
Λεπτομέρειες κόστους
Κοινόχρηστα
Χωρίς κοινόχρηστα έξοδα
Ενεργειακή απόδοση
  • Έτος κατασκευής

    2026
  • Κατάσταση

    Νεόδμητο / Υπό κατασκευή
  • Θέρμανση

    Αυτόνομη, θέρμανση αέρος, ρεύμα
  • Κλιματιστικό μηχάνημα

    Αυτόνομη, κρύο/ζέστη
Ανακαλύψτε κάθε γωνιά του ακινήτου
+14
Πρόσθετες επιλογές

Επικοινώνησε με τον αγγελιοδότη

Ή