Μονοκατοικία Motovun, Motovun

€ 600.000
5+
323 m²
3
Όχι

Σημείωση

Τελευταία ενημέρωση: 21/04/2026
Περιγραφή

This description has been translated automatically and may not be accurate

κωδικός: 114-015

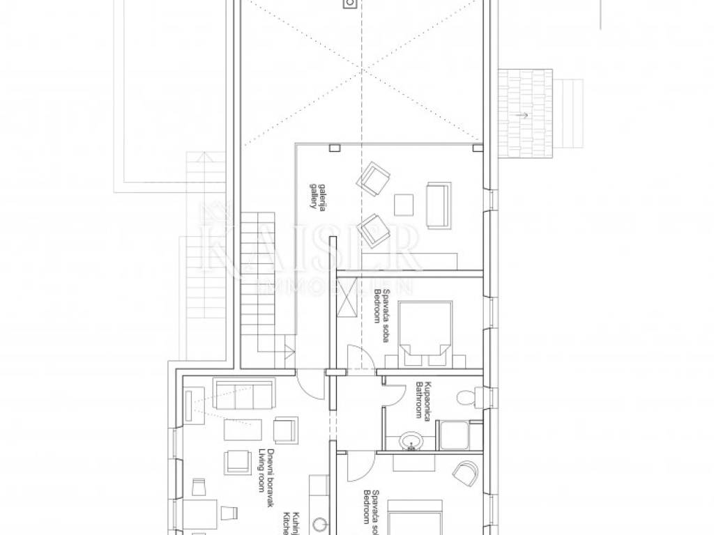
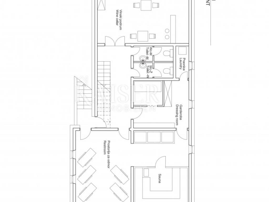
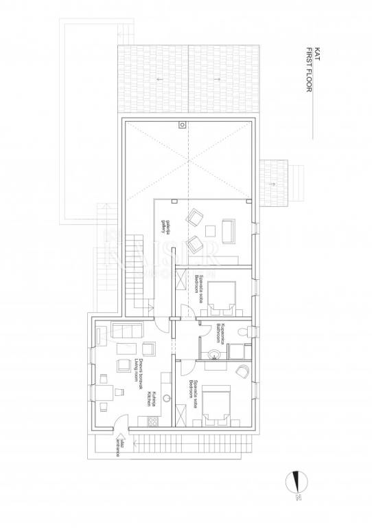
Kaiser Immobilien is selling an authentic stone house for vacation in a quiet location in central Istria. The traditionally designed Istrian stone house is a two-story house with a basement, ground floor and first floor with a total area of 323 m2. In the basement there is a large wine cellar, a laundry room, a wardrobe and two toilets. There is also a wellness area with a sauna. The ground floor is designed as an open space that includes a dining room with a bar and a kitchen and a smaller apartment with a separate entrance and a bedroom with its own bathroom, a living room and a kitchen. There is another smaller apartment on the first floor, which also has a separate entrance and includes two bedrooms, a bathroom, a living room and a kitchen with a dining room. All rooms in the house are air-conditioned, and there is electric underfloor heating in all bathrooms. In the center of the garden of 887m2 there is a 40m2 swimming pool with an arranged sunbathing area, which offers a beautiful view of the surrounding nature and greenery. The location of the property offers peace and quiet in untouched nature and a perfect escape from the busy lifestyle. From this small town between Pazin and Motovun, you have a 30-minute drive to all major cities in Istria, and the same distance to the east and west coasts of Istria. The house has a well-established year-round rental business that the new owner can take over and represents an excellent investment opportunity with a quick return on investment.

ID CODE: 114-015

Dean Cvitko
Agent s licencom u posredovanju u prometu nekretnina
Mob: +385915284449, +385995677888
E-mail: dean.cvitko@kaiser-immobilien.hr
www.kaiser-immobilien.hr
Χαρακτηριστικά
Τύπος
Μονοκατοικία
Συμβόλαιο
Πώληση
Σύνολο ορόφων
2
Ανελκυστήρας
Όχι
Εμβαδόν
323 m²
Δωμάτια
5+
Υπνοδωμάτια
3
Μπάνια
3
Μπαλκόνι
Όχι
Βεράντα
Όχι
Γκαράζ, χώροι στάθμευσης
1 εξωτερικό
Θέρμανση
Αυτόνομη, θέρμανση αέρος
Κλιματισμός
Αυτόνομη, κρύο/ζέστη
Πληροφορίες τιμής
Τιμή
€ 600.000
Τιμή ανά m²
1.858 €/m²
Ενεργειακή απόδοση
  • Έτος κατασκευής

    2009
  • Θέρμανση

    Αυτόνομη, θέρμανση αέρος
  • Κλιματιστικό μηχάνημα

    Αυτόνομη, κρύο/ζέστη
  • Ενεργειακή πιστοποίηση

    Χωρίς ταξινόμηση
Σχέδιο ακινήτου
Ανακαλύψτε κάθε γωνιά του ακινήτου
+20
Πρόσθετες επιλογές

Επικοινώνησε με τον αγγελιοδότη

Ή