Μονοκατοικία Pakoštane, Pakoštane

€ 195.000
2
46 m²
1
Όχι
Βεράντα

Σημείωση

Τελευταία ενημέρωση: 01/05/2026
Περιγραφή

This description has been translated automatically and may not be accurate

κωδικός: 125-52

Kaiser Immobilien presents: Luxury one-bedroom ground floor apartment in a prestigious new building in Pakoštane

We present to you a special opportunity, the last available apartment in this modern new building with a communal pool, just a few steps from the sea in beautiful Pakoštane. This elegant ground floor apartment of 46.28 m² offers a combination of comfort, functionality and a Mediterranean lifestyle. This property is an ideal choice for those looking for a modern and functional home in a peaceful environment. With a spacious garden of 1,357 m². This property represents an exceptional opportunity for investment in tourism, as well as for family life with complete comfort and luxury.

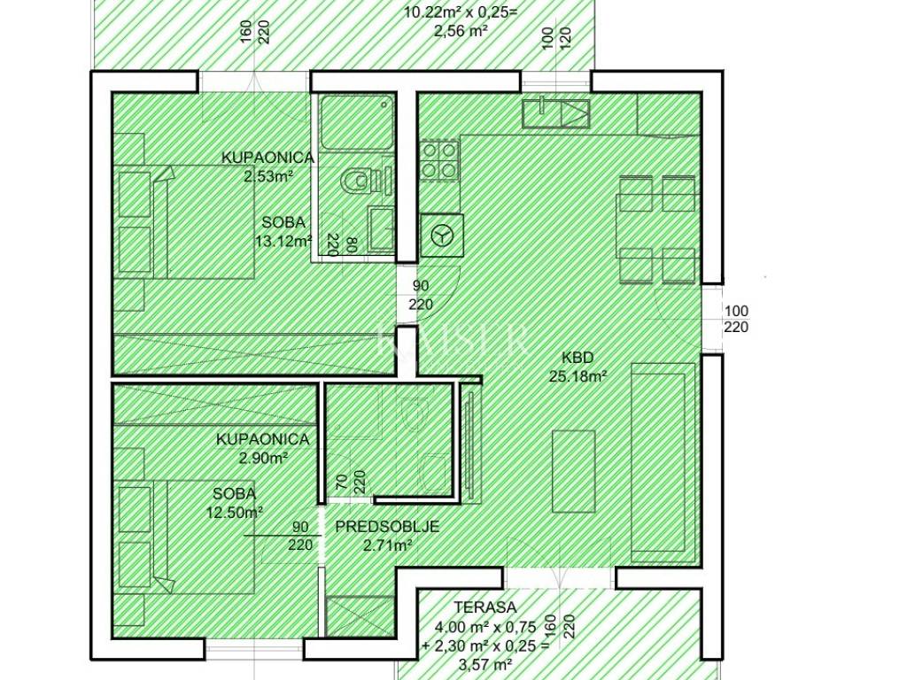
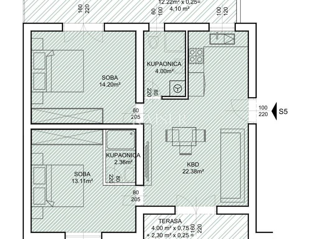
The apartment consists of:

-living room with kitchen,
-one bedroom,
-bathroom,
-AC cooling and heating
- electric shutters
-covered terrace,
-garden,
-storage room and
-parking space.
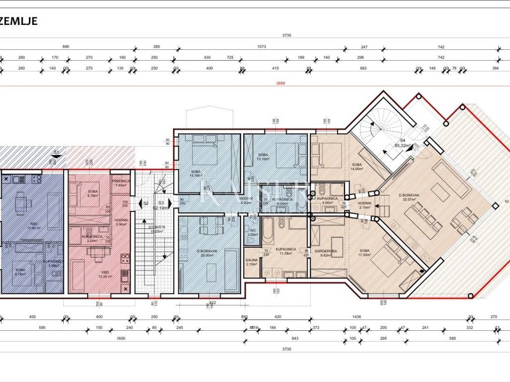
The apartment has access to a shared swimming pool of 63.62 m2, perfect for relaxing and enjoying warm Dalmatian days. The building also includes an auxiliary building, while each residential unit has its own storage room and parking space.

Price: €4,000 / m²

ADDITIONAL BENEFITS
A swimming pool in the yard of 63.62 m2 for refreshment and relaxation.
An auxiliary building as an additional content.
Private parking for each tenant.
Storage room for each apartment.
Proximity to the sea – the property is located in the immediate vicinity of the beach
Excellent investment – the house is already adapted for tourist purposes with 11 apartments

Pakoštane, a Dalmatian town located between the Adriatic Sea and Lake Vrana, a paradise for nature lovers, offers numerous sandy, pebble, rocky beaches, the most famous of which are Punta, Pilatusa, Janice beaches
Just a few kilometers from Pakoštane is the Vrana Lake Nature Park, the largest natural lake in Croatia. It is ideal for bird watching (more than 250 species).
cycling on well-maintained trails, as well as fishing and kayaking.
The small islands of Veli Škoj and Sv. Justina, the island of Babuljaš are particularly interesting due to their location opposite the town itself, and can be explored by boat.
Pakoštane is an excellent starting point for the Kornati National Park, one of the most beautiful island areas in Europe. You can enjoy organized boat trips and explore more than 89 islands and rocks.

Distances from Pakoštane to important transport hubs and cities:

Zadar (30 km) – a city rich in history and famous attractions such as the Sea Organ and Greeting to the Sun
Šibenik (40 km) – with the magnificent Cathedral of St. Jakov (UNESCO)
Krka National Park (50 km) – with beautiful waterfalls and enchanting nature
A1 motorway (Benkovac exit) – 18 km (about 15 minutes drive)
Zadar Airport – 33 km (about 30 minutes drive)
Split Airport – 100 km (about 1 hour and 15 minutes drive)
Zagreb – 300 km (about 3 hours drive)
Rijeka – 270 km (about 3 hours drive)
Dubrovnik – 350 km (about 4 hours and 30 minutes drive)
Ljubljana – 370 km (about 4 hours drive)
Vienna (Wien) – 600 km (about 6 hours drive)

The agency commission for the buyer is 3% + VAT and is charged with the first legal act.
Do not miss this opportunity and contact us with confidence.
Tel. : 00385992510230
Email: marijana.papic@kaiser-immobilien.hr

ID CODE: 125-52

Marijana Papić
Agent posredovanja u prometu nekretnina
Mob: +385992510230, +385995677888
E-mail: marijana.papic@kaiser-immobilien.hr
www.kaiser-immobilien.hr
Χαρακτηριστικά
Τύπος
Μονοκατοικία
Συμβόλαιο
Πώληση
Σύνολο ορόφων
2
Ανελκυστήρας
Όχι
Εμβαδόν
46 m²
Δωμάτια
2
Υπνοδωμάτια
1
Μπάνια
1
Μπαλκόνι
Όχι
Βεράντα
Ναι
Γκαράζ, χώροι στάθμευσης
2 εξωτερικό
Κλιματισμός
Αυτόνομη, κρύο/ζέστη
Πληροφορίες τιμής
Τιμή
€ 195.000
Τιμή ανά m²
4.239 €/m²
Ενεργειακή απόδοση

Κατανάλωση ενέργειας

Α

Ανακαλύψτε κάθε γωνιά του ακινήτου
+20
Πρόσθετες επιλογές

Επικοινώνησε με τον αγγελιοδότη

Ή