Μονοκατοικία Poreč, Luka, Πόρετς

€ 1.250.000
5
267 m²
3+
Όχι

Σημείωση

Τελευταία ενημέρωση: 21/04/2026
Περιγραφή

This description has been translated automatically and may not be accurate

κωδικός: 113-249

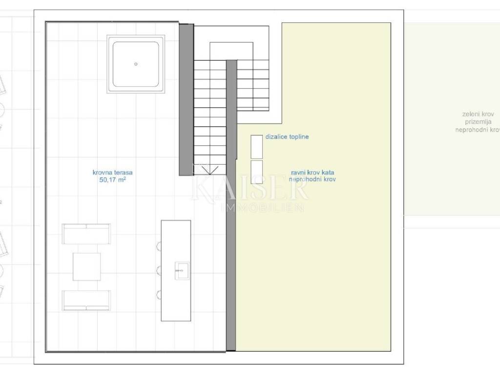
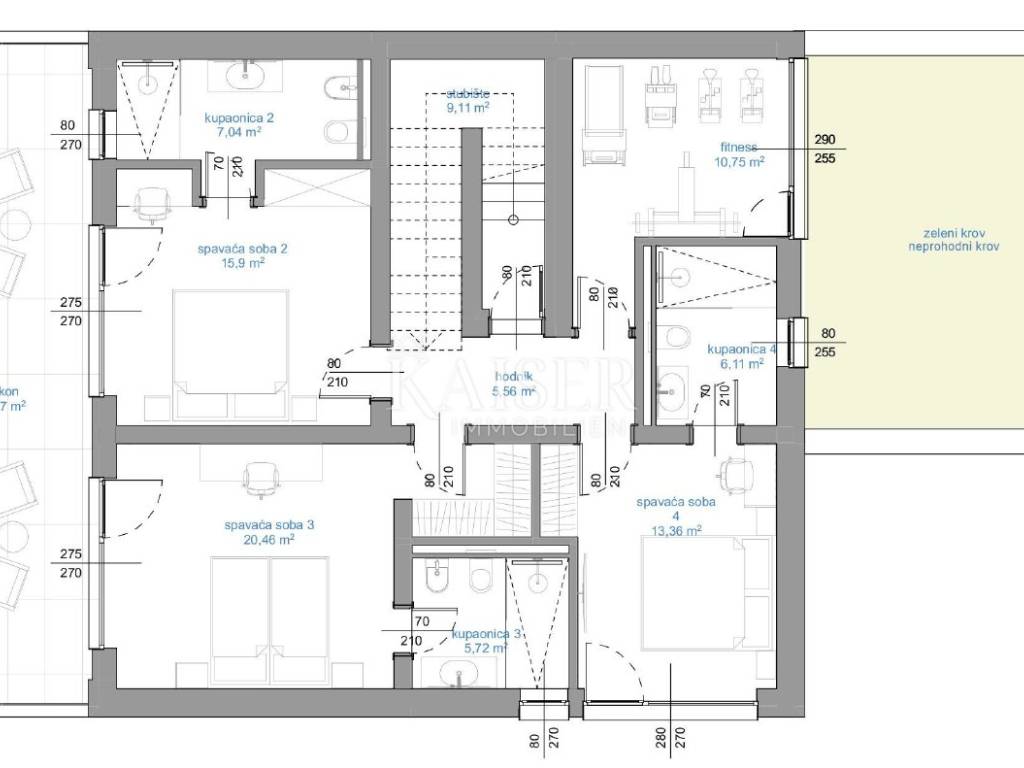
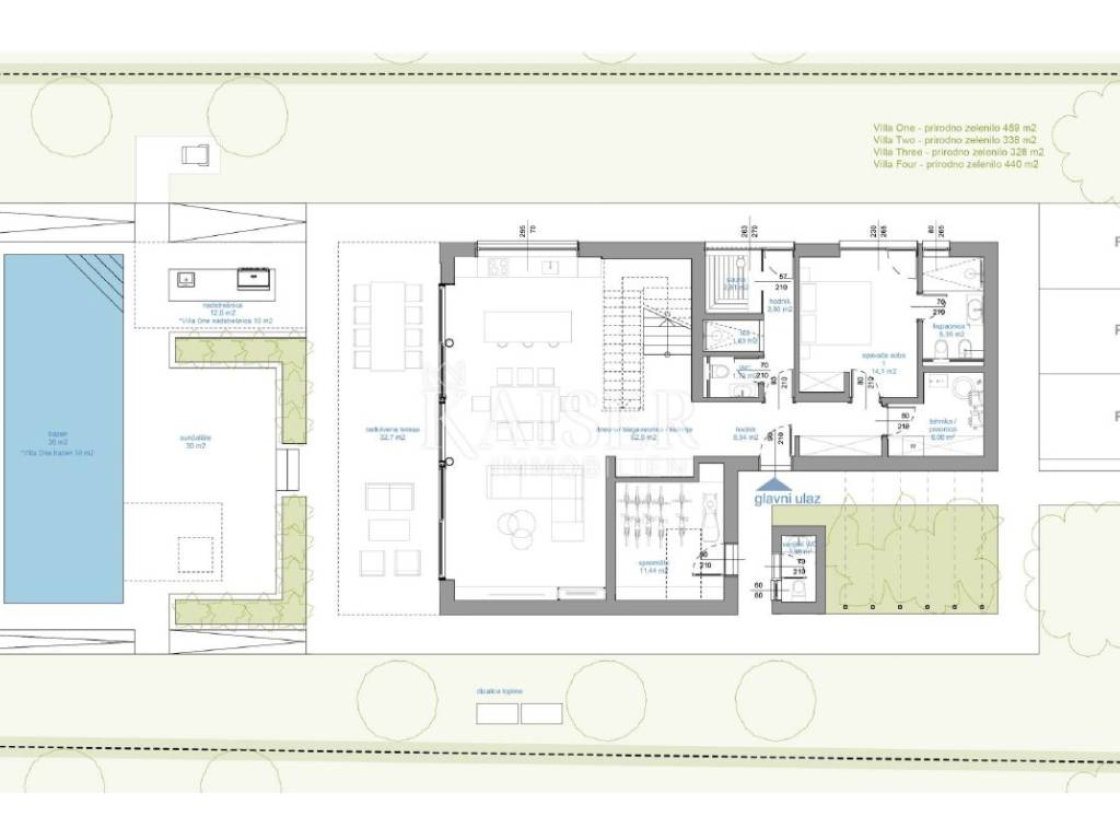
Kaiser Immobilien proudly presents a modern and luxurious detached villa just 5 km from the town of Poreč, which is being sold fully furnished. The villa is located in a popular tourist resort near the town of Poreč, surrounded by complete nature, peace and quiet, and yet close to all the necessary amenities for life. The villa was built with top quality materials, where attention was paid to every detail to make life in the villa as simple and luxurious as possible for the future owner. The villa is fully equipped and is being sold as such. The villa contains all the requirements of the permit and can also be rented. Gross area of the villa is: 267 m2 Net area of the internal living area: 204 m2 Parking: the villa has 3 parking spaces for cars and one for bicycles Swimming pool - 30 m2 of water surface Energy class: A (20 kWh/m2 per year) Floors: P+1 (ground floor + first floor), built in a classic construction. New construction. Sea view. The ground floor consists of an entrance hall, a staircase to the first floor and the roof terrace, a living room, a kitchen and a dining room, a bedroom with a separate bathroom, an additional toilet, a bathroom and a sauna, a technical room with a laundry room and a storage room and an outdoor toilet, each with a separate entrance. On the first floor there is a staircase, a hallway, three bedrooms with separate bathrooms and a fully furnished study. A staircase to the roof terrace, which has an outdoor bar, a sundeck and a hot tub. The surroundings include an outdoor heated swimming pool, a sundeck, a covered dining terrace, a canopy with a summer kitchen and an uncovered terrace directly next to the pool. There is a fire pit in the lower part of the courtyard. There is also a designer outdoor shower with hot water and a floor siphon in the courtyard. The supporting structure of the main building rests on strip foundations, and the walls are a combination of brick block masonry and reinforced concrete construction. The interfloor and roof slabs are reinforced concrete. External canopy made of steel structure. Partition walls are classically built with block bricks. The leased power of electricity is 18.86 kW - three-phase. External joinery: Large-format aluminum joinery. Aluminum profile - ALIPLAST. Hand-hewn Kanfanar stone, 5 cm thick Heating: Vaillant, external air-to-water heat pump on electricity Underfloor heating in all occupied rooms with separate room/bathroom regulators. Remote control possible via Wi-Fi network. Equipment: • Top-quality Duravit sanitary equipment, Grohe faucets, Geberit and Tece drainage systems, Grohe cisterns, Walk-in shower. • Top-quality ceramics from the most famous Italian manufacturers (Graniti Fiandre, Panaria, Keope, Love). In the bathrooms, large-format ceramics, installed up to the ceiling. • Built-in system for softening water from the water supply network. • Hikvision video intercom in black with control of opening the entrance door and control of the electric gate. • Wallbox charger for charging electric cars, Mercedes-Benz brand up to 22 kW of power. • Bio fireplace in the living room. • Glass railing on the balcony and roof terrace. Kitchen and furniture • DanKüchen kitchen, model Silbermond in anthracite version - kitchen and island, with a 12 mm thick Sapienstone - Fior di Bosco ceramic worktop. • The kitchen is equipped with all necessary built-in appliances, Bosch brand (oven, microwave, hob, dishwasher and combined fridge). • Finnish sauna made to measure, lined with Kyte Termo Spruce and LED lighting. Courtyard area of the villa: Terrace in front of the living room Canopy by the pool • Built-in Kingstone gas grill with 4 burners, 14 kW, in the outdoor bar. Swimming pool • Skimmer pool lined with decorative cooler, Duraston - dark blue version. • Pool heating via a Gardena PAC 17 kW heat pump. Fire pit • Seating area additionally illuminated by indirect LED lighting. Roof terrace • Wellis hot tub, with cover. Model for 5 people and 42 jets, with a starter set of chemicals and maintenance equipment. • Outdoor bar equipped with Franke sink and Laminam ceramic worktop. Mini power plant • Solar power plant with a power of 3.6 kW (*retrofit) Fully landscaped horticulture of the garden with an irrigation system and decorative lighting. Proximity to amenities: 3 km - beach 5 km - shops Poreč 11 minutes - aquapark Poreč 2 hours - Venice 50 minutes - Brijuni National Park 50 minutes - Arena in Pula. Villa price: €1,250,000 (*The stated price applies to legal entities in the VAT system, while for natural persons the VAT item is calculated. In this case, the price of the property is €1,560,000.00. The buyer is exempt from paying real estate tax.) If you are looking for your new home, contact us with confidence at: phone: 00385923782803 email address: ivana@kaiser-immobilien.hr. Seller: Ivana Gašparini. The agency commission is 3% + VAT, and is charged with the first legal act.

ID CODE: 113-249

Ivana Gašparini
Agent s licencom u posredovanju u prometu nekretnina
Mob: +385923782803, +385995677888
E-mail: ivana@kaiser-immobilien.hr
www.kaiser-immobilien.hr
Χαρακτηριστικά
Τύπος
Μονοκατοικία
Συμβόλαιο
Πώληση
Ανελκυστήρας
Όχι
Εμβαδόν
267 m²
Δωμάτια
5
Υπνοδωμάτια
4
Μπάνια
3+
Μπαλκόνι
Όχι
Βεράντα
Όχι
Γκαράζ, χώροι στάθμευσης
3 εξωτερικό
Άλλα χαρακτηριστικά
  • Συναγερμός
Πληροφορίες τιμής
Τιμή
€ 1.250.000
Τιμή ανά m²
4.682 €/m²
Ενεργειακή απόδοση

Κατανάλωση ενέργειας

Α

Ανακαλύψτε κάθε γωνιά του ακινήτου
+45
Πρόσθετες επιλογές

Επικοινώνησε με τον αγγελιοδότη

Ή