Τριάρι Povljana, Povljana

€ 188.000
3
62 m²
1
2
Όχι
Μπαλκόνι
Βεράντα

Σημείωση

Τελευταία ενημέρωση: 16/04/2026
Περιγραφή

This description has been translated automatically and may not be accurate

κωδικός: 138-47

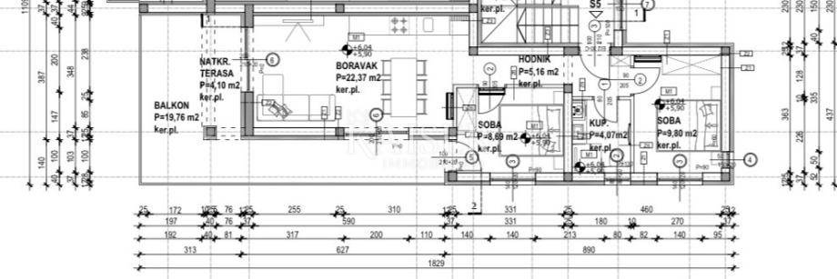
In a quiet part of Povljana on the island of Pag, just 300 meters from the sea, a beautiful three-bedroom apartment is for sale that combines modern design, quality construction and an exceptional location. Located on the 2nd floor of a small new residential building, the apartment has an open view of the sea, greenery and pine forest - perfect for those who want a sense of privacy, but also proximity to all amenities. The apartment, with a total area of 61.95 m², consists of a spacious living room with kitchen and dining room, two bedrooms, bathroom and hallway. What really sets this apartment apart is the large balcony of 19.76 m², with an additional covered terrace of 4.10 m², which makes a total of almost 25 m² of outdoor space with an open, unobstructed view of the sea. This space is perfect for relaxing with your morning coffee, spending time with your family or enjoying the sunsets. Layout: Living room with kitchen and dining room – 22.37 m² Bedroom 1 – 9.80 m² Bedroom 2 – 8.69 m² Bathroom – 4.07 m² Hallway – 5.16 m² Covered terrace – 4.10 m² Balcony – 19.76 m² The apartment also has its own parking space. Location – a combination of nature, sea and practicality The apartment is located in an excellent location in Povljana – in a quiet street with no traffic, but very close to all necessary amenities. The sea is only 300 meters away, and you can reach the first pebble beach with sandy parts with a leisurely 3–4 minute walk. The sea here is exceptionally clean, and the natural configuration of the terrain allows easy access to the water, ideal for families with children. In the immediate vicinity there is a pine forest, ideal for walks and natural shade, as well as the famous medicinal mud that many use for recreational and therapeutic purposes. The town also offers a number of additional amenities: a well-maintained promenade with numerous cafes and restaurants stretches along the coast, shops are just a few minutes' walk away, and there are bakeries, fish markets, a market and everything else you need for everyday life - all accessible without the need for a car. Povljana is known as one of the most pleasant places to stay on Pag - quiet and natural enough, but with excellent infrastructure, transport connections and amenities. It is ideal for a quiet family vacation, but also for tourist rental. Quality of construction and equipment Combination of brick and reinforced concrete Thermal insulation: polystyrene + glass wool Large ceramic tiles of modern design Three-layer PVC joinery with electric shutters and mosquito nets Underfloor heating in the living room, kitchen and bathroom Mitsubishi air conditioners in all rooms Burglar-proof and fire-resistant doors Balcony railings made of tinted glass Additional information Own parking space included in the price Ownership in order, no encumbrances Purchase possible with a loan The apartment is almost finished, the occupancy permit is pending. An excellent investment for both personal use and tourist rental. If you are looking for an apartment in Pag with a large outdoor area, a view of the sea, modern equipment and a great location close to the beach and facilities - this is a property that meets all these criteria. The commission of the agency for the buyer is 3% and is paid in case of real estate purchase, when the first legal deed is concluded. Contact us with confidence for more information and to arrange a viewing. Phone: +385915404646 Email: vedran@kaiser-immobilien.hr

ID CODE: 138-47

Vedran Vilović
Agent s licencom u posredovanju u prometu nekretnina
Mob: +385997031459, +385995677888
E-mail: vedran@kaiser-immobilien.hr
www.kaiser-immobilien.hr
Εάν θέλετε να μάθετε περισσότερα, μπορείτε να μιλήσετε με Vedran Vilović.
Χαρακτηριστικά
Τύπος
Διαμέρισμα
Συμβόλαιο
Πώληση
Όροφος
2 όροφος
Σύνολο ορόφων
2
Ανελκυστήρας
Όχι
Εμβαδόν
62 m²
Δωμάτια
3
Υπνοδωμάτια
2
Μπάνια
1
Μπαλκόνι
Ναι
Βεράντα
Ναι
Γκαράζ, χώροι στάθμευσης
1 εξωτερικό
Θέρμανση
Αυτόνομη, θέρμανση αέρος
Κλιματισμός
Αυτόνομη, κρύο/ζέστη
Πληροφορίες τιμής
Τιμή
€ 188.000
Τιμή ανά m²
3.032 €/m²
Ενεργειακή απόδοση

Κατανάλωση ενέργειας

A+

Ανακαλύψτε κάθε γωνιά του ακινήτου
+7
Πρόσθετες επιλογές

Επικοινώνησε με τον αγγελιοδότη

Ή