Μονοκατοικία πολλαπλών οικογενειών Novalja, Novalja

€ 310.000
4
106 m²
2
Όχι
Βεράντα

Σημείωση

Τελευταία ενημέρωση: 23/01/2026
Περιγραφή

This description has been translated automatically and may not be accurate

κωδικός: 105-320

Kaiser immobilien is selling a semi-detached house with two separate apartments, in a prime location just 600m from the sea in Novalja on the island of Pag.

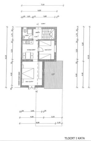
The semi-detached house with a total living area of 107m2 is divided into three floors - basement, ground floor and first floor. The living space is currently used as two smaller apartments with separate entrances, but the property allows for easy conversion into one living unit connected by an internal staircase.

The ground floor apartment is entered via a shared entrance hall, and consists of a living area that includes a kitchen and living room, bathroom, pantry, bedroom and covered terrace, as well as a spacious open terrace ideal for enjoying summer evenings.
The upstairs apartment is reached by stairs via the entrance hall on the ground floor, and the apartment consists of a kitchen and dining room, two bedrooms and a bathroom, and the first floor offers a view of the sea. The apartment is categorized for tourist rental.

An additional feature of this property is the garage measuring 3.95m x 5.40m located in the basement. The landscaped garden also has a social area that includes a paved terrace with a garden fireplace. The house also has one parking space.

The complete renovation of the building was carried out in 2019, including new electricity and water installations, bathroom and kitchen renovation, installation of new PVC joinery, new insulation, facades, installation of 3.5kw inverter air conditioners for each floor separately.

The house is being sold fully equipped and furnished.

The location of the property is excellent, 900m from the city center and all major amenities, 200m to the store, and 600m to the sea and beautiful beaches.

The property is suitable for a family vacation, but also for investment in tourist rental, and an additional feature is the possibility of joint purchase by two families (given that the apartments are physically separated but the meters are not).

ID CODE 105-320

The commission of the agency for the buyer is 3% + VAT and is paid in case of real estate purchase, when the first legal deed is concluded.

ID CODE: 105-320

Lado Patekar
Agent s licencom u posredovanju u prometu nekretnina
Mob: +385919390220, +385995677888
E-mail: lado@kaiser-immobilien.hr
www.kaiser-immobilien.hr
Χαρακτηριστικά
Τύπος
Μονοκατοικία πολλαπλών οικογενειών
Συμβόλαιο
Πώληση
Σύνολο ορόφων
1
Ανελκυστήρας
Όχι
Εμβαδόν
106 m²
Δωμάτια
4
Υπνοδωμάτια
3
Μπάνια
2
Μπαλκόνι
Όχι
Βεράντα
Ναι
Γκαράζ, χώροι στάθμευσης
1 σε πάρκινγκ/κλειστό πάρκινγκ, 1 εξωτερικό
Θέρμανση
Αυτόνομη, θέρμανση αέρος
Κλιματισμός
Αυτόνομη, κρύο/ζέστη
Πληροφορίες τιμής
Τιμή
€ 310.000
Τιμή ανά m²
2.925 €/m²
Ενεργειακή απόδοση

Κατανάλωση ενέργειας

C

Ανακαλύψτε κάθε γωνιά του ακινήτου
+18
Πρόσθετες επιλογές

Επικοινώνησε με τον αγγελιοδότη

Ή