Διαμέρισμα νέο, πρώτος όροφος, Luka, Πόρετς

€ 320.000
5+
89 m²
2
1
Βεράντα

Σημείωση

Τελευταία ενημέρωση: 19/03/2026
Περιγραφή

This description has been translated automatically and may not be accurate

κωδικός: 2476-1

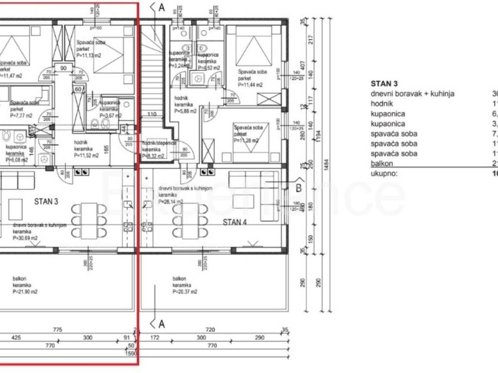
On the outskirts of the city of Poreč - approx. 2 km from the sea and the city center, in an quiet environment, a modern apartment with a total area of 88,78 m is for sale. The apartment is situated on the first floor of an intimate building with four residential units.

The interior includes:
entrance hall,
spacious and bright open-space living room with kitchen and dining room,
spacious covered terrace (21,90 m),
three bedrooms,
two modern bathrooms.

The apartment includes two parking spaces in front of the building.

Heating and cooling are regulated by DAIKIN air conditioners in each room.

The planned completion of construction is by October 2026.
Εάν θέλετε να μάθετε περισσότερα, μπορείτε να μιλήσετε με Patricija Simonetti.
Χαρακτηριστικά
Τύπος
Διαμέρισμα
Συμβόλαιο
Πώληση
Όροφος
1 όροφος
Εμβαδόν
89 m²
Δωμάτια
5+
Υπνοδωμάτια
3
Μπάνια
2
Βεράντα
Ναι
Πληροφορίες τιμής
Τιμή
€ 320.000
Τιμή ανά m²
3.596 €/m²
Ενεργειακή απόδοση
  • Έτος κατασκευής

    2026
  • Κατάσταση

    Νεόδμητο / Υπό κατασκευή
  • Ενεργειακή πιστοποίηση

    Χωρίς ταξινόμηση
Ανακαλύψτε κάθε γωνιά του ακινήτου
+4
Πρόσθετες επιλογές

Επικοινώνησε με τον αγγελιοδότη

Ή