Τριάρι Rovinj, Rovinj

€ 290.500
3
74 m²
1
1
Όχι
Βεράντα

Σημείωση

Τελευταία ενημέρωση: 04/02/2026
Περιγραφή

This description has been translated automatically and may not be accurate

κωδικός: ID03203

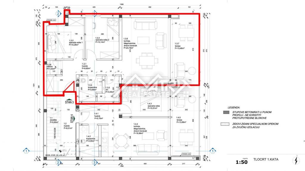
Modern apartment on the first floor with terrace and nature view

This high-quality first-floor apartment is located in a quiet and attractive area, within a modern residential building. The apartment consists of two bedrooms, a bathroom, a storage room, an open-plan kitchen with dining and living area, and a terrace with an open view of nature, ideal for relaxation and everyday enjoyment.

The apartment includes two secured parking spaces, and the property is equipped with three electric vehicle charging stations, providing a practical and environmentally friendly solution for future owners.

High-quality equipment and materials

Heating and cooling are provided via a MultiSplit system, while underfloor heating is installed in the bathroom and kitchen. Flooring consists of Italian ceramic tiles throughout the apartment, except in the bedrooms, where wooden flooring is planned.

Large glass portals are made of white PVC joinery with an external aluminium cladding in anthracite color, featuring triple-glazed windows and aluminium electric shutters. The balcony doors are lift-and-slide, and a lowered ceiling section conceals the curtain track, contributing to a clean and elegant interior design.

Quality construction and modern façade design

The building façade is executed with a 10 cm thick ETICS (demit) system, complemented by decorative stone elements in line with the architectural visualizations.

Additional features

Domestic hot water is provided by an inverter boiler, energy class A. Faucets are from renowned brands such as HansGrohe or Grohe, ensuring premium quality and modern design. Sanitary fittings include a concealed cistern, toilet, and washbasin by Grohe, Geberit, or equivalent quality manufacturers. Common areas feature granite stone flooring, and the railing is wrought iron with a wooden handrail, adding a touch of luxury.

Excellent location

The apartment is located in a peaceful neighborhood with excellent infrastructure and all essential amenities nearby:

School – 1.7 km

Kindergarten – 1.7 km

Supermarket – 2.4 km

Public transport – 150 m

Restaurant – 100 m

Excellent transport connections provide quick access to the motorway and Rovinj.

ID CODE: ID03203

Lemi Brajković Bassanese
Suradnik u procesu obuke
Mob: +385 99 206 38 91
Tel: +385 52 417 779
E-mail: lemi@matrixrealestate.hr
https://matrixrealestate.hr/

Matrix Real Estate
Voditelj ureda
Mob: +385 52 417 779
Tel: +385 52 417 779
E-mail: info@matrixrealestate.hr
https://matrixrealestate.hr/
Χαρακτηριστικά
Τύπος
Διαμέρισμα
Συμβόλαιο
Πώληση
Όροφος
1 όροφος
Σύνολο ορόφων
1
Ανελκυστήρας
Όχι
Εμβαδόν
74 m²
Δωμάτια
3
Υπνοδωμάτια
2
Μπάνια
1
Μπαλκόνι
Όχι
Βεράντα
Ναι
Γκαράζ, χώροι στάθμευσης
2 εξωτερικό
Κλιματισμός
Αυτόνομη, κρύο/ζέστη
Πληροφορίες τιμής
Τιμή
€ 290.500
Τιμή ανά m²
3.926 €/m²
Ενεργειακή απόδοση
  • Κλιματιστικό μηχάνημα

    Αυτόνομη, κρύο/ζέστη
  • Ενεργειακή πιστοποίηση

    Χωρίς ταξινόμηση
Σχέδιο ακινήτου
Ανακαλύψτε κάθε γωνιά του ακινήτου
+12
Πρόσθετες επιλογές

Επικοινώνησε με τον αγγελιοδότη

Ή