Τριάρι Opatija - Centar, Opatija, Centar, Opatija

€ 718.500
3
107 m²
2
2
Ναι
Μπαλκόνι

Σημείωση

Τελευταία ενημέρωση: 04/02/2026
Περιγραφή

This description has been translated automatically and may not be accurate

κωδικός: 2872


For sale: a luxury 2 bedroom apartment in a new building with a swimming pool, elevator and underground garage in the heart of Opatija, located in an ideal location with a view of the sea.

The apartment consists of a hallway, toilet, living room with kitchen and dining room, two bedrooms and two bathrooms, a balcony, and two spaces in the underground garage.

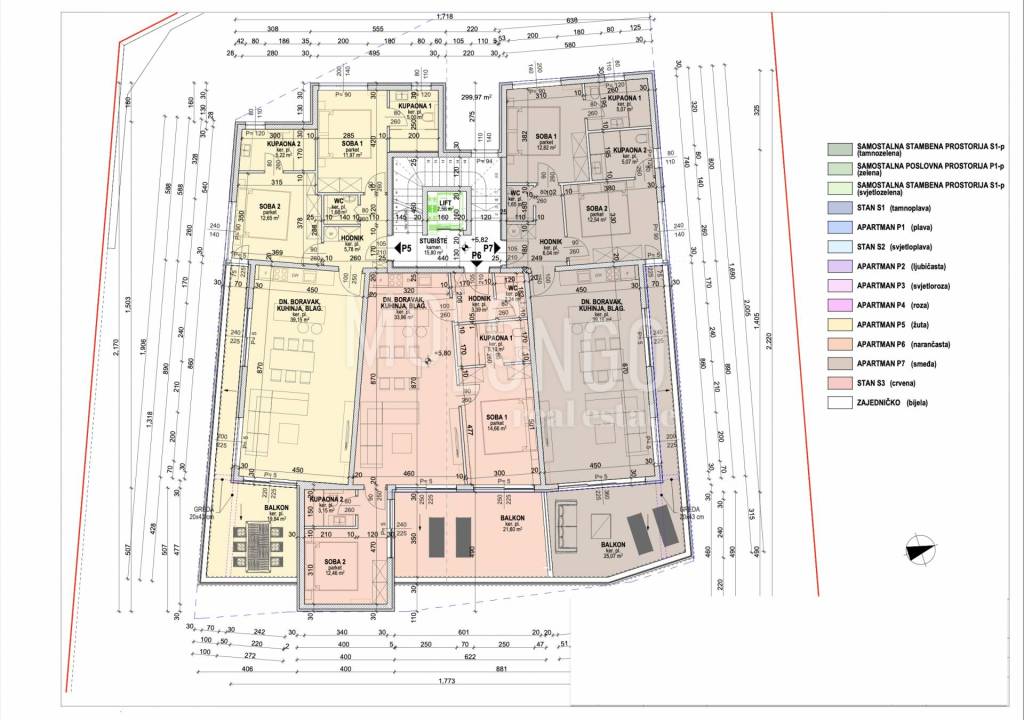
APARTMENT P7
• 2 bedrooms, 2 bathrooms, 1 toilet
• total area of ​​the apartment with accessories: 138.73 m2
• net area of ​​the apartment with accessories: 107.41 m2
• interior area of ​​the apartment: 82.34 m2
• balcony: 25.07 m2
• 2 garage parking spaces: 13.25 m2, 14.66 m2
• 2 storage rooms: 1.68 m2, 1.73 m2

EQUIPMENT

• Heating system and preparation of hot water through heat pumps

• Superior aluminum carpentry

• Electrically operated aluminum blinds

• Superior sanitary facilities

• Anti-theft entrance door

• Elevator

• Shared pool

Opatija, the pearl of the Adriatic, is one of the most sought-after and desirable places for living and vacationing in Croatia. Its irresistible combination of natural beauty, rich history and architecture, and modern facilities make it a truly extraordinary and enchanting destination.



25% VAT is included in the price, the buyer is exempt from real estate sales tax. In the case of a purchase from a company registered in Croatia, a VAT refund is possible after the sale.

An excellent property worthy of attention.

For more information and viewing, contact the agent.

ID CODE: 2872

Filip Popović
Suradnik u procesu obuke
Mob: +385 91 9722 244
Tel: +385 51 858 544
E-mail: filip.popovic@mololongorealestate.com
www.mololongorealestate.com
Χαρακτηριστικά
Τύπος
Διαμέρισμα
Συμβόλαιο
Πώληση
Όροφος
2 όροφος
Σύνολο ορόφων
3
Ανελκυστήρας
Ναι
Εμβαδόν
107 m²
Δωμάτια
3
Υπνοδωμάτια
2
Μπάνια
2
Μπαλκόνι
Ναι
Βεράντα
Όχι
Γκαράζ, χώροι στάθμευσης
1 σε πάρκινγκ/κλειστό πάρκινγκ, 2 εξωτερικό
Πληροφορίες τιμής
Τιμή
€ 718.500
Τιμή ανά m²
6.715 €/m²
Ενεργειακή απόδοση
  • Ενεργειακή πιστοποίηση

    Χωρίς ταξινόμηση
Σχέδιο ακινήτου
Ανακαλύψτε κάθε γωνιά του ακινήτου
+31
Πρόσθετες επιλογές

Επικοινώνησε με τον αγγελιοδότη

Ή