Τριάρι νέο, Šibenik

€ 680.000
3
170 m²
3

Σημείωση

Τελευταία ενημέρωση: 02/03/2026
Περιγραφή

This description has been translated automatically and may not be accurate

κωδικός: 4025

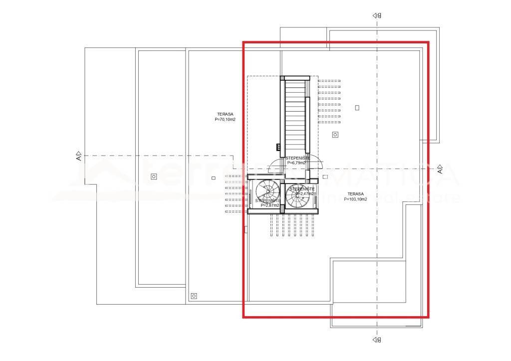
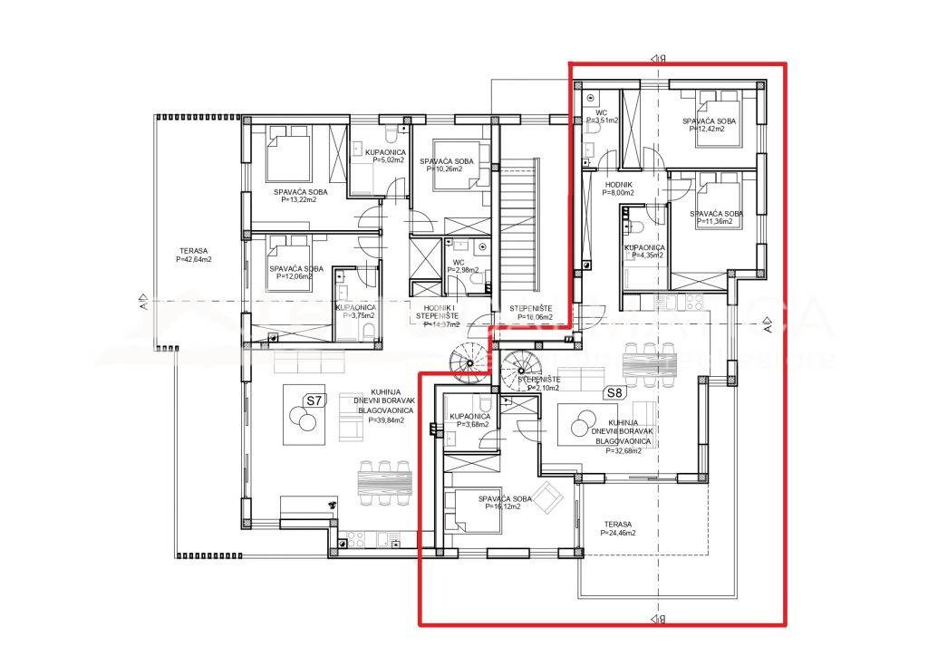
For sale is a modern duplex apartment S8 in an attractive location in Srima near Vodice, with a beautiful sea view and an extraordinary roof terrace. The apartment is located on the second floor of a new building, with a total usable area of 96.32 m², and consists of three bedrooms, two bathrooms, an additional toilet, two hallways, a kitchen with a dining room and a living room, and an internal staircase leading to a spacious roof terrace of 96.06 m² - perfect for enjoying, sunbathing and private gatherings. On the second floor there is also a terrace of 24.46 m², and the price includes one parking space (P5 - 12.50 m²), with the option of purchasing an additional one. The apartment is equipped with top-quality materials and devices: HLM burglar-proof and fire-resistant entrance doors in a light oak tone, white matte interior doors with magnetic locks (JAVOR-Bjelovar), GELANA PVC joinery with insulated glass, electrically controlled aluminum shutters, roller and side mosquito nets, electric underfloor heating, GREE or MIDEA air conditioners with Wi-Fi control (5 units in total), intercom, antenna system, high-quality ceramics (10 mm) and laminate (12 mm) in the rooms, GROHE, VOXORT, Hansgrohe bathroom fittings, ARISTON 80L water heaters for the kitchen and bathrooms, tempered glass railings on the terraces (2x8 mm), a chimney for a solid fuel stove and an automatic smoke extraction system for the staircase. The apartment has its own electricity and water meters, is connected to a bio-pit owned by the building, and the building is insulated with a facade with 8 cm thick polystyrene and ROFIX finishing. VAT is included in the price, which means that the buyer does not pay real estate sales tax. This apartment represents an ideal opportunity for a luxurious life by the sea or as an investment for tourism in a quiet but extremely connected location near Vodice.
Χαρακτηριστικά
Τύπος
Διαμέρισμα
Συμβόλαιο
Πώληση
Εμβαδόν
170 m²
Δωμάτια
3
Υπνοδωμάτια
3
Μπάνια
3
Θέρμανση
Αυτόνομη, ενδοδαπέδια θέρμανση, ρεύμα
Θέα
Θάλασσα
Απόσταση από τη θάλασσα
50 m
Πληροφορίες τιμής
Τιμή
€ 680.000
Τιμή ανά m²
4.000 €/m²
Ενεργειακή απόδοση
  • Έτος κατασκευής

    2025
  • Κατάσταση

    Νεόδμητο / Υπό κατασκευή
  • Θέρμανση

    Αυτόνομη, ενδοδαπέδια θέρμανση, ρεύμα
  • Ενεργειακή πιστοποίηση

    Χωρίς ταξινόμηση
Σχέδιο ακινήτου
Ανακαλύψτε κάθε γωνιά του ακινήτου
+19
Πρόσθετες επιλογές

Επικοινώνησε με τον αγγελιοδότη

Ή