Μονοκατοικία 248 τμ, Luka, Πόρετς

€ 1.812.500
5
248 m²
3+
Όχι

Σημείωση

Τελευταία ενημέρωση: 02/05/2026
Περιγραφή

This description has been translated automatically and may not be accurate

κωδικός: I32915

Istria, Poreč area - modern villa with pool and sea view

From our offer, we present a villa, surrounded by Mediterranean greenery and with an open view of the sea.
Modernly equipped villa, which represents a perfect combination of luxury, comfort and modern technology.
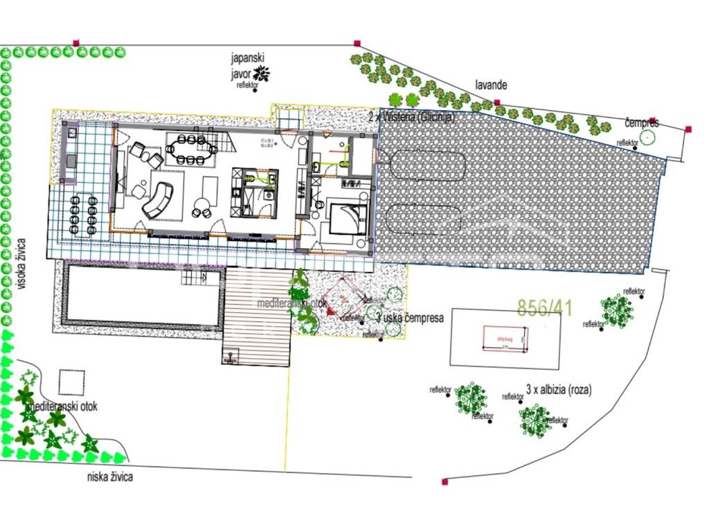
The villa with a total living area of 248 m, which is located on a plot of 1005 m, is spread over two floors and exudes a refined design and a carefully thought-out arrangement of spaces that ensures a high level of privacy and comfort.

On the ground floor of the villa, there is an entrance hall that leads to a spacious open-concept living area, in which the kitchen, dining room and living room are harmoniously connected with access to a large covered terrace.

The interior is equipped with top quality furniture from recognized brands, carefully selected materials guaranteeing durability and impeccable aesthetics. On the same floor, there is also a bedroom with a private bathroom, ideal for guests but for daily use without the need to use the stairs.

On the upper floor there are three spacious bedrooms, each with its own bathroom, one of them has access to a large terrace with a wonderful view of the sea and the surrounding countryside.

The exterior of the villa is just as impressive as the interior. A heated swimming pool with an inverter pump invites you to relax all summer long, an equipped outdoor kitchen with a living area, so the corner is perfect for outdoor gatherings.The garden has a table tennis table, and the surroundings are equipped with an automatic irrigation system and a robotic lawnmower for maximum convenience. The installation for a sauna and solar panels has been prepared, which further increases the energy efficiency and value of the property, and four uncovered parking spaces are provided.

The villa is equipped with the most modern systems such as Smart Home technology, underfloor heating, optical internet, video surveillance, intercom, alarm and a heat pump that ensures optimal climate throughout the year. High-quality aluminum joinery with triple glazing, a flat roof and ceramic floor coverings further emphasize the contemporary architectural expression and energy efficiency.

A luxury property in Istria that combines top-quality construction, modern design and sea views.
Χαρακτηριστικά
Τύπος
Μονοκατοικία
Συμβόλαιο
Πώληση
Όροφος
1
Ανελκυστήρας
Όχι
Εμβαδόν
248 m² | επαγγελματικό 1.253 m²
Δωμάτια
5
Υπνοδωμάτια
4
Μπάνια
3+
Επιπλωμένο
Όχι
Γκαράζ, χώροι στάθμευσης
1 εξωτερικό
Θέρμανση
Αυτόνομη, ρεύμα
Κλιματισμός
Κρύο/ζέστη
Άλλα χαρακτηριστικά
  • Πισίνα
Λεπτομέρεια επιφάνειας

Κατοικία

Όροφος
1
Εμβαδόν
248,0 m²
Συντελεστής
100%
Τύπος επιφάνειας
Κύρια
Συνολική επιφάνεια
248,0 m²

Γη

Όροφος
Ισόγειο
Εμβαδόν
1.005,0 m²
Συντελεστής
100%
Τύπος επιφάνειας
Δευτερεύουσα
Συνολική επιφάνεια
1.005,0 m²
Πληροφορίες τιμής
Τιμή
€ 1.812.500
Τιμή ανά m²
1.447 €/m²
Ενεργειακή απόδοση

Κατανάλωση ενέργειας

Α

Ανακαλύψτε κάθε γωνιά του ακινήτου
+42
Πρόσθετες επιλογές

Επικοινώνησε με τον αγγελιοδότη

Ή