Μονοκατοικία 153 τμ, Ližnjan

€ 255.000
153 m²

Σημείωση

Τελευταία ενημέρωση: 28/04/2026
Περιγραφή

This description has been translated automatically and may not be accurate

κωδικός: 8973

Construction of an exclusive villa within a small complex of only six houses has begun in a peaceful location in Ližnjan. The project is designed as a combination of authentic Istrian architecture and modern comfort, focusing on privacy and proximity to the sea.





The villa is located near well-kept beaches and offers unobstructed sea views. The planned construction follows the traditional Istrian spirit - wooden beams, stone details, and carefully crafted exterior - with a modern spatial layout tailored to today's lifestyle.





This property represents an excellent opportunity for a family residence or a rental investment for tourism.


The project is under construction, all documentation and permits are in order, and connections and municipal contributions have been paid.





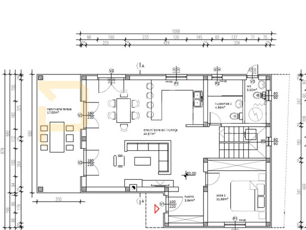
The designed villa has a 152.89 m2 gross area spread over two floors - ground floor and first floor, with an expected net area of approximately 141.51 m2.


The ground floor is designed with an open concept kitchen with dining area and spacious living room, leading to a terrace and pool, as well as one bedroom and a bathroom. The project also includes an additional WC with a separate external entrance, ideal for use with the pool and outdoor amenities.


The first floor accommodates two bedrooms, each with its own bathroom, ensuring maximum privacy and comfort.


The outdoor area is designed as a private relaxation zone, with a 21 m2 pool (7 x 3) and enough space for carefree enjoyment with minimal maintenance requirements.





The advertised price includes:


- obtained final building permit with accompanying projects

- paid municipal and water contributions

- paid electricity and water connections

- house built to the current phase: foundations, floor slab, ground floor walls, and floor slab above the ground floor

- constructed reinforced concrete pool structure








Agency commission is charged in accordance with the General Terms and Conditions.

Εάν θέλετε να μάθετε περισσότερα, μπορείτε να μιλήσετε με Paula Vujica.
Χαρακτηριστικά
Τύπος
Μονοκατοικία
Συμβόλαιο
Πώληση
Εμβαδόν
153 m²
Πληροφορίες τιμής
Τιμή
€ 255.000
Τιμή ανά m²
1.667 €/m²
Ανακαλύψτε κάθε γωνιά του ακινήτου
+12
Πρόσθετες επιλογές

Επικοινώνησε με τον αγγελιοδότη

Ή