Τριάρι νέο, δεύτερος όροφος, Pakoštane

€ 389.322
3
111 m²
2
2
Όχι
Μπαλκόνι

Σημείωση

Τελευταία ενημέρωση: 30/04/2026
Περιγραφή

This description has been translated automatically and may not be accurate

κωδικός: A1527

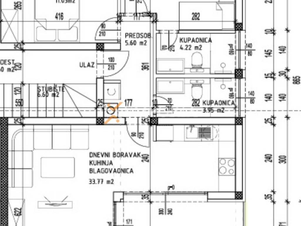
Apartment in Pakoštane 111,23 m, second floor with roof terrace, new building

For sale is a modern apartment in Pakoštane, located only 520 m from the sea and 650 m from the town center. It is situated on the second floor of a new building scheduled for completion in 2026. The total net area including additional spaces is 111,23 m², while the living area itself covers 108,73 m². A spacious roof terrace of 97,32 m² and the peaceful location add special value to this property. 
The layout consists of a hallway, a bedroom, an additional bedroom with an en-suite bathroom, another bathroom, and a kitchen with a dining area connected to the living room. From the living area there is access to a loggia, while the bedrooms open onto a covered terrace. From the staircase, you reach a large roof terrace, ideal for relaxation and gatherings. The apartment also includes one parking space.
When purchasing, no real estate transfer tax is paid.

Equipment

The property is built with brick thermal blocks and has a 10 cm styrofoam facade. The PVC windows with triple glazing are equipped with electric shutters and mosquito nets. The floors are finished with a combination of tiles and parquet, while the entrance doors are security and fireproof. Electric underfloor heating is installed throughout the apartment, and three air conditioning units – in the living room and bedrooms – provide additional comfort. The apartment has a chimney, is connected to the sewage system, and the roof is new, flat, and concrete.
The expected energy certificate is A. This apartment represents an excellent opportunity for luxurious and comfortable living or as an investment in an attractive location close to the sea and town center.

Location

Pakoštane is a beautiful village, situated in the heart of the Adriatic coast in a unique position between the sea and the Vrana Lake. In Pakoštane there is everything necessary for everyday life (shops, doctor, pharmacy, post office, school, etc.) and it is a perfect holiday destination. Surrounding area of four national parks Kornati, Krka, Paklenica and Plitvice lakes and two Nature Park Telašćica and Lake Vrana make Pakoštane even more unique and beautiful.

Additional info

If you have found this property elsewhere advertised at a lower price, that same price is valid with us!

https://www.emporia-realestate.com/property/apartment-a1527-pakostane/
Χαρακτηριστικά
Τύπος
Διαμέρισμα
Συμβόλαιο
Πώληση
Όροφος
2 όροφος
Σύνολο ορόφων
1
Ανελκυστήρας
Όχι
Εμβαδόν
111 m²
Δωμάτια
3
Υπνοδωμάτια
2
Μπάνια
2
Επιπλωμένο
Όχι
Μπαλκόνι
Ναι
Γκαράζ, χώροι στάθμευσης
1 εξωτερικό
Κλιματισμός
Κρύο/ζέστη
Άλλα χαρακτηριστικά
  • Πόρτα ασφαλείας
Πληροφορίες τιμής
Τιμή
€ 389.322
Τιμή ανά m²
3.507 €/m²
Ενεργειακή απόδοση

Κατανάλωση ενέργειας

Α

Ανακαλύψτε κάθε γωνιά του ακινήτου
+12
Πρόσθετες επιλογές

Επικοινώνησε με τον αγγελιοδότη

Ή