Δυάρι νέο, Vir

€ 185.000
2
66 m²
1
Όχι

Σημείωση

Τελευταία ενημέρωση: 29/04/2026
Περιγραφή

κωδικός: 108201-190

OTOK VIR – Stan u prizemlju s dvorištem + parking - 350 metara od mora.

Prodaje se stan u prizemlju moderne novogradnje na atraktivnoj lokaciji na otoku Viru, svega 350 metara od mora i samo 5 minuta lagane šetnje kroz borovu šumu do plaže.

Savršena prilika za miran obiteljski život, odmor ili turističku investiciju!

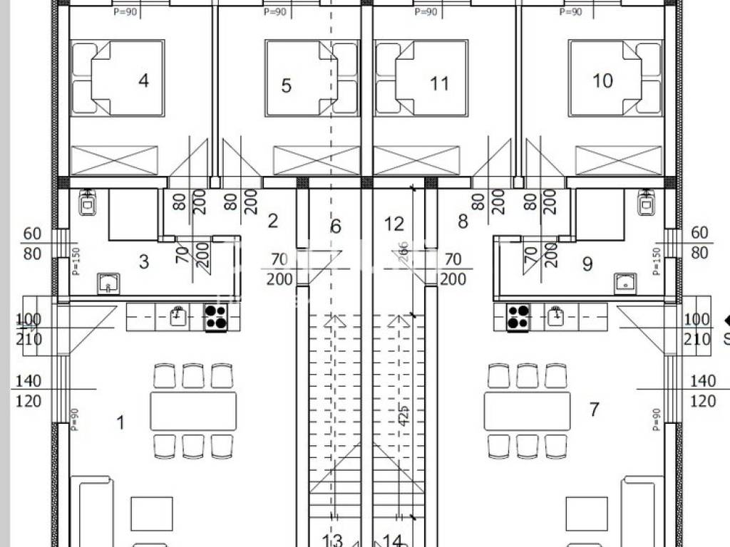
STAN 2 – PRIZEMLJE DESNO (66,47 m2)

- Kuhinja i dnevni boravak – 28,81 m2


- Predprostor – 4,43 m2


- Kupaonica – 5,98 m2


- Soba 1 – 10,80 m2


- Soba 2 – 10,80 m2


- Ostava – 5,65 m2


- Ukupno: 66,47 m2



Tehničke karakteristike i oprema nekretnine:

- PVC prozori i vrata s komarnicima


- Rolete na električno podizanje (električno tipkalo)


- Klima uređaj u svakoj sobi (hlađenje/grijanje)


- Kupaonica s podnim grijanjem i ljestve radijatorom


- Podne obloge:

- Pločice – kupaonica, kuhinja i hodnik


- Laminat – dnevni boravak i spavaće sobe



- Spremnik za vodu


- Betonska septička jama



Dodatno:

- Izolacija zgrade (fasada) 10 cm


- U planu je priključak na gradski vodovod i kanalizaciju od strane Općine Vir



DODATNE POGODNOSTI:

- Vlastito parkirno mjesto (12,50 m2) - ulazi u vlasnički list


- Prostrano privatno dvorište (81,89 m2) – idealno za terasu, roštilj, jacuzzi ili dječje igralište - ulazi u vlasnički list


- Mirna lokacija okružena prirodom



CIJENA:

210.000 € – ključ u ruke (završena nekretnina)
185.000 € – ključ u ruke (kupnja u fazi izgradnje)

Nekretnina je trenutno 70% izgrađena.
Planirano useljenje do kraja 2026. godine.

Kupac ne plaća 3% poreza na promet nekretnina. Moguć povrat PDV-a u iznosu od 50% za osobe koje su kvalificirane za APN (provjeriti detalje samostalno)



Stojim vam na raspolaganju za sva pitanja.

Saša Martišek,
licencirani agent
T: 097 75 47 775
E: sasa.martisek@c21.hr
Εάν θέλετε να μάθετε περισσότερα, μπορείτε να μιλήσετε με Saša Martišek.
Χαρακτηριστικά
Τύπος
Διαμέρισμα | Ακίνητο μεσαίας κατηγορίας
Συμβόλαιο
Πώληση
Σύνολο ορόφων
1
Ανελκυστήρας
Όχι
Εμβαδόν
66 m²
Δωμάτια
2
Υπνοδωμάτια
2
Μπάνια
1
Μπαλκόνι
Όχι
Βεράντα
Όχι
Πληροφορίες τιμής
Τιμή
€ 185.000
Τιμή ανά m²
2.803 €/m²
Ενεργειακή απόδοση
  • Έτος κατασκευής

    2026
  • Κατάσταση

    Νεόδμητο / Υπό κατασκευή
  • Ενεργειακή πιστοποίηση

    Εκκρεμεί πιστοποίηση
Ανακαλύψτε κάθε γωνιά του ακινήτου
+17
Πρόσθετες επιλογές

Επικοινώνησε με τον αγγελιοδότη

Ή