Μονοκατοικία Sovinjak, Buzet, Buzet

€ 2.266.000
5
320 m²
3+
Όχι
Βεράντα

Σημείωση

Τελευταία ενημέρωση: 16/02/2026
Περιγραφή

This description has been translated automatically and may not be accurate

κωδικός: 5898

Located in a peaceful setting in the Istrian village of Sovinjak, in close proximity to the town of Buzet, this modern, high-quality detached villa is surrounded by nature and lush greenery. The property is set on a spacious 2,500 m² plot and is being built as a contemporary two-storey new development with a total area of 320 m².

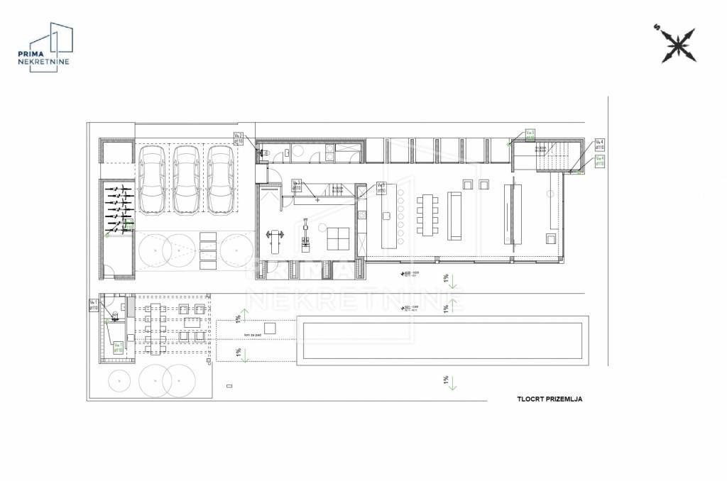
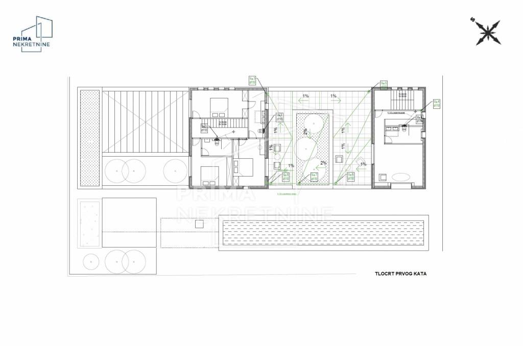
The villa is designed around an airy and highly functional layout. The ground floor features an impressive open-plan living area with kitchen and dining room totaling 76.8 m², seamlessly connected via large glass walls to the terraces, garden, and swimming pool. The property offers four exceptionally comfortable bedrooms measuring 26.2 m², 25.2 m², 26.9 m², and 17.9 m², along with a total of five bathrooms. Additional spaces include a 15.6 m² traditional-style wine cellar (konoba), several storage rooms, and a separate technical room.

Constructed with a reinforced concrete structure, the villa has been designed with a strong focus on durability and energy efficiency. The exterior aluminium joinery with bronze-tinted glass ensures abundant natural light and a high level of privacy, while the interior joinery is crafted from quality oak. The ground floor is finished with exclusive Italian ceramic tiles, while the upper floor features oak parquet flooring. All furniture is custom-made by the investor in-house, and at this stage of construction the future owner has the opportunity to participate in the selection of materials, design elements, and final interior finishes.

The technical specifications meet the highest modern standards and include underfloor heating, a heat pump, ceiling-mounted air conditioning units in all rooms, and a heated swimming pool powered by a heat pump. The property is fully prepared for a smart home system and video surveillance, and the covered garage is equipped with an electric vehicle charging station. The electrical connection is three-phase, 15 kW, with the option to implement a gas installation project. The villa features a flat roof.

The outdoor area is conceived as a private oasis, offering a landscaped garden, swimming pool, outdoor barbecue area, and spacious terraces ideal for all-day outdoor living. Parking is provided for four vehicles, with two spaces in the garage and two under a covered pergola.

The property is connected to electricity, public water supply, and sewage system, with an asphalt access road. Heating, cooling, and ventilation systems are centrally managed.

This is an exceptionally attractive luxury villa that combines a tranquil location, premium equipment, and the possibility of customization, making it ideal both for private residence and as a high-end investment.

ID CODE: 5898
Χαρακτηριστικά
Τύπος
Μονοκατοικία
Συμβόλαιο
Πώληση
Σύνολο ορόφων
1
Ανελκυστήρας
Όχι
Εμβαδόν
320 m²
Δωμάτια
5
Υπνοδωμάτια
4
Μπάνια
3+
Μπαλκόνι
Όχι
Βεράντα
Ναι
Γκαράζ, χώροι στάθμευσης
3 εξωτερικό
Θέρμανση
Αυτόνομη, θέρμανση αέρος
Κλιματισμός
Αυτόνομη, κρύο/ζέστη
Πληροφορίες τιμής
Τιμή
€ 2.266.000
Τιμή ανά m²
7.081 €/m²
Ενεργειακή απόδοση
  • Έτος κατασκευής

    2026
  • Θέρμανση

    Αυτόνομη, θέρμανση αέρος
  • Κλιματιστικό μηχάνημα

    Αυτόνομη, κρύο/ζέστη
  • Ενεργειακή πιστοποίηση

    Χωρίς ταξινόμηση
Σχέδιο ακινήτου
Ανακαλύψτε κάθε γωνιά του ακινήτου
+11
Πρόσθετες επιλογές

Επικοινώνησε με τον αγγελιοδότη

Ή