Τριάρι νέο, ισόγειο, Sveti Filip i Jakov

€ 230.000
3
60 m²
1
ΙΣ
Ναι
Μπαλκόνι

Σημείωση

Τελευταία ενημέρωση: 17/02/2026
Περιγραφή

This description has been translated automatically and may not be accurate

κωδικός: 300501033-49

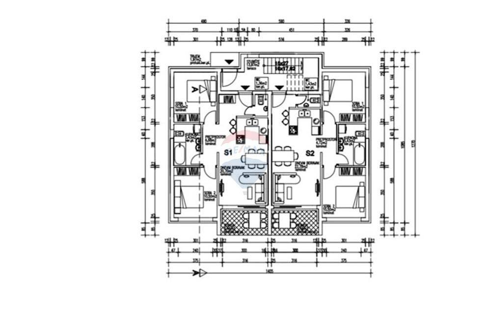
For sale is a modern two-bedroom apartment under construction, located in an excellent location in Turanj, municipality of Sveti Filip i Jakov.
The apartment marked S2 is located on the ground floor of a small residential building with a total of three residential units.

The total area of the apartment is 55.37 m, with an additional terrace of 5.46 m.
The layout includes a spacious living room with kitchen and dining room, two comfortable bedrooms, a bathroom and a separate guest toilet.

High-quality materials will be used during construction in accordance with the highest standards of modern construction. The building will have a reinforced concrete structure with a 10 cm thick thermal facade, PVC three-layer joinery and security doors.

The apartment has a secured parking space, and the distance from the sea and the town center is only 300 meters as the crow flies.

The private pool in the yard gives this property special value,

Other apartments are also available within the project:
S1 - ground floor, two-bedroom apartment with swimming pool, 60 m2 230,000.00
S3 - penthouse 85.50 m2 with roof terrace 45.75 m2 350,000.00

For more information, contact us at 098/164-2222

ID CODE: 300501033-49

Ana Klarić
Agent s licencom
Mob: 0981642222
Tel: 023299096
E-mail: ana.klaric@remax.hr
https://www.remax.hr/Complete1
Εάν θέλετε να μάθετε περισσότερα, μπορείτε να μιλήσετε με Ana Klarić.
Χαρακτηριστικά
Τύπος
Διαμέρισμα
Συμβόλαιο
Πώληση
Όροφος
Ισόγειο
Ανελκυστήρας
Ναι
Εμβαδόν
60 m²
Δωμάτια
3
Υπνοδωμάτια
2
Μπάνια
1
Μπαλκόνι
Ναι
Βεράντα
Όχι
Πληροφορίες τιμής
Τιμή
€ 230.000
Τιμή ανά m²
3.833 €/m²
Ενεργειακή απόδοση
  • Κατάσταση

    Νεόδμητο / Υπό κατασκευή
  • Ενεργειακή πιστοποίηση

    Δεν υπόκειται
Ανακαλύψτε κάθε γωνιά του ακινήτου
+5
Πρόσθετες επιλογές

Επικοινώνησε με τον αγγελιοδότη

Ή