Δυάρι τρίτος όροφος, Monvidal - Monte Ghiro, Πούλα

€ 165.000
2
42 m²
1
3
Ναι

Σημείωση

Τελευταία ενημέρωση: 20/02/2026
Περιγραφή

This description has been translated automatically and may not be accurate

κωδικός: IS1520030

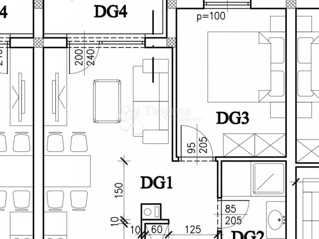
For sale is a modern apartment in a high-quality new building, with a total gross residential area of 45 m, or 42 m net residential area, located on the third floor of a building with an elevator.

The apartment also includes one outdoor parking space.

The building was built to high standards, with special emphasis on excellent thermal and sound insulation (rock wool), quality materials and durability. Everything was done carefully and professionally - as it should be.

The apartment is sold on a "turnkey" basis, and the expected move-in date is July 2026.

The buyer is allowed to choose ceramics, sanitary ware and laminate, within a predefined budget. In the case of choosing materials above that budget, the difference is simply paid extra - an ideal opportunity to customize the apartment to your own taste.

The location is extremely practical - in the immediate vicinity there are shops, hair salons, a butcher, doctors, pharmacies and all the facilities necessary for a comfortable and functional life.
The Kaštanjer elementary school is only 700 meters away, while the beach can be reached by car in approximately 57 minutes.

This property is an excellent choice for both peaceful living and a safe investment, thanks to the quality of construction, excellent location and flexible design options.

I am at your disposal for additional information and viewing.

Filip Crnjac
Licensed real estate agent
+385 91 600 1216

ID CODE: IS1520030

Filip Crnjac
Agent s licencom
Mob: 091/600-1216
Tel: 052 645 444
E-mail: filip.crnjac@dogma-nekretnine.com
www.dogma-istra.com
Εάν θέλετε να μάθετε περισσότερα, μπορείτε να μιλήσετε με Filip Crnjac.
Χαρακτηριστικά
Τύπος
Διαμέρισμα
Συμβόλαιο
Πώληση
Όροφος
3 όροφος
Ανελκυστήρας
Ναι
Εμβαδόν
42 m²
Δωμάτια
2
Υπνοδωμάτια
1
Μπάνια
1
Μπαλκόνι
Όχι
Βεράντα
Όχι
Κλιματισμός
Αυτόνομη, κρύο/ζέστη
Πληροφορίες τιμής
Τιμή
€ 165.000
Τιμή ανά m²
3.929 €/m²
Ενεργειακή απόδοση
  • Έτος κατασκευής

    2026
  • Κλιματιστικό μηχάνημα

    Αυτόνομη, κρύο/ζέστη
  • Ενεργειακή πιστοποίηση

    Δεν υπόκειται
Ανακαλύψτε κάθε γωνιά του ακινήτου
+13
Πρόσθετες επιλογές

Επικοινώνησε με τον αγγελιοδότη

Ή